60+ Betreutes Wohnen für Junggebliebene
Wohnung
,
2630
Ternitz
,
Wassergasse 10
Die Stadt Ternitz zählt knapp 15.300 Einwohner, die Größe des Gemeindegebietes beträgt rund 65 km². Die moderne Stadt bietet mit einer Mehrzweckhalle, einem Kino und dem Erlebnisbad „Blub“ eine Vielzahl von Möglichkeiten. Weiters verfügt Ternitz über eine ausgezeichnete Infrastruktur und ärztliche Versorgung. Viele weitere Detailinformationen zu Ternitz finden Sie unter: http://www.ternitz.gv.at
Beschreibung der Immobilie
60+ Betreutes Wohnen für Junggebliebene
KEIN PENSIONISTEN- oder PFLEGEHEIM
Diese Wohnung ist dem "Betreuten Wohnen" gewidmet. Für Personen ab dem 60zigsten Lebensjahr oder für Personen mit gesundheitlichen Beeinträchtigungen.
Praktischer Grundriss, sonnig und lichtdurchflutet. Terrasse und Kellerabteil vorhanden.
Ein PKW-Abstellplatz ist selbstverständlich vorhanden.
Ein paar Eckdaten:
- SAT Anschluss + Telefonleerverrohung bis zur Wohnung
- Heizung und Warmwasser mittels EVN mit Einzelverrechnung
- Kontrollierte Wohnraumlüftung
- Anschluss für E-Herd
- barrierefreies Badezimmer Dusche & WC
- Personenlift
- Gegensprechanlage
- PKW-Abstellplätze
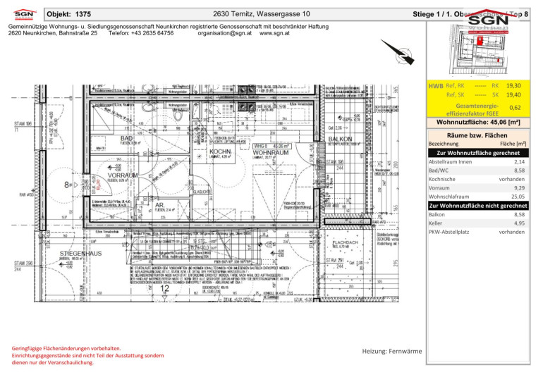
Die hier zur Vermietung stehende Wohneinheit verfügt über ca. 45m² Wohnfläche. Der Hauptwohnraum bietet Platz für Wohnen, Schlafen und Kochen. Das große barrierefreie Badezimmer besteht aus einer bodenebenen Dusche und einem WC: Ein praktischer Abstellraum befindet sich im Vorzimmerbereich bzw. Eingangsbereich. Das Vorzimmer selbst ist ebenfalls großzügig ausgelegt. Direkt vom Hauptwohnbereich gelangen Sie auf die wirklich schöne Terrasse.
Anschauen lohnt sich!
Wir stehen für Auskünfte gerne zu Ihrer Verfügung.
Infrastruktur / Entfernungen
Gesundheit
Arzt <250m
Apotheke <375m
Krankenhaus <3.550m
Kinder & Schulen
Schule <100m
Kindergarten <700m
Nahversorgung
Supermarkt <350m
Bäckerei <250m
Einkaufszentrum <1.975m
Sonstige
Bank <400m
Geldautomat <400m
Polizei <1.825m
Post <400m
Verkehr
Bus <350m
Autobahnanschluss <3.275m
Bahnhof <750m
Angaben Entfernung Luftlinie / Quelle: OpenStreetMap
Eckdaten Objektnr. 1375000008
Art: | Wohnung |
Land: | Österreich |
Baujahr: | 2016 |
Zustand: | Erstbezug |
Alter: | Neubau |
Gesamtmiete: | 675,27 € |
Kaltmiete (netto): | 377,42 € |
Kaltmiete: | 618,79 € |
Betriebskosten: | 187,37 € |
MwSt Gesamt: | 56,48 € |
Wohnfläche: | 45,06 m² |
Zimmer: | 1 |
Bäder: | 1 |
WC: | 1 |
Balkone: | 1 |
Stellplätze: | 1 |
Keller: | 4,95 m² |
Heizwärmebedarf: | 19,40 kWh/m²a |
fGEE: | 62,00 |
Ausstattung
Fliesen, Laminatboden, Fernwärme, Wohnküche / offene Küche, Personenaufzug, Westbalkon, Dusche, Betreutes Wohnen, Kabel/Satelliten-TV, Parkplatz
Ihre persönliche Beratung

Daniela Lehner
SGN Gemeinnützige Wohnungs- u. Siedlungsgenossenschaft Neunkirchen reg.Gen.m.b.H.
T +43 2635 64756 65