Großzügiger Raum mit flexiblen Nutzungsmöglichkeiten

Sonstige - Sonstige, 2320 Schwechat


Nähe Wien, Flughafen Wien-Schwechat

Beschreibung der Immobilie

Großzügiger Raum mit flexiblen Nutzungsmöglichkeiten

Zahlreiche Möglichkeiten - der richtige Raum für Ihre Ideen!



In beliebter Frequenzlage in der Wiener Straße in Schwechat finden Sie diesen großen Mehrzweckraum mit rund 140 m². Neben der Top-Lage spricht auch die optimale Infrastruktur für den Standort. Ideal für Ihren Verein, Ihr Hobby, als Atelier oder Fitnessraum! Supermärkte, Banken, Apotheken und weitere Geschäfte befinden sich in unmittelbarer Nähe.




DATEN & FAKTEN
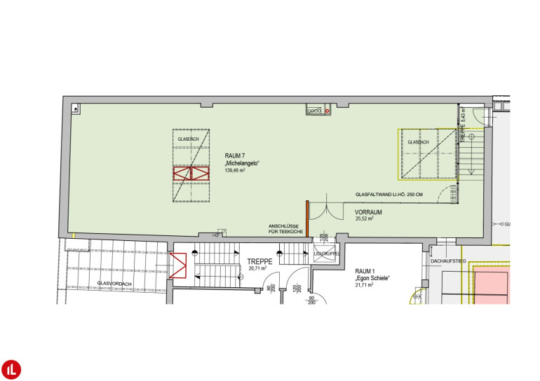
* 139,48 m² Bürofläche + 25,52 m² Vorraum 

* flexible Nutzungsmöglichkeiten (Vereinsraum, Hobbyraum, Atelier, etc.)

* lichtdurchflutet - große Lichtkuppeln sorgen für viel Tageslicht

* Anschlüsse für Teeküche vorhanden

* Sanitärräume

* 1. Stock ohne Lift

* optimale Infrastruktur (A4, S1, Bus, Bahn)

* nur 10 Autominuten zum Flughafen Wien-Schwechat

* nur 10 Gehminuten zum Bahnhof Schwechat



RUFEN SIE AN!

Maria Leiner - 0664 116 11 11

Alleinbeauftragt



Ihre Anfrage ist wichtig und wertvoll!
In Entsprechung des FAGG (Fern- und Auswärtsgeschäfte-Gesetz) und des VRUG (Verbraucherrechte-Richtlinie-Umsetzungsgesetz) ist es uns nur mehr möglich, Termine nach Erhalt einer schriftlichen Anfrage mit vollständigen Kontaktangaben (Name, Adresse, Telefon, Email) zu vereinbaren, dies gilt auch für die Weitergabe relevanter Informationen des Objektes. 



Wir danken für Ihr Verständnis und freuen uns, Sie bald als Kunde begrüßen zu dürfen.

Infrastruktur / Entfernungen

Gesundheit
Arzt <500m
Apotheke <500m
Klinik <500m
Krankenhaus <7.000m

Kinder & Schulen
Schule <500m
Kindergarten <500m
Universität <7.500m
Höhere Schule <7.500m

Nahversorgung
Supermarkt <500m
Bäckerei <500m
Einkaufszentrum <500m

Sonstige
Geldautomat <500m
Bank <500m
Post <500m
Polizei <500m

Verkehr
Bus <500m
U-Bahn <5.000m
Straßenbahn <1.500m
Bahnhof <1.000m
Autobahnanschluss <1.500m
Flughafen <8.000m

Angaben Entfernung Luftlinie / Quelle: OpenStreetMap

Eckdaten Objektnr. 21627

Art: Sonstige - Sonstige
Land: Österreich
Nutzfläche: 165,00 m²
Immobilie merken Exposé

Immobilie anfragen


Ihre persönliche Beratung

Immobilienwelt Leiner

Maria Leiner

Immobilienwelt Leiner

H +43 664 116 11 11