Schöner Wohnen - 4 Wohnungen St. Johann - Schulstraße

Wohnung , 9400 St. Johann


St. Johann i. L. - Bezirk Wolfsberg

Beschreibung der Immobilie

Schöner Wohnen - 4 Wohnungen St. Johann - Schulstraße

In St. Johann i. L., in der Schulstraße wird ein Wohnhaus mit nur 4 Wohneinheiten von der BM-Haus GmbH errichtet.



Wolfsberg ist in wenigen Minuten mit dem Auto erreichbar.



Alle 4 Wohnungen haben einen eigenen Gartenanteil !



Schlüsselfertige Ausführung - von regionalen Betrieben ausgeführt.



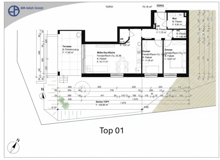
Top 01 = Wohnfläche 70,75 m² -



Gartenfläche 102,63 m² - überdachte Terrasse 17,84 m²       - inkl. 2 x Tiefgaragenplatz € 385.588,--



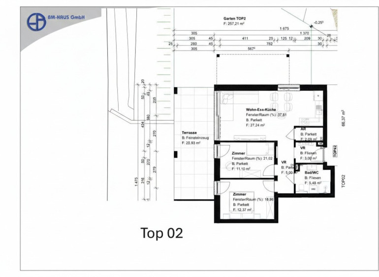
Top 02 = Wohnfläche 66,98 m² -



Gartenfläche 257,21 m²- überdachte Terrasse 25,93 m²        - inkl. 2 x Tiefgaragenplatz € 365.041,--



Top 03 = Wohnfläche 71,55 m² -



Gartenfläche 92,35 m² - überdachter Balkon 12,12 m²           - inkl. 2 x Tiefgaragenplatz € 389.948,--



Top 04  = Wohnfläche 53,16 m² 



Gartenfläche 92,30 m² - überdachter Balkon                           - inkl. 2 x Tiefgaragenplatz € 289.722,--                                                        



Das Gebäude wird in Ziegelbauweise mit Keller und Tiefgarage errichtet und verfügt über eine Fußbodenheizung mit Luftwärmepumpe   



Im Kaufpreis der Wohnung sind 2 x Tiefgaragenplätze enthalten.  



Wohnbauförderung möglich !



Provisionsfreier Verkauf ! 



Informationen:



Hugo Ebner, Immobilientreuhänder, Kontakt unter 0676/6330370 -  office@immo-ebner.at  -  www.immo-ebner.at




Der Vermittler ist als Doppelmakler tätig.

Eckdaten Objektnr. 765

Art: Wohnung
Land: Österreich
Baujahr: 2026
Alter: Neubau
Kaufpreis: 365.041,00
Heizwärmebedarf: 37,00 kWh/m²a
fGEE: 0,64
Immobilie merken Exposé

Ausstattung

Fliesen, Parkettboden, Fußbodenheizung, Personenaufzug, Dusche, Tiefgarage


Immobilie anfragen


Ihre persönliche Beratung

Hugo Ebner Immobilien

Hugo Ebner

Hugo Ebner Immobilien

H 0676 6330370