BEZAUBERNDE 67m²- ETAGENWOHNUNG MIT PERFEKTEN GRUNDRISS

Wohnung - Etage, 1160 Wien,Ottakring


Die Wohnung befindet sich in 1160 Wien in Wien. In unmittelbarer Nähe gibt es viele bequeme Einrichtungen, einschließlich Arztpraxis, Apotheke, Schule, Kindergarten, Supermarkt, Bäckerei, Einkaufszentrum, Bank, Geldautomat, Post, Polizei, Bus, Straßenbahn, U-Bahn und Bahnhof. Diese Einrichtungen sind alle gut erreichbar.

Beschreibung der Immobilie

BEZAUBERNDE 67m²- ETAGENWOHNUNG MIT PERFEKTEN GRUNDRISS







IHR WOHNBEDÜRFNIS



Ab sofort kommt diese teilsanierte, praktische   67m2  Wohnung zum Verkauf. Der perfekte Grundriss und der gute Zustand  ist beindruckend und bietet ein hohes Wohngefühl. 





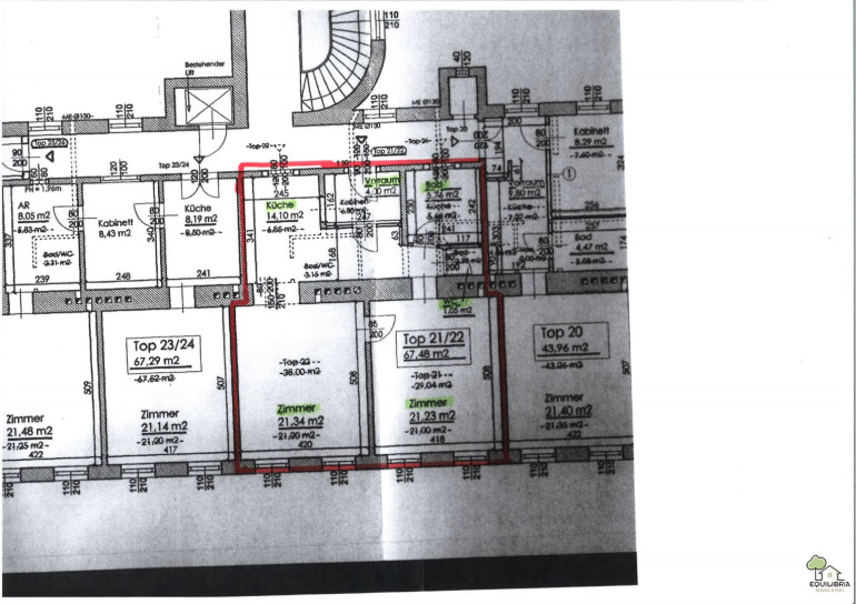
WOHNUNG & HAUS



Die im zweitem Stock (Lift) gelegene  Wohnung  befindet sich in einem ca. 1910 erbauten Mehrparteienhaus und zeichnet sich durch ihre ruhige Lage aus.  Vom großzügigen Vorzimmer aus erreichen Sie linkerhand das Badezimmer ( mit Dusche , Badewanne , Waschbecken und Waschmaschinenanschluss ) und getrennt das WC .Rechts vom Vorzimmer , erstreckt sich die geräumige Wohnküche von der Sie direkt in das erste Zimmer gelangen. Sie können die beiden Zimmer , sowohl getrennt , als auch mittels Verbindungstüre begehen. 





LAGE UND UMGEBUNG:




Die öffentliche Anbindung ist sehr gut und durch die nähe der zahlreichen Einkaufsmöglichkeiten, ist die tägliche Versorgung sichergestellt.





PREISINFORMATION:
Der Kaufpreis dieser  Immobilie beträgt  Euro 289.000.-



Die  aktuellen BK. Lift, inkl. Mwst. und Rücklagen  kommen monatlich auf derzeit Euro  242,06.-





INTERESSE?



Für mehr Informationen oder einen Besichtigungstermin steht Ihnen Wolfgang Konsel sehr gerne unter 0676/3505425 oder per E-Mail unter Wolfgang.konsel@equilibria.at zur Verfügung.



Wir weisen darauf hin, dass zwischen dem Vermittler und dem Auftraggeber ein  wirtschaftliches Naheverhältnis besteht.








Infrastruktur / Entfernungen

Gesundheit
Arzt <500m
Apotheke <500m
Klinik <1.000m
Krankenhaus <1.500m

Kinder & Schulen
Schule <500m
Kindergarten <500m
Universität <2.000m
Höhere Schule <1.500m

Nahversorgung
Supermarkt <500m
Bäckerei <500m
Einkaufszentrum <1.000m

Sonstige
Geldautomat <500m
Bank <500m
Post <500m
Polizei <500m

Verkehr
Bus <500m
U-Bahn <500m
Straßenbahn <500m
Bahnhof <500m
Autobahnanschluss <4.000m

Angaben Entfernung Luftlinie / Quelle: OpenStreetMap

Eckdaten Objektnr. 17276

Art: Wohnung - Etage
Land: Österreich
Baujahr: 1910
Zustand: Modernisiert
Alter: Altbau
Kaufpreis: 289.000,00
Betriebskosten: 152,57 €
MwSt Gesamt: 17,01 €
Wohnfläche: 67,48 m²
Zimmer: 2
Bäder: 1
WC: 1
Heizwärmebedarf:  E  154,52 kWh/m²a
fGEE:  E  1,34
Immobilie merken Exposé

Immobilie anfragen


Ihre persönliche Beratung

equilibria Immobilienmanagement GmbH & Co KG

Wolfgang Konsel

equilibria Immobilienmanagement GmbH & Co KG

H +43 6763505425

F +43 (0)1 2368219 99