GEFÖRDERTES Reihenhaus in Miete mit Kaufoption
Haus
- Reihenmittelhaus,
3370
Ybbs an der Donau
,
Theinstettner Straße 5
Die Stadtgemeinde Ybbs an der Donau ist im Mostviertel (NÖ) – ca. 50 Kilometer westlich von St. Pölten - gelegen und hat aktuell ca. 5600 Einwohner. Ybbs an der Donau ist ca. 2 Kilometer nördlich von der Autobahn A1 positioniert, welche die West-Ost-Richtung über Linz, St. Pölten nach Wien verbindet. Es gibt zahlreiche florierende Betriebe (z.B. Wasserkraftwerk, Sägewerk, Therapiezentrum, Entsorgungsunternehmen) und genügend Einkaufsmöglichkeiten sowie Nahversorger ca. 4 Autominuten vom Grundstück entfernt. Weiters gibt es eine Volksschule, eine Neue Mittelschule, eine Handelsakademie/Handelsschule sowie eine Sicherheitsakademie. Die Stadtgemeinde bietet ein ganz besonderes Ambiente und ist eine Stadt mit Lebensqualität: https://www.ybbs.gv.at/
Beschreibung der Immobilie
GEFÖRDERTES Reihenhaus in Miete mit Kaufoption
Schönes Reihenhaus mit Keller
GEFÖRDERTES Reihenhaus in MIETE mit Kaufoption
Schönes Reihenhaus mit Keller.
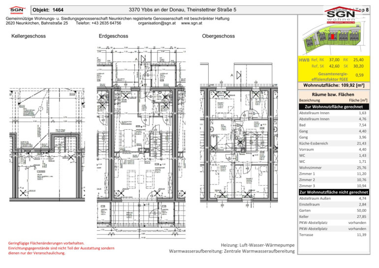
Dieses 4 Zimmer-Reihenhaus mit Keller erstreckt sich mit ca. 110 m² Wohnfläche über zwei Etagen. Es verfügt über einen Eigengarten mit Terrasse, zwei PKW-Abstellplätze, zwei Abstellräume, ein außenliegenden Einstellraum.
Untergeschoss: Ein großes Wohn- Esszimmer mit einer Kochnische, ein Vorraum, ein WC, ein Abstellraum, Aufgang ins Obergeschoss und Ausgang in den Eigengarten.
Obergeschoss: Drei Schlafräume, ein Badezimmer mit Wanne, ein Abstellraum, ein WC, zwei Gänge.
Für Detailauskünfte stehen wir gerne zur Verfügung!
Der Immobilienmakler erklärt, dass er – entgegen dem in der Immobilienwirtschaft üblichen Geschäftsgebrauch des Doppelmaklers – einseitig nur für den Vermieter tätig ist.
Infrastruktur / Entfernungen
Gesundheit
Arzt <600m
Apotheke <1.425m
Kinder & Schulen
Schule <1.425m
Kindergarten <1.150m
Universität <6.375m
Nahversorgung
Supermarkt <1.275m
Bäckerei <1.475m
Einkaufszentrum <1.425m
Sonstige
Bank <1.400m
Post <950m
Geldautomat <1.625m
Polizei <1.400m
Verkehr
Bus <325m
Autobahnanschluss <3.075m
Bahnhof <2.700m
Angaben Entfernung Luftlinie / Quelle: OpenStreetMap
Eckdaten Objektnr. 14641008
Art: | Haus - Reihenmittelhaus |
Land: | Österreich |
Baujahr: | 2022 |
Zustand: | Gepflegt |
Alter: | Neubau |
Gesamtmiete: | 1.027,28 € |
Kaltmiete (netto): | 725,40 € |
Kaltmiete: | 933,89 € |
Provision: | Gemäß Erstauftraggeberprinzip bezahlt der Abgeber die Provision. |
Betriebskosten: | 208,49 € |
MwSt Gesamt: | 93,39 € |
Wohnfläche: | 110,13 m² |
Zimmer: | 4 |
Bäder: | 1 |
WC: | 2 |
Terrassen: | 1 |
Stellplätze: | 2 |
Garten: | 66,00 m² |
Keller: | 29,22 m² |
Heizwärmebedarf: | 30,20 kWh/m²a |
fGEE: | 0,59 |
Ausstattung
Fliesen, Laminatboden, Fußbodenheizung, Badewanne, Dusche, Kabel/Satelliten-TV, Parkplatz
Ihre persönliche Beratung

Fabian Männl, MA
SGN Gemeinnützige Wohnungs- u. Siedlungsgenossenschaft Neunkirchen reg.Gen.m.b.H.
T +43 2635 64756 14
H +43 664 8347376