Beschreibung der Immobilie
Traumhaftes Penthouse in Wels
Extravagantes Wohnen im Zentrum von Wels
In der bestehenden Liegenschaft befindet sich eine Apotheke und eine Arztordination. Das 2. Obergeschoss wurde generalsaniert und das Dachgeschoß mit 2 hochwertigen Wohnungen und weitläufigen Terrassen erweitert.
Die Einheiten sind über die Rablstraße und mit einem Lift erreichbar. Die Wohnungsgrößen liegen zwischen ca. 50m2 und 135m2.
- Exklusive Ausführung mit hochwertigen Materialien
- Fussbodenheizung
- Fernwärme
- Raumhöhe von 2,50m bis 4,30m
- Lift
- provisionsfrei für den Käufer
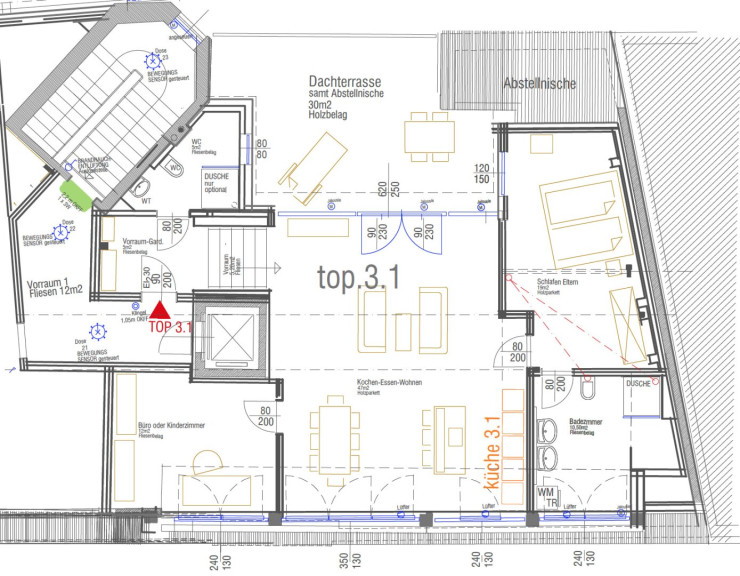
Diese exklusive Dachgeschosswohnung wartet darauf, von Ihnen entdeckt zu werden. Mit einem großzügigen Raumangebot von ca. 96 m² und lichtdurchfluteten Zimmern ist diese Immobilie der perfekte Ort für Familien, Paare oder Singles, die den urbanen Lebensstil schätzen.
Ein Gefühl von Exklusivität, das Sie in dieser Lage kaum woanders finden werden. Genießen Sie den Erstbezug und die Möglichkeit, Ihre persönliche Note (Bodenbeläge, Baddesign etc.) in diese traumhafte Wohnung einzubringen.
Bei den Bilder handelt es sich um KI veränderten Bilder um sich die Wohnung in einem fertigen Zustand vorstellen zu können (derzeit Belagsfertig).
Die Wohnung besticht durch ihre durchdachte Raumaufteilung und hochwertige Ausstattung. Durch die Auswahl der Bodenbeläge (Parkett, Fliesen...) sorgen Sie selbst für eine harmonische Atmosphäre, während die Fußbodenheizung sowie die Vorbereitung für eine Klimaanlage sorgen für ein angenehmes Raumklima sorgt. Der Personenaufzug bringt Sie bequem direkt in Ihre Etage – ideal für Familien mit Kindern oder ältere Menschen.
Einer der Höhepunkte dieser Immobilie ist die großzügige Terrasse, auf der Sie gemütliche Stunden im Freien verbringen können. Genießen Sie den Stadtblick und lassen Sie Ihre Seele baumeln.
Die Lage könnte nicht besser sein! In unmittelbarer Nähe finden Sie alles, was Sie für den täglichen Bedarf benötigen: Ärzte, Apotheken, Kliniken, Schulen und Kindergärten sind in wenigen Minuten erreichbar. Auch Supermärkte und Bäckereien liegen in der Nähe und sorgen dafür, dass Sie immer gut versorgt sind.
Die Verkehrsanbindung ist hervorragend. Bus- und Bahnhaltestellen befinden sich in der Nähe, sodass Sie schnell und unkompliziert in die Innenstadt oder zu anderen Zielen gelangen können.
Lassen Sie sich diese Gelegenheit nicht entgehen! Diese Dachgeschosswohnung in Wels vereint modernes Wohnen mit einer erstklassigen Lage und bietet Ihnen ein Zuhause, in dem Sie sich rundum wohlfühlen werden. Vereinbaren Sie noch heute einen Besichtigungstermin und überzeugen Sie sich selbst von den Vorzügen dieser einzigartigen Immobilie!
Noch nichts gefunden? Wir informieren Sie über geeignete Immobilienangebote noch vor allen anderen.
Legen Sie jetzt Ihren individuellen Suchagenten unter folgendem Link an. Wir schicken Ihnen passende Immobilien exklusiv vorab zu.
Suchagent anlegen - https://m-e-immobilien.service.immo/registrieren/de
Für weitere Fragen bzw. zur Vereinbarung von Besichtigungsterminen steht Ihnen Herr Markus Efferdinger gerne unter der Mobilnummer +43 664 345 90 15 zur Verfügung.
Alle Angaben zur Liegenschaft wurden mit Sorgfalt erhoben. Zahlenangaben können gerundet oder geschätzt sein. Für die Richtigkeit und Vollständigkeit ist der Auftraggeber verantwortlich.
Infrastruktur / Entfernungen
Gesundheit
Arzt <250m
Apotheke <250m
Klinik <750m
Krankenhaus <1.500m
Kinder & Schulen
Schule <250m
Kindergarten <500m
Universität <250m
Nahversorgung
Supermarkt <250m
Bäckerei <250m
Einkaufszentrum <2.500m
Sonstige
Bank <250m
Geldautomat <250m
Post <500m
Polizei <250m
Verkehr
Bus <250m
Autobahnanschluss <2.750m
Bahnhof <750m
Flughafen <2.500m
Angaben Entfernung Luftlinie / Quelle: OpenStreetMap
Eckdaten Objektnr. 263
Art: | Wohnung - Dachgeschoß |
Land: | Österreich |
Baujahr: | 2024 |
Zustand: | Erstbezug |
Alter: | Neubau |
Kaufpreis: | 610.000,00 € |
Provision: | Provision bezahlt der Abgeber. |
Wohnfläche: | 96,00 m² |
Zimmer: | 3,50 |
Bäder: | 2 |
WC: | 1 |
Terrassen: | 1 |
Heizwärmebedarf: | B 50,00 kWh/m²a |
fGEE: | A 0,87 |
Ausstattung
Dielenboden, Fliesen, Parkett, Fußbodenheizung, Personenaufzug, Südbalkon, Bad mit Fenster, Dusche, Kabel/Satelliten-TV, Parkplatz
Ihre persönliche Beratung

Markus Efferdinger
m.e. Immobilien e.U.
T +43 664 3459015
H +43 7242 323022