Zentrale 2-Zimmer-Wohnung in Götzis

Flat - Floor, 6840 Götzis


Property description

× These contents are currently available in german only. Please get in touch with the property's agent for more information.

Zentrale 2-Zimmer-Wohnung in Götzis

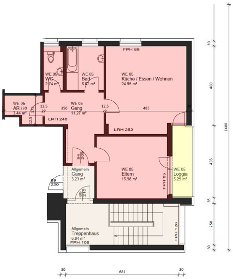
Die Wohnung im Überblick



Diese gepflegte 2-Zimmer-Wohnung im 2. Obergeschoss überzeugt mit einer durchdachten Raumaufteilung:



  • Helles Badezimmer: Mit Fenster, Badewanne und separater Dusche.
  • Praktische Details: Separates WC und ein zusätzlicher Abstellraum.
  • Balkon: Für entspannte Stunden im Freien.
  • Einbauküche: Modern und voll ausgestattet, verbunden mit dem Wohn- und Essbereich.
  • Stauraum: Ein Kellerabteil steht zur Verfügung.
  • KFZ-Außenabstellplatz




Ideal für Singles oder Paare!
Vereinbaren Sie jetzt einen Besichtigungstermin und entdecken Sie Ihr neues Zuhause in Götzis.

Noch nichts gefunden? Wir informieren Sie über geeignete Immobilienangebote noch vor allen anderen.
Legen Sie jetzt kostenlos Ihren individuellen Suchagenten unter folgendem Link an. Wir schicken Ihnen passende Immobilien exklusiv vorab zu.

Suchagent anlegen


Wir weisen darauf hin, dass zwischen dem Vermittler und dem zu vermittelnden Dritten ein familiäres oder wirtschaftliches Naheverhältnis besteht.


Der Immobilienmakler erklärt, dass er – entgegen dem in der Immobilienwirtschaft üblichen Geschäftsgebrauch des Doppelmaklers – einseitig nur für den Vermieter tätig ist.

Infrastruktur / Entfernungen

Gesundheit
Arzt <500m
Apotheke <500m
Krankenhaus <4.500m

Kinder & Schulen
Schule <500m
Kindergarten <500m
Höhere Schule <500m

Nahversorgung
Supermarkt <500m
Bäckerei <500m
Einkaufszentrum <5.000m

Sonstige
Bank <500m
Geldautomat <500m
Post <1.000m
Polizei <500m

Verkehr
Bus <500m
Bahnhof <1.000m
Autobahnanschluss <2.000m
Flughafen <7.000m

Angaben Entfernung Luftlinie / Quelle: OpenStreetMap

Summary, object # 5681/695

Type: Flat - Floor
Country: Austria
Built: 1961
Condition: Gepflegt
Total rent: 1,049.00
Rent excl. utility (net): €740.00
rent excluding heating bills: €860.69
Provision: Gemäß Erstauftraggeberprinzip bezahlt der Abgeber die Provision.
Utility cost: €120.69
Heating costs: €85.20
MwSt Gesamt: €103.11
Living space: 64.40 m²
Rooms: 2
Baths: 1
Toilets: 1
Balcony: 1
basement: 12.87 m²
Heating consumption:  C  58.00 kWh/m²a
fGEE:  D  1.95
Exposé

Ausstattung

Tiles, Parkett, Fitted kitchen, Eat-in kitchen / open plan kitchen, Bath with window, Bathtub, Shower


Immobilie anfragen


Ihre persönliche Beratung

Rimo Immobilien GmbH

Daniel Marte

Rimo Immobilien GmbH

T +43 5522 39303 28