Gründerzeitcharme mit Rendite über 4%
                                                            Wohnung
                                ,
                            
                            
                                
                                                                            1100
                                    
                                                                            Wien
                                    
                                    ,
                                        Senefeldergasse                                                                                            35                                                                                    
                                    
                                
                                                                    
                                        
                                    
                                
                            
                        
                        Beschreibung der Immobilie
Gründerzeitcharme mit Rendite über 4%
Alle verfügbaren Wohnungen finden Sie unter: www.accenta-immo.at/sen35
Das Projekt Senefeldergasse 35 vereint historischen Charme mit modernem Wohnkomfort.
Das gesamte Haus wurden umfassend renoviert, um zeitgemäße Wohnstandards zu erfüllen und gleichzeitig den ursprünglichen Charakter des Gebäudes zu bewahren. Dabei lag besonderes Augenmerk auf der Erhaltung historischer Elemente, ergänzt durch moderne Annehmlichkeiten. Insgesamt umfasst das Projekt 18 Wohnungen, von denen 13 über Außenflächen wie Balkone oder Terrassen verfügen.
Moderne Apartments für Kurzzeit- und Langzeitvermietung mit professionellem Betreiber für Kurzzeitvermietung und Vermietungs-Service.
Acht Wohnungen des Projekts verfügen über eine Beherbergungswidmung und werden mit einem Betreiber-Konzept für die Kurzzeitvermietung angeboten. Die übrigen Wohneinheiten sind für die Langzeitvermietung vorgesehen.
Sorglos-Vermietungs-Konzept | Betreiber für Kurzzeitvermietung | Mietenpool - das Konzept einfach erklärt
Ein Käufer erwirbt eine Wohnung und ist grundbücherlicher Eigentümer. Übliche Pflichten und Aufgaben von Vermietern wie Mietersuche, Kontrolle der Zahlungseingänge, Abrechnung der Betriebskosten, berechnen der Index-Anpassungen, Ansprechperson für Fragen / Reklamationen / Anliegen von Mietern, Kosten bei Leerstand, Maklerkosten bei Neuvermietung, Instandhaltungskosten und MRG-Einschränkungen, entfallen. Alle Vermieteraufgaben übernimmt ein renommierter Betreiber und Spezialist für Kurzzeitvermietung. Der Betreiber trägt sämtliche Betriebs-, Verbrauchs-, Energie- und Instandhaltungskosten. 
Die Mieteinnahmen werden über einen gemeinsamen Mietenpool prozentual auf Basis eines speziell errechneten „Rendite-Nutzwertes“ unter den Eigentümern verteilt. Dieser speziell berechnete Wert sorgt für volle Transparenz und garantiert jedem Eigentümer die gleiche Rendite.
Die Kombination der Kurzzeitvermietung mit Betreiber und dem Mietenpool-System bedeutet somit:
- Überdurchschnittlich hohe Mieteinnahmen / Renditen
- Stark reduziertes Vermieterrisiko
- Eigentümer überlässt Vermieteraufgaben dem Betreiber
Dieses Rundum-Sorglos-Paket steht für ein transparentes, renditestarkes und entspanntes Immobilieninvestment.
Zahlen, Daten, kalkulierte Werte | Beispielwohnung
- 34,44 m² gewichtete Wohnfläche
- 235.611,- Netto-Kaufpreis exkl. 20% USt
- 906,- Netto-Miete pro Monat (€ 25,06 pro m²)
- 4,34% Mietrendite
Kaufpreise
Netto-Kaufpreis* ab  € 180.000,- (zzgl. 20 % USt.)
Möbel- und Einrichtungspaket ist NICHT im Kaufpreis enthalten. Die Preise sind beim jeweiligen Objekt angeführt. 
Rechtlicher Hinweis: 
Alle Angaben beruhen auf Vergangenheitswerten und Annahmen; sie stellen keine Garantie für zukünftige Entwicklungen dar. Sämtliche Bilder, Visualisierungen, Pläne und KI-generierte Darstellungen, die in den Inseraten verwendet werden, dienen ausschließlich als Referenz. Die gezeigte Einrichtung und Fotos sind beispielhaft und können von der tatsächlichen Ausstattung oder dem Layout abweichen. Alle Angaben beruhen auf Informationen des Verkäufers.
Noch nichts gefunden? Wir informieren Sie über geeignete Immobilienangebote noch vor allen anderen.
Legen Sie jetzt Ihren individuellen Suchagenten unter folgendem Link an. Wir schicken Ihnen passende Immobilien exklusiv vorab zu.
Suchagent anlegen - https://accenta-immobilien.service.immo/registrieren/de
Wir weisen darauf hin, dass zwischen dem Vermittler und dem zu vermittelnden Dritten ein familiäres oder wirtschaftliches Naheverhältnis besteht.
Der Vermittler ist als Doppelmakler tätig.
Sie wollen auch Ihre Immobilien Verkaufen oder Vermieten?
Accenta Immobilien - Ihr Partner für Immobilienvermittlung
www.accenta-immo.at
01/997 12 93
 
Infrastruktur / Entfernungen
Gesundheit
Arzt <50m
Apotheke <175m
Klinik <200m
Krankenhaus <1.825m
Kinder & Schulen
Schule <175m
Kindergarten <375m
Universität <850m
Höhere Schule <2.275m
Nahversorgung
Supermarkt <50m
Bäckerei <150m
Einkaufszentrum <900m
Sonstige
Geldautomat <100m
Bank <100m
Post <100m
Polizei <600m
Verkehr
Bus <150m
U-Bahn <200m
Straßenbahn <100m
Bahnhof <200m
Autobahnanschluss <1.275m
Angaben Entfernung Luftlinie / Quelle: OpenStreetMap
Eckdaten Objektnr. 10292
| Art: | Wohnung | 
| Land: | Österreich | 
| Baujahr: | 1900 | 
| Zustand: | Erstbezug | 
| Möbliert: | Voll | 
| Kaufpreis: | 180.000,00 € | 
| Provision: | 3% des Kaufpreises zzgl. 20% USt. | 
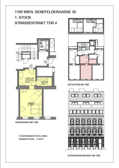
| Wohnfläche: | 31,28 m² | 
| Nutzfläche: | 31,28 m² | 
| Gesamtfläche: | 31,28 m² | 
| Zimmer: | 1 | 
| Bäder: | 1 | 
| Heizwärmebedarf: | B 31,43 kWh/m²a | 
| fGEE: | A 0,77 | 
Ausstattung
Fliesen, Parkett, Fernwärme, Fußbodenheizung, Einbauküche, Personenaufzug, Dusche
Ihre persönliche Beratung
 
                                                        Martina Schütz
Accenta Immobilien e.U.
T +43 1 9971293
H +43 699 17089345
F +43 1 997129310
 
                 
                 
                 
                 
                 
                