SONNIGES HAUS AM HEUBERG MIT SÜDWESTGARTEN & TRAUMBLICK

Haus , 1170 Wien


1170 Wien, Heuberg

Beschreibung der Immobilie

SONNIGES HAUS AM HEUBERG MIT SÜDWESTGARTEN & TRAUMBLICK

Sonniges 210m² großes Haus auf 4 Ebenen mit schönem 320m² Südwestgarten und großer Südwestgartenterrasse.



( 2 Wohnzimmer, Esszimmer, Küche, Teeküche, 4 Schlafzimmer, 3 Bäder, Schrankraum, begehbare Garderobe, 3 Abstellräume, 5 WCs )



--- WIENBLICK ---



Bezugsdatum: ab sofort



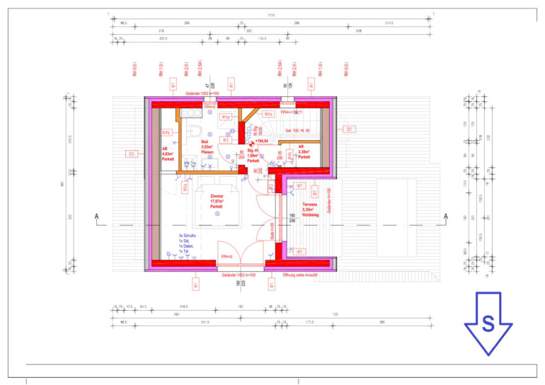
Erdgeschoss - 60m² :  Vom Vorzimmer gelangt man in das schöne 26m² südwestseitige Wohnzimmer mit offenem Kamin und durch die großzügigen, gartenseitigen Terrassentüren hat man einen direkten Zugang in den 320m² Südwestgarten und zur südwestseitigen Gartenterrasse. Die moderne Küche ist durch eine Schiebetüre mit dem Wohnzimmer verbunden und in Richtung südostseitigem Esszimmer mit einer Glasscheibe und einem Durchgang geöffnet. Die Küche verfügt über einen Geschirrspüler, Ceranfeld, Backrohr, Mikrowelle und einen Dunstabzug. Weiters gibt es auf dieser Ebene ein WC mit Fenster und einen Garderobenbereich. 



Obergeschoss - 54m² : Die zwei Schlafzimmer sind zentral vom Vorzimmer ausbegehbar. Das südostseitige Schlafzimmer verfügt über eine 6m² große Ostterrasse - das 16m² große Schlafzimmer ist südwestseitig. Das Badezimmer mit Fenster ist mit einer großen Eckwanne, einer Glasdusche und einem Spiegel mit Beleuchtung versehen. Das WC mit Fenster ist separat. Weiters gibt es eine 6m² begehbare Garderobe.



Dachgeschoss - 36m² : Das 18m² Schlafzimmer ist südostseitig und hat eine anschließende 5m² Ostterrasse. Das Badezimmer ist mit einem Fenster, einer Dusche, einem Waschbecken, einem WC und einem Waschmaschinenanschluss versehen. Weiters gibt es 2 Abstellräume.



Gartengeschoss - 60m²: Auf dieser Ebene gibt es eine Einliegerwohnung, die aus einem 16m² Wohnzimmer mit Teeküche, einem 14m² südseitigen Schlafzimmer mit anschließendem Badezimmer und Schrankraum besteht sowie über einen 2. Eingang ins Haus verfügt. Vom Wohnzimmer hat man direkten Zugang in den schönen Ostteil des Gartens. Das Badezimmer ist mit einem WC, Waschbecken und einer Glasdusche ausgestattet. Weiters gibt es auf dieser Ebene ein WC und einen Abstellraum sowie einen Waschmaschinenanschluss und einen Technikraum.



Im schönen 320m² großen Südwestgarten gibt es ein Gartenhaus und eine automatische Bewässerung.





Infrastruktur:  Öffentliche Verbindungen:Bus 44 A Grabengasse/Plachygasse, S45 Hernals: 20 Minuten, Schottentor: 35 Minuten,Stephansplatz: 43 Minuten, UNO-City: 58 Minuten



Herrliche Freizeitmöglichkeiten am nahen Heuberg und Wilhelminenberg sowie gute Einkaufsmöglichkeiten auf der Alszeile. Eine aktuelle Schul- und Kindergartenaufstellung liegt uns auf und kann Ihnen gerne übermittelt werden.

 


Der Immobilienmakler erklärt, dass er – entgegen dem in der Immobilienwirtschaft üblichen Geschäftsgebrauch des Doppelmaklers – einseitig nur für den Vermieter tätig ist.

Infrastruktur / Entfernungen

Gesundheit
Arzt <1.000m
Apotheke <1.000m
Klinik <2.500m
Krankenhaus <1.500m

Kinder & Schulen
Schule <2.000m
Kindergarten <1.000m
Universität <1.500m
Höhere Schule <3.500m

Nahversorgung
Supermarkt <1.000m
Bäckerei <1.000m
Einkaufszentrum <2.500m

Sonstige
Geldautomat <2.500m
Bank <2.500m
Post <1.000m
Polizei <2.500m

Verkehr
Bus <500m
Straßenbahn <1.000m
U-Bahn <3.000m
Bahnhof <2.500m
Autobahnanschluss <6.000m

Angaben Entfernung Luftlinie / Quelle: OpenStreetMap

Eckdaten Objektnr. 2785

Art: Haus
Land: Österreich
Baujahr: 2014
Zustand: Modernisiert
Alter: Neubau
Gesamtmiete: 4.730,00
Kaltmiete (netto): 4.000,00 €
Kaltmiete: 4.300,00 €
Provision: Gemäß Erstauftraggeberprinzip bezahlt der Abgeber die Provision.
Betriebskosten: 300,00 €
MwSt Gesamt: 430,00 €
Wohnfläche: 210,00 m²
Zimmer: 7
Bäder: 3
WC: 5
Terrassen: 3
Garten: 320,00 m²
Heizwärmebedarf:  B  49,74 kWh/m²a
fGEE:  A+  0,65
Immobilie merken Exposé

Ausstattung

Parkett, Fliesen, Gas, Etagenheizung, Fußbodenheizung, Wohnküche / offene Küche, Einbauküche, Ostbalkon, Bad mit Fenster, Badewanne, Dusche, Kabel/Satelliten-TV, Alarmanlage


Immobilie anfragen


Ihre persönliche Beratung

Alexandra Riegler

STANZEL & CO Wohnungs- und Geschäftsvermittlung GmbH

T +43 (1) 533 43 05

H +43 (1) 533 08 87