3-Zimmer-Altbaujuwel mit Balkon – generalsaniert! - Zwischen „Am Hof“ und Hoher Markt – Wohnen im Herzen der Wiener Innenstadt
Wohnung
,
1010
Wien
,
Jordangasse
Beschreibung der Immobilie
3-Zimmer-Altbaujuwel mit Balkon – generalsaniert! - Zwischen „Am Hof“ und Hoher Markt – Wohnen im Herzen der Wiener Innenstadt
Perfekte Kombination aus Altbauflair und modernstem Wohnen im Herzen von Wien
Erleben Sie die perfekte Symbiose aus klassischem Altbauflair und modernstem Wohnkomfort!
Inmitten der Wiener Altstadt, in der charmanten Jordangasse 7A, befindet sich dieses aufwendig generalsanierte Wohnhaus mit stilvoller Fassade und hochwertiger Ausstattung.
Die Wohnung überzeugt durch ihren durchdachten Grundriss, helle Räume und edle Materialien – ideal für all jene, die das urbane Leben in einem historischen Ambiente schätzen.
Lage & Umgebung
Die zentrale Innenstadtlage bietet alles, was das Herz begehrt:
Nur wenige Schritte entfernt finden Sie die Kärntner Straße mit ihren exklusiven Boutiquen, zahlreichen Cafés und Restaurants sowie kulturelle Highlights wie die Wiener Staatsoper oder das Mozarthaus.
Auch der Naschmarkt, das Freihausviertel und der Stadtpark sind in kürzester Zeit erreichbar.
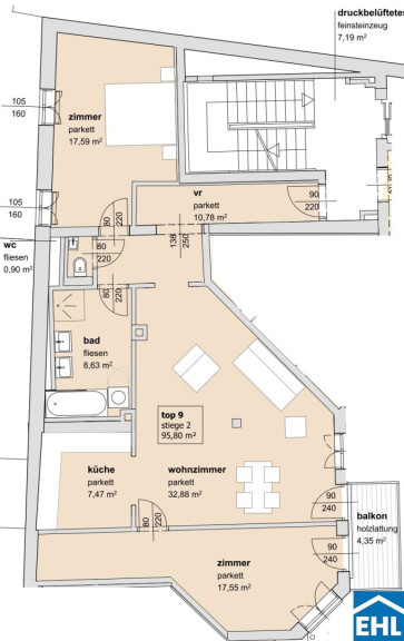
Raumaufteilung
- Großzügige Wohnküche mit voll ausgestatteter Design-Einbauküche und direktem Zugang auf den Balkon
- Zwei ruhige Schlafzimmer
- Luxuriöses Badezimmer mit Doppelwaschbecken, Badewanne, Dusche und Waschmaschinenanschluss
- Separates WC
- Einladender Vorraum
Ausstattung
- Hochwertige, voll ausgestattete Küche
- Edle Parkettböden in allen Wohnräumen
- Moderne Fliesen in den Nassräumen
- Fernwärmeheizung
- Kellerabteil pro Wohnung
- Lift sowie Kinderwagen- und Fahrradabstellraum im Haus
- (Hinweis: Das Objekt ist nicht barrierefrei.)
Das Objekt ist nicht barrierefrei.
Öffentliche Verkehrsanbindung
- U-Bahnlinie U3 „Herrengasse“ und "Stephansplatz"
- U-Bahnlinie U1 „Schwedenplatz“
- Buslinien 1A, 3A
- Straßenbahnlinie 1, 2, 37, 38, 40, 71, D
Befristung: 3,5 Jahre, 1 Jahr Kündigungsverzicht, 3 Monate Kündigungsfrist
Nebenkosten: 3BMM, Vertragserrichtungsgebühren
Wir weisen darauf hin, dass zwischen dem Vermittler und dem zu vermittelnden Dritten ein familiäres oder wirtschaftliches Naheverhältnis besteht.
Der Immobilienmakler erklärt, dass er – entgegen dem in der Immobilienwirtschaft üblichen Geschäftsgebrauch des Doppelmaklers – einseitig nur für den Vermieter tätig ist.
Infrastruktur / Entfernungen
Gesundheit
Arzt <250m
Apotheke <250m
Klinik <750m
Krankenhaus <1.000m
Kinder & Schulen
Schule <250m
Kindergarten <250m
Universität <750m
Höhere Schule <500m
Nahversorgung
Supermarkt <250m
Bäckerei <250m
Einkaufszentrum <1.000m
Sonstige
Geldautomat <250m
Bank <250m
Post <250m
Polizei <250m
Verkehr
Bus <250m
U-Bahn <500m
Straßenbahn <500m
Bahnhof <500m
Autobahnanschluss <3.250m
Angaben Entfernung Luftlinie / Quelle: OpenStreetMap
Eckdaten Objektnr. 26036
| Art: | Wohnung |
| Land: | Österreich |
| Zustand: | Gepflegt |
| Alter: | Neubau |
| Gesamtmiete: | 2.490,00 € |
| Kaltmiete (netto): | 2.004,97 € |
| Kaltmiete: | 2.263,63 € |
| Provision: | Gemäß Erstauftraggeberprinzip bezahlt der Abgeber die Provision. |
| Betriebskosten: | 258,66 € |
| MwSt Gesamt: | 226,37 € |
| Wohnfläche: | 95,80 m² |
| Zimmer: | 3 |
| Bäder: | 1 |
| WC: | 1 |
| Balkone: | 1 |
| Heizwärmebedarf: | B 44,16 kWh/m²a |
| fGEE: | C 1,04 |
Ausstattung
Fliesen, Parkett, Zentralheizung, Einbauküche, Wohnküche / offene Küche, Personenaufzug, Badewanne, Dusche
Ihre persönliche Beratung
Dieser Makler ist ein offizielles Mitglied des IR – ir.at Mehr Erfahren
