Wunderschönes Baugrundstück inkl. Einreichplan und Baubewilligung in Maria Rain / Göltschach

Grundstück , 9161 Maria Rain


Göltschach in der Gemeinde Maria Rain, absolute Ruhelage, tolle Aussicht zu den Karawanken

Beschreibung der Immobilie

Wunderschönes Baugrundstück inkl. Einreichplan und Baubewilligung in Maria Rain / Göltschach

Machen Sie Urlaub - jeden Tag - von zu Hause aus!
Dieses sonnige Baugrundstück mit 878 m² Grundfläche überzeugt mit einer Traumlage über der Nebelgrenze, einem bezaubernden Bergblick auf die Karawanken und mit der Nähe zu Klagenfurt.
Der Kindergarten, die Volksschule, Ärzte und Nahversorger sind im Zentrum von Maria Rain gelegen und mit dem Auto in 4 Minuten erreichbar. Klagenfurt liegt ca. 10 Autominuten entfernt.



Die Widmung lautet auf Bauland Dorfgebiet. Das Grundstück ist voll erschlossen und die Zufahrt erfolgt über eine Gemeindestraße.



Es besteht eine Bauverpflichtung seitens der Gemeinde Maria Rain bis Ende 2027. Die Kaution hierfür von € 15,- pro m² wird vom Käufer bei der Gemeinde hinterlegt. 



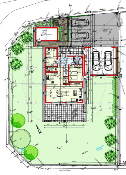
Ein bewilligter Einreichplan für ein zweistöckiges Einfamilienhaus mit ca. 150 m² Wohnfläche liegt bereits vor (siehe Pläne im Anhang) und könnte ohne Zusatzkosten übernommen werden. Die Baubewilligung ist ebenfalls schon ausgestellt.












Kaufpreis: € 135.000,-




zzgl. Kaufnebenkosten:
Grunderwerbsteuer: 3,5%

Eintragungsgebühr: 1,1% - entfällt derzeit, staatliche Sonderregelung (lt. öffentlicher Kundmachung)

Kaufvertragserrichtung: ca. 1,5 % netto von der Kaufsumme inkl. Treuhänderabwicklung

Maklerprovision: 3 % der Kaufsumme zzgl. 20 % USt.




Für Ihren geplanten Hausbau:
Wir arbeiten mit einem verlässlichen, heimischen Bau-Firmenpool zusammen und lassen Ihnen gerne ein Angebot für den Bau Ihres neuen Einfamilienhauses erstellen.




Finanzierung:
Gerne vermitteln wir Ihnen auch unseren Finanzierungspartner, der Sie bei der Hausfinanzierung unterstützt.





Für weitere Informationen bzw. Besichtigungen stehen wir jederzeit gerne zur Verfügung. Wir bitten um Verständnis, dass wir Besichtigungen nur mit Angabe Ihrer vollständigen Kontaktdaten vornehmen, da wir dem Abgeber gegenüber nachweisverpflichtet sind.



Alle Angaben lt. Abgeber - Irrtümer vorbehalten.

 



Anfragen unter:
Mag. Andrea Vranko

Ja-Wohnen Immobilien

Email: buero2@ja.or.at

Tel. 0699 8199 2204

Eckdaten Objektnr. 144

Art: Grundstück
Land: Österreich
Kaufpreis: 135.000,00
Provision: 3% des Kaufpreises zzgl. 20% USt.
Grundstücksfl.: 878,00 m²
Immobilie merken Exposé

Immobilie anfragen


Ihre persönliche Beratung

Ja-Wohnen FlexCo

Andrea Vranko

Ja-Wohnen

T +43 699 81992204