AN DER MANDELALLEE - Idyllisches Wohnen in Miete mit Kaufoption | provisionsfrei

Haus - Doppelhaushälfte, 7000 Eisenstadt , Mandelallee 1


Beschreibung der Immobilie

AN DER MANDELALLEE - Idyllisches Wohnen in Miete mit Kaufoption | provisionsfrei

Ihr neues Zuhause in Eisenstadt-Kleinhöflein



Das exklusive Wohnbauprojekt "AN DER MANDELALLEE" entsteht in idyllischer Lage zwischen Weingärten in Eisenstadt-Kleinhöflein. In ruhiger und naturnaher Umgebung realisiert das Österreichische Siedlungswerk (ÖSW) hochwertige Doppel- und Einfamilienhäuser in gehobener und schlüsselfertiger Ausstattung.



Freifinanzierte Miete mit Kaufoption



  • 12 Doppelhaushälften und 4 Einzelhäuser
  • Kaufoption nach 10 Jahren
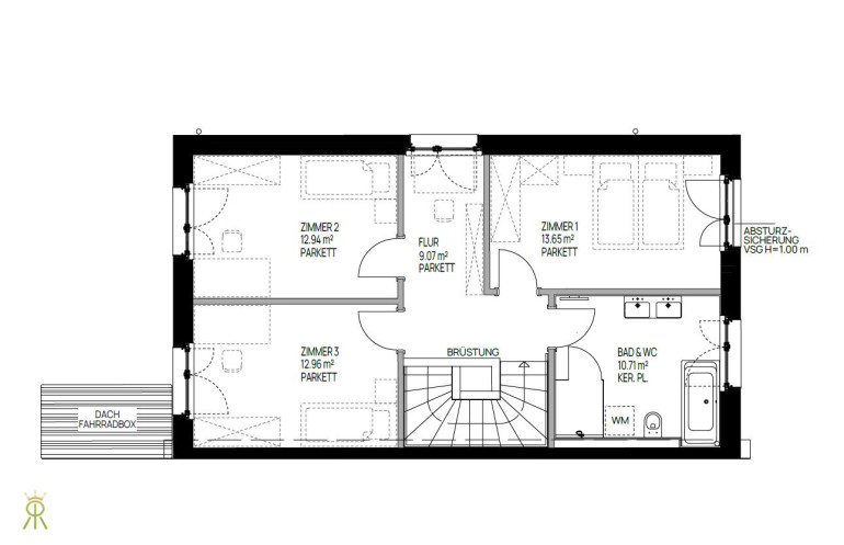
  • Wohnfläche 118m² bis 128m²
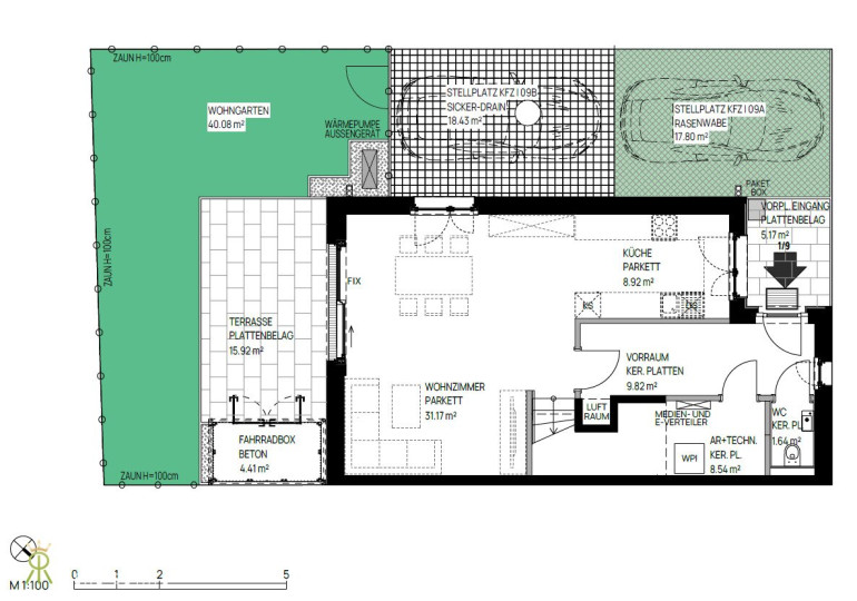
  • Jeweils ein eigener Garten bis 115m²
  • Zwei Stellplätze pro Haus
  • Großzügige Raumaufteilung auf zwei Ebenen

    EG: Küche, Wohnzimmer, WC, Abstellraum | OG: 3 Zimmer, Bad
  • Hochwertige Fertigteil-Ziegelmassivbauweise
  • Eichenparkett geklebt
  • Außenliegender Sonnenschutz
  • Große Fensterflächen
  • Energieeffiziente Luft-Wasser-Wärmepumpe
  • Bauteilaktivierung


Bitte beachten Sie den Finanzierungsbeitrag bei den Preisinformationen. Dieser wird vor Übergabe des Hauses vorgeschrieben.



Modernes Wohnen zwischen Weingärten



Die Südzeile der Mandelallee besticht durch ihren Blick auf Weingärten und umfasst 8 Doppelhaushälften und ein Einzelhaus. Die Nordzeile mit 4 Doppelhaushälften und 3 Einzelhäusern bietet auf der Rückseite eine malerische Aussicht auf die Stadtpfarrkirche Kleinhöflein. Auf zwei Geschossen bieten die Häuser großzügige Grundrisse und eine hochwertige Ausstattung.



Die Luft-Wasser-Wärmepumpe mit Betonkernaktivierung sorgt für eine nachhaltige Beheizung sowie angenehme Temperaturen im Sommer. Außenliegender Sonnenschutz macht die Häuser sommerfitund teils bodentiefe Fenster garantieren lichtdurchflutete Räume. Zudem verfügt jedes Haus über zwei Stellplätze im Freien sowie einen privaten Garten, der Raum für Erholung und Entspannung bietet.



Ländlich und doch urban



Die Mandelallee ist der ideale Wohnort für Familien und Paare, denn das Projekt vereint das Beste aus zwei Welten: Unmittelbarer Naturbezug und gleichzeitig urbane Nähe zur historischen Altstadt von Eisenstadt. In nur 5 Autominuten oder 10 Minuten mit dem Fahrrad erreichen Sie den Bahnhof Eisenstadt – perfekt für Pendler. Das Zentrum mit seinen vielfältigen Einkaufsmöglichkeiten, Restaurants und dem berühmten Schloss Esterházy liegt nur 15 Gehminuten entfernt. Wien ist mit dem Auto in 45 erreichbar. Für Familien ist die ruhige, verkehrsarme Lage ideal für eine sichere und lebenswerte Atmosphäre.



Ich freue mich auf Ihre Anfrage!



Angebote immer schon vor Vermarktungsbeginn sehen? >>> Folgen Sie mir auf Facebook oder Linkedin.


Der Immobilienmakler erklärt, dass er – entgegen dem in der Immobilienwirtschaft üblichen Geschäftsgebrauch des Doppelmaklers – einseitig nur für den Vermieter tätig ist.

Infrastruktur / Entfernungen

Gesundheit
Arzt <1.225m
Apotheke <1.125m
Klinik <6.750m
Krankenhaus <1.150m

Kinder & Schulen
Schule <725m
Kindergarten <1.325m
Universität <1.525m
Höhere Schule <2.300m

Nahversorgung
Supermarkt <800m
Bäckerei <275m
Einkaufszentrum <1.525m

Sonstige
Bank <975m
Geldautomat <1.275m
Post <850m
Polizei <1.225m

Verkehr
Bus <100m
Autobahnanschluss <1.875m
Bahnhof <1.625m

Angaben Entfernung Luftlinie / Quelle: OpenStreetMap

Eckdaten Objektnr. 462

Art: Haus - Doppelhaushälfte
Land: Österreich
Baujahr: 2026
Zustand: Erstbezug
Alter: Neubau
Gesamtmiete: 1.424,35
Kaltmiete (netto): 1.121,61 €
Kaltmiete: 1.295,77 €
Provision: Gemäß Erstauftraggeberprinzip bezahlt der Abgeber die Provision.
Betriebskosten: 164,21 €
MwSt Gesamt: 128,58 €
Wohnfläche: 119,42 m²
Grundstücksfl.: 177,30 m²
Zimmer: 4
Bäder: 1
WC: 2
Terrassen: 1
Stellplätze: 2
Garten: 45,25 m²
Heizwärmebedarf:  B  44,70 kWh/m²a
fGEE:  A++  0,51
Immobilie merken Exposé

Ausstattung

Parkett, Fliesen, Bad mit Fenster, Badewanne, Dusche


Immobilie anfragen


Ihre persönliche Beratung

Ribarski Real Estate GmbH

Mag. (FH) Monika Ribarski

Ribarski Real Estate GmbH

H +43 676 686 4444