Gemütliche Singlewohnung!

Wohnung , 1200 Wien , Salzachstraße


Salzachstraße

Beschreibung der Immobilie

Gemütliche Singlewohnung!

Diese helle, freundliche Wohnung befindet sich in ruhiger Innenhoflage in einem renovierten Wohnhaus zwischen Traisengasse und Innstraße.



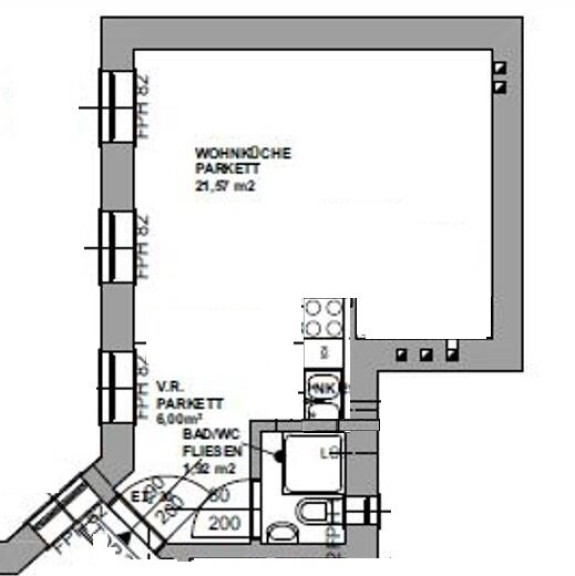
Sie verfügt über einen Vorraum. Zudem bietet die Wohnung einen geräumigen Wohn-/Schlafraum sowie eine offene Küche samt Geräten.

Das Badezimmer ist mit einer Dusche und WC ausgestattet. 




Lage und Umgebung:


Nur wenige Minuten zur Millenium City.

Öffentliche Verkehrsmittel in der Nähe: U6, Straßenbahn Linie 2 und Schnellbahn.

Nahversorgung in unmittelbarer Nähe.



Hinweis:
Bei den gezeigten Fotos handelt es sich um Symbolfotos einer ähnlichen Wohnung im Haus. Abweichungen zur angebotenen Einheit sind möglich.

Noch nichts gefunden? Wir informieren Sie über geeignete Immobilienangebote noch vor allen anderen.
Legen Sie jetzt Ihren individuellen Suchagenten unter folgendem Link an. Wir schicken Ihnen passende Immobilien exklusiv vorab zu.

Suchagent anlegen - https://accenta-immobilien.service.immo/registrieren/de

Sie möchten Ihre Immobilie verkaufen oder vermieten?
Vertrauen Sie auf unsere Erfahrung – mit geprüfter Qualität und transparenter Abwicklung. 

Die Immobilien Card garantiert Ihnen, dass Sie mit einem geprüften Profi für Verkauf und Vermietung sprechen.

Infrastruktur / Entfernungen

Gesundheit
Arzt <250m
Apotheke <500m
Klinik <750m
Krankenhaus <750m

Kinder & Schulen
Schule <250m
Kindergarten <250m
Universität <1.250m
Höhere Schule <1.750m

Nahversorgung
Supermarkt <250m
Bäckerei <500m
Einkaufszentrum <1.000m

Sonstige
Geldautomat <500m
Bank <500m
Post <500m
Polizei <500m

Verkehr
Bus <250m
U-Bahn <1.000m
Straßenbahn <250m
Bahnhof <750m
Autobahnanschluss <1.250m

Angaben Entfernung Luftlinie / Quelle: OpenStreetMap

Eckdaten Objektnr. 11483

Art: Wohnung
Land: Österreich
Baujahr: 1912
Kaufpreis: 179.000,00
Betriebskosten: 81,14 €
MwSt Gesamt: 9,66 €
Wohnfläche: 36,00 m²
Zimmer: 1
Bäder: 1
WC: 1
Heizwärmebedarf:  D  79,00 kWh/m²a
Immobilie merken Exposé

Ausstattung

Gas, Etagenheizung, Personenaufzug, Dusche


Immobilie anfragen


Ihre persönliche Beratung

Accenta Immobilien e.U.

Martina Schütz

Accenta Immobilien e.U.

T +43 1 9971293

H +43 699 17089345

F +43 1 997129310