Parkvilla Laakirchen - 14 exklusive Wohnungen zum Wohlfühlen

Wohnung , 4663 Laakirchen


Die Parkvilla Laakirchen befindet sich in ruhiger und attraktiver Lage, in der Doktor-Wimberger-Straße, 4663 Laakirchen bei Gmunden. Die Umgebung überzeugt durch eine sehr gute Infrastruktur: Einkaufsmöglichkeiten, Ärzte, Apotheken sowie Banken sind in wenigen Minuten erreichbar. Auch Kindergarten und Schule liegen in unmittelbarer Nähe und machen den Standort besonders familienfreundlich. Zudem ist die Verkehrsanbindung gut ausgebaut – eine Bushaltestelle befindet sich in Gehweite, während Bahnhof und Autobahnanschluss eine schnelle Verbindung in die umliegenden Städte ermöglichen. Ergänzt wird die hohe Lebensqualität durch die Nähe zur Traun, die in der Umgebung Möglichkeiten zum Baden und zur Erholung im Grünen bietet.

Beschreibung der Immobilie

Parkvilla Laakirchen - 14 exklusive Wohnungen zum Wohlfühlen


Infrastruktur / Entfernungen

Gesundheit
Arzt <1.000m
Apotheke <1.000m
Krankenhaus <8.000m
Klinik <1.000m

Kinder & Schulen
Schule <1.000m
Kindergarten <1.000m

Nahversorgung
Supermarkt <500m
Bäckerei <500m
Einkaufszentrum <7.000m

Sonstige
Bank <500m
Geldautomat <500m
Post <500m
Polizei <1.000m

Verkehr
Bus <500m
Straßenbahn <6.500m
Bahnhof <5.500m
Autobahnanschluss <3.000m
Flughafen <4.500m

Angaben Entfernung Luftlinie / Quelle: OpenStreetMap

Eckdaten Objektnr. 1942/83

Art: Wohnung
Land: Österreich
Zustand: Erstbezug
Alter: Neubau
Kaufpreis: 276.792,00
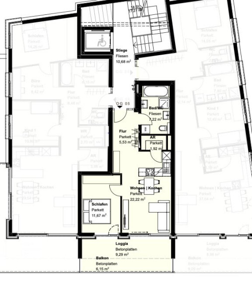
Wohnfläche: 48,56 m²
Zimmer: 2
Bäder: 1
WC: 1
Keller: 3,19 m²
Heizwärmebedarf:  B  59,60 kWh/m²a
fGEE:  A+  0,65
Immobilie merken Exposé

Immobilie anfragen


Ihre persönliche Beratung

Neubau Invest und Management GmbH

Neubau Invest & Management GmbH

Neubau Invest und Management GmbH

T +436769001575

H +43 (0) 7612 / 23 501