Altbauwohnung beim Judenplatz! - Klimatisiert!

Wohnung , 1010 Wien


Beschreibung der Immobilie

Altbauwohnung beim Judenplatz! - Klimatisiert!

Ruhelage I Altbauwohnung beim Judenplatz!



Wir freuen uns auf Ihren Anruf

Paul Kleindl 0699/1188 7600 oder 01/526 26 36



Beschreibung 

Im Haus "Zum kleinen Jordan", welches 1836 erbaut und 1856 aufgestockt wurde steht eine 176qm große Wohnung in erstklassiger Ruhelage frei zur Vermietung. Erleben Sie exklusives Wohngefühl im 2. Liftstock in diesem wunderschönen Jahrhundertwendehaus. 



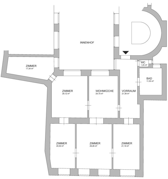
Raumaufteilung:

Zentraler Vorraum

Wohn-/Essbereich mit vollausgestatteter Küche

5 Zimmer

Badezimmer mit Badewanne, Dusche und Toilette

Separate Toilette



Ausstattung:

Parkettböden bzw. Fliesen sowie Gasetagenheizung und eine Komplettküche.



Infrastruktur und öffentliche Anbindung:

Geschäfte des täglichen Lebensbedarfes gibt es in unmittelbarer Nähe der Wohnung. Die öffentliche Anbindung ist sehr gut und wie folgt:

Bus 

Hoher Markt 3A (0,10 km) 

Brandstätte 1A, 2A, 3A (0,13 km) 

Hoher Markt 1A, 3A (0,13 km) 

U-Bahn Stephansplatz U1 (0,35 km) 

Stephansplatz U3 (0,35 km) 

Herrengasse U3 (0,43 km) 



Energieausweis: HWB 96



Wir freuen uns auf Ihren Anruf

Paul Kleindl 0699/1188 7600 oder 01/526 26 36




Wir weisen darauf hin, dass zwischen dem Vermittler und dem zu vermittelnden Dritten ein familiäres oder wirtschaftliches Naheverhältnis besteht.


Der Immobilienmakler erklärt, dass er – entgegen dem in der Immobilienwirtschaft üblichen Geschäftsgebrauch des Doppelmaklers – einseitig nur für den Vermieter tätig ist.

Eckdaten Objektnr. 1760/1078

Art: Wohnung
Land: Österreich
Baujahr: 1900
Zustand: Gepflegt
Alter: Altbau
Gesamtmiete: 3.793,02
Kaltmiete (netto): 3.175,00 €
Kaltmiete: 3.448,20 €
Provision: Gemäß Erstauftraggeberprinzip bezahlt der Abgeber die Provision.
Betriebskosten: 273,20 €
MwSt Gesamt: 344,82 €
Wohnfläche: 176,40 m²
Nutzfläche: 176,40 m²
Zimmer: 5
Bäder: 1
WC: 2
Heizwärmebedarf: 101,50 kWh/m²a
Immobilie merken Exposé

Ausstattung

Parkett, Gas, Etagenheizung, Einbauküche, Personenaufzug, Bad mit Fenster


Immobilie anfragen


Ihre persönliche Beratung

Lind Immobilien

Paul Kleindl

Lind Immobilien

T +43 1 526 26 36 14

H +43 699 1188 7600