Erstbezug Schrottgasse - 1-Zimmer Stilaltbauwohnung

Wohnung , 1030 Wien


Nähe Klopsteinplatz, Schrottgasse, zwei Busstationen vom Rochusmarkt

Beschreibung der Immobilie

Erstbezug Schrottgasse - 1-Zimmer Stilaltbauwohnung

Zur befristeten Vermietung gelangt eine schön sanierte Altbauwohnung im 3. Bezirk, in der Schrottgasse, Nähe Joe-Zawinul Park



Das Haus



Gepflegter Altbau in zentraler Wiener Lage. Sehr gute Infrastruktur in nächster Umgebung. Beste Verkehrsanbindung - mit dem Bus sind es nur zwei Stationen zum Rochusmarkt. 



Die Wohnung



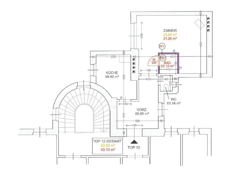
Diese sympatische Wohnung ist ca. 44 m² groß, liegt im dritten Stock ohne Lift und besteht aus



  • Vorzimmer
  • Küche
  • Zimmer
  • Badezimmer mit Dusche
  • separates WC


Man betritt die Wohnung über den Vorraum. Linkerhand befindet sich die Küche, eingerichtet mit einer modernen Einbauküche und mit Fenster in den sonnigen Hof. Im Vorraum geradeaus gelangt man ins Zimmer. Auch das Zimmer ist sehr ruhig, da es ebenfalls in den hellen Innenhof ausgerichtet ist. Im Zimmer wurde ein modernes Badezimmer mit Dusche eingebaut. Das WC ist separat.



Weiters:



  • Gasetagenheizung
  • Gegensprechanlage
  • Waschmaschinenanschluss
  • Parkettböden und Flügeltüren
  • Kellerabteil
  • Fahrradabstellplatz im Hof


Die Miete:



Die Wohnung wird auf fünf Jahre befristet vermietet. Diemonatliche Miete beträgt EUR 760, 01 und besteht aus



  • Hauptmietzins EUR 591,45
  • Betriebskosten netto EUR 99,37
  • Umsatzsteuer EUR 69,19


Die Kaution beträgt EUR 3.000.-



Einmalige Bearbeitungsgebühr EUR 360.-



Bei Interesse an der Wohnung senden Sie mir bitte eine Anfrage über die Anfragefunktion. Dann leite ich Ihnen gerne das Exposé der Wohnung weiter.


Der Immobilienmakler erklärt, dass er – entgegen dem in der Immobilienwirtschaft üblichen Geschäftsgebrauch des Doppelmaklers – einseitig nur für den Vermieter tätig ist.

Eckdaten Objektnr. 427

Art: Wohnung
Land: Österreich
Zustand: Erstbezug
Alter: Altbau
Gesamtmiete: 760,01
Kaltmiete (netto): 591,45 €
Kaltmiete: 690,82 €
Provision: Gemäß Erstauftraggeberprinzip bezahlt der Abgeber die Provision.
Betriebskosten: 98,37 €
MwSt Gesamt: 69,19 €
Nutzfläche: 44,00 m²
Zimmer: 1
Bäder: 1
WC: 1
Heizwärmebedarf:  D  125,00 kWh/m²a
fGEE:  D  2,14
Immobilie merken Exposé

Ausstattung

Parkett, Fliesen, Gas, Etagenheizung, Einbauküche, Dusche


Immobilie anfragen


Ihre persönliche Beratung

Adastra Immobilien

Adastra Immobilien - WMKM Opfermann e.U.