Helle Dachgeschosswohnung im 17.Bezirk

Wohnung , 1170 Wien


Nähe Rosensteingasse

Beschreibung der Immobilie

Helle Dachgeschosswohnung im 17.Bezirk

Helle Eigentumswohnung im Dachgeschoss 



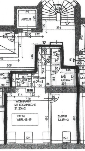
  • 48,49 m² Wohnungsfläche
  • 2 Zimmer plus NR
  • Vorraum plus Abstellraum
  • Bad mit Fenster !
  • getrenntes WC
  • freundlich & hell
  • neuwertige Küche
  • Außen- Jalousien 
  • Kellerabteil
  • Lift

Wir weisen darauf hin, dass zwischen dem Vermittler und dem zu vermittelnden Dritten ein familiäres oder wirtschaftliches Naheverhältnis besteht.


Der Vermittler ist als Doppelmakler tätig.

Infrastruktur / Entfernungen

Gesundheit
Arzt <500m
Apotheke <500m
Klinik <500m
Krankenhaus <1.500m

Kinder & Schulen
Schule <500m
Kindergarten <500m
Universität <1.500m
Höhere Schule <1.000m

Nahversorgung
Supermarkt <500m
Bäckerei <500m
Einkaufszentrum <500m

Sonstige
Geldautomat <500m
Bank <500m
Post <500m
Polizei <500m

Verkehr
Bus <500m
U-Bahn <1.000m
Straßenbahn <500m
Bahnhof <1.500m
Autobahnanschluss <3.500m

Angaben Entfernung Luftlinie / Quelle: OpenStreetMap

Eckdaten Objektnr. 205

Art: Wohnung
Land: Österreich
Baujahr: 1902
Alter: Altbau
Kaufpreis: 275.000,00
Provision: 3% des Kaufpreises zzgl. 20% USt.
Betriebskosten: 142,74 €
MwSt Gesamt: 14,47 €
Wohnfläche: 48,49 m²
Nutzfläche: 48,49 m²
Gesamtfläche: 48,49 m²
Zimmer: 2
Bäder: 1
WC: 1
Heizwärmebedarf:  C  88,00 kWh/m²a
fGEE:  C  1,51
Immobilie merken Exposé

Ausstattung

Gas, Etagenheizung, Zentralheizung, Einbauküche, Personenaufzug, Dusche, Bad mit Fenster, Badewanne


Immobilie anfragen


Ihre persönliche Beratung

GK Immo

Gerald Kopecny

GK Immo

T +43 660 341 08 96

H +43 660 341 08 96