4-Zimmer Wohnung mit Wintergarten und Terrasse
Wohnung
- Erdgeschoß,
2344
Maria Enzersdorf
Beschreibung der Immobilie
4-Zimmer Wohnung mit Wintergarten und Terrasse
In begehrter Ruhelage von Maria Enzersdorf gelangt diese großzügige und lichtdurchflutete 4-Zimmer-Wohnung zur Vermietung.
Die Immobilie überzeugt durch ihre sonnige Ausrichtung, durchdachte Raumaufteilung - ideal für Familien oder anspruchsvolle Paare.
Highlights der Wohnung:
-
4 gut geschnittene Zimmer
.
- Helle, freundliche Wohnräume dank großer Fensterflächen
- Sonnige Terrasse mit Blick ins Grüne
-
Ruhelage
-
2 zugeordnete Parkplätze
- Hauszentralheizung für angenehmen Wohnkomfort
- Klimaanlage im Wohnzimmer
- Wintergarten
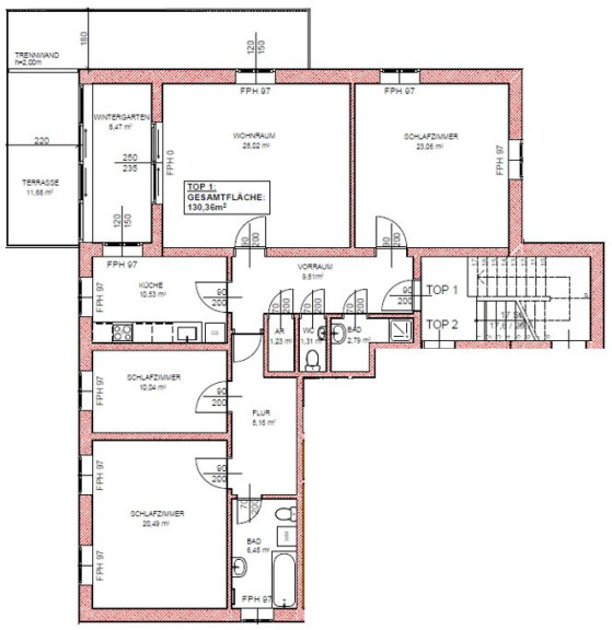
Raumaufteilung: Die Wohnung bietet einen großzügigen Wohn- und Essbereich mit direktem Zugang zur Terrasse. Drei weitere Zimmer eignen sich ideal als Schlafzimmer, Kinderzimmer oder Homeoffice. Eine separate Küche sowie ein Badezimmer und ein zusätzliches WC runden das Raumangebot ab.
Besonderer Hinweis zur Ausstattung: Bei Auswahl eines neuen Bodenbelags (z. B. Parkett oder Fliesen) durch den Mieter übernimmt der
Eigentümer die Kosten für die fachgerechte Verlegung sowie sämtliche damit verbundenen Arbeitsleistungen.
Die Kosten für das Material trägt der Mieter
Lage:
Die Immobilie befindet sich in einer ruhigen Wohngegend mit viel Grün und hoher Lebensqualität. Einkaufsmöglichkeiten, Schulen, Kindergärten sowie öffentliche Verkehrsanbindungen sind in wenigen Minuten erreichbar. Die Nähe zu Wien macht den Standort besonders attraktiv.
Sonstiges:
Die Kombination aus ruhiger Lage, sonniger Ausrichtung und praktischer Ausstattung macht diese Wohnung zu einer seltenen Gelegenheit in Maria Enzersdorf.
Eckdaten Objektnr. 141/85521
| Art: | Wohnung - Erdgeschoß |
| Land: | Österreich |
| Gesamtmiete: | 2.457,15 € |
| Kaltmiete (netto): | 1.990,00 € |
| Provision: | provisionsfrei |
| Betriebskosten: | 243,77 € |
| MwSt Gesamt: | 223,38 € |
| Wohnfläche: | 131,00 m² |
| Zimmer: | 4 |
| Bäder: | 2 |
| WC: | 2 |
| Terrassen: | 1 |
| Heizwärmebedarf: | C 90,00 kWh/m²a |
| fGEE: | C 1,35 |
Ausstattung
Zentralheizung
Ihre persönliche Beratung
Dieser Makler ist ein offizielles Mitglied des IR – ir.at Mehr Erfahren
