Einsiedlerpark: Herrliche Eckwohnung + Grünblick + Nachmittagssonne + 650m zur U4 + Altwien-Elemente

Wohnung , 1050 Wien,Margareten


10 Min. zur U-Bahn U4-Station Margaretengürtel (Gehzeit) 1 Min. zum Einsiedlerpark + Familien- und Saunabad (Gehzeit) 9 Min. in den 1. Bezirk (Fahrrad) 9 Min. zum Hauptbahnhof (Fahrrad) 25 Min. zum Flughafen (Auto/Taxi) Weiters befinden sich im direkten Umfeld, innerhalb 5 Gehminuten, Lebensmittelgeschäfte, Restaurants, Lokale und Einkaufsmöglichkeiten des täglichen Bedarfs.

Beschreibung der Immobilie

Einsiedlerpark: Herrliche Eckwohnung + Grünblick + Nachmittagssonne + 650m zur U4 + Altwien-Elemente

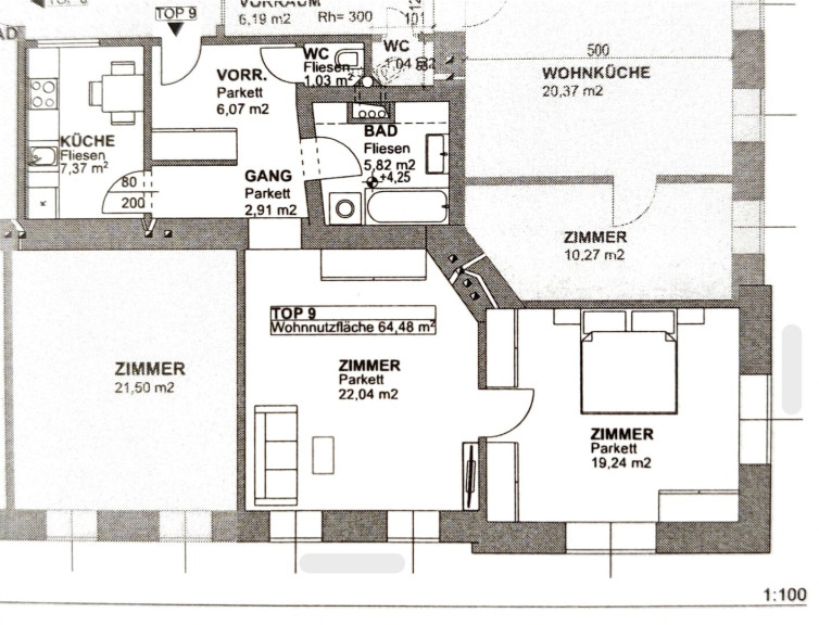
Gerne dürfen wir Ihnen diese herrliche 2-Zimmer Eckwohnung im 1. Liftstock eines Altbaus direkt beim Einsiedlerpark anbieten. Die beiden Zimmer bieten einen schönen Grünblick auf den angrenzenden Park. Die Wohnung ist überwiegend Richtung Westen ausgerichtet. Die Ausstattung mit Fischgrätparkett in den beiden Zimmern, die Alt-Wien-Zimmertüren und die hohen Räume und Fenster sorgen für eine angenehme Wohnatmosphäre. Die Küche befindet sich in einem separaten Raum und ist vom Vorraum erschlossen. Das Bad und die Küche entsprechen einem modernen Standard. Die Wohnung wurde zuletzt etwa 2018 saniert. Überzeugen Sie sich selbst von dieser Gelegenheit.





Grundriss/Ausstattung:



+ Großzügiges Wohnzimmer mit Fenster zum Park



+ Großes Schlafzimmer (Eckzimmer) mit Fenster nach Südwest und Nordwest



+ Küche voll ausgestattet, mit Oberlichte zum Stiegenhausgang und mit Platz für einen kleinen Esstisch



+ Badezimmer mit Dusche, Waschmaschinenanschluss, Waschtisch und Spiegel



+ Vorraum (erschließt Wohnzimmer, Bad, Toilette und Küche)



+ Toilette mit eigenem Handwaschbecken



+ Kellerabteile


Hinweis gemäß Energieausweisvorlagegesetz: Ein Energieausweis wurde vom Eigentümer bzw. Verkäufer, nach unserer Aufklärung über die generell geltende Vorlagepflicht, sowie Aufforderung zu seiner Erstellung noch nicht vorgelegt. Daher gilt zumindest eine dem Alter und der Art des Gebäudes entsprechende Gesamtenergieeffizienz als vereinbart. Wir übernehmen keinerlei Gewähr oder Haftung für die tatsächliche Energieeffizienz der angebotenen Immobilie.


Wir weisen darauf hin, dass zwischen dem Vermittler und dem zu vermittelnden Dritten ein familiäres oder wirtschaftliches Naheverhältnis besteht.


Der Vermittler ist als Doppelmakler tätig.

Eckdaten Objektnr. 2122/72

Art: Wohnung
Land: Österreich
Baujahr: 1890
Zustand: Gepflegt
Alter: Altbau
Kaufpreis: 298.000,00
Provision: 3% des Kaufpreises zzgl. 20% USt.
Betriebskosten: 159,36 €
MwSt Gesamt: 15,94 €
Wohnfläche: 64,00 m²
Zimmer: 2
Bäder: 1
WC: 1
Keller: 2,00 m²
Immobilie merken Exposé

Ausstattung

Parkett, Parkettboden, Gas, Etagenheizung, Einbauküche, Personenaufzug, Dusche, Kabel/Satelliten-TV


Immobilie anfragen


Ihre persönliche Beratung

Riedler Immo GmbH

Korbinian Riedler

Riedler Immo GmbH

T +43 676 68 50 115