Großzügige Wohnung mit Garten & Garage in Mauer!

Wohnung , 1230 Wien,Liesing , Endresstraße


Die Wohnung in der Endresstraße, 1230 Wien ist nur wenige Schritte vom Maurer Hauptplatz entfernt Profitieren Sie von bester Infrastruktur: Arzt, Apotheke, Schule, Kindergarten, Supermarkt, Bäckerei, Bank, Post sowie Bus- und Straßenbahnverbindungen sind bequem zu Fuß erreichbar. Ideal für komfortables Stadtleben.

Beschreibung der Immobilie

Großzügige Wohnung mit Garten & Garage in Mauer!

Sehr geehrte Damen und Herren,



Willkommen in Ihrem neuen Zuhause in begehrter Lage in Wien-Mauer!



Diese großzügige, hochwertig sanierte Erdgeschosswohnung vereint auf ca. 126 m² Wohnfläche den Komfort einer Wohnung mit dem Wohngefühl eines Hauses. Die durchdachte Raumaufteilung, moderne Ausstattung sowie attraktive Freiflächen schaffen ein ideales Zuhause für anspruchsvolle Eigennutzer.



Genießen Sie entspannte Stunden nach einem langen Tag in der komfortablen Badewanne oder starten Sie Ihren Morgen mit einem Kaffee auf dem Balkon bzw. der Terrasse – begleitet von einem schönen Ausblick und angenehmer Ruhe mitten in der Stadt.




Highlights auf einen Blick



  • Helle Fliesenflächen – zeitlos elegant und pflegeleicht
  • Eigene Freifläche / Garten – zusätzlicher Wohnraum im Grünen mit hoher Aufenthaltsqualität
  • Fußbodenheizung (in den verfliesten Bereichen)
  • Hochwertige Küchenarbeitsplatte aus Granit
  • Praktischer Abstellraum für zusätzlichen Stauraum
  • Doppeltes Kellerabteil
  • Garagenplatz im Haus – komfortables und sicheres Parken
    • Zweiter Stellplatz optional um € 20.000 erwerbbar







Umfangreiche Sanierung des Untergeschosses (2020/2021):
Neue Gastherme und Boiler, teilweise Fußbodenheizung, moderne Sanitäranlagen, maßgefertigte Badmöbel (Tischlerarbeit), neuer Parkettboden sowie neue Fliesen.




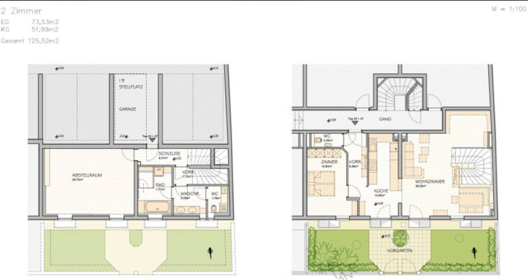
Raumaufteilung



Erdgeschoss (EG):



  • Vorraum
  • WC
  • Großzügiger Wohn-/Essbereich
  • Schlafzimmer
  • Küche
  • Garten / Freifläche


Untergeschoss (UG):



  • Badezimmer mit Badewanne und Dusche
  • Separates WC
  • Abstellraum
  • Raum mit vielseitiger Nutzung (z. B. Fitnessraum oder Hobbybereich)
  • Direkter Zugang zur Garage 



Weitere Hinweise



  • Die aktuell dargestellte Möblierung dient ausschließlich der Veranschaulichung möglicher Einrichtungskonzepte.
  • Die Wände im Wohnbereich sind derzeit – wie im Schlafzimmer – in Grün gehalten.
  • Die Wohnung ist derzeit noch bewohnt und voraussichtlich ab Ende Sommer bezugsbereit.



Wir freuen uns, Ihnen diese besondere Immobilie persönlich präsentieren zu dürfen.



Gerne vereinbaren wir mit Ihnen einen individuellen Besichtigungstermin!




Wir weisen darauf hin, dass zwischen dem Vermittler und dem zu vermittelnden Dritten ein familiäres oder wirtschaftliches Naheverhältnis besteht.


Der Vermittler ist als Doppelmakler tätig.

Infrastruktur / Entfernungen

Gesundheit
Arzt <500m
Apotheke <500m
Klinik <2.000m
Krankenhaus <1.750m

Kinder & Schulen
Schule <500m
Kindergarten <500m
Universität <3.750m
Höhere Schule <6.000m

Nahversorgung
Supermarkt <500m
Bäckerei <500m
Einkaufszentrum <2.000m

Sonstige
Geldautomat <250m
Bank <250m
Post <250m
Polizei <2.250m

Verkehr
Bus <250m
U-Bahn <4.000m
Straßenbahn <500m
Bahnhof <2.000m
Autobahnanschluss <4.250m

Angaben Entfernung Luftlinie / Quelle: OpenStreetMap

Eckdaten Objektnr. 271545673

Art: Wohnung
Land: Österreich
Baujahr: 1994
Zustand: Teil_vollrenoviert
Alter: Neubau
Kaufpreis: 549.000,00
Provision: 3% des Kaufpreises zzgl. 20% USt.
Wohnfläche: 125,52 m²
Zimmer: 2
WC: 2
Garten: 50,30 m²
Heizwärmebedarf:  C  58,50 kWh/m²a
fGEE:  C  1,19
Immobilie merken Exposé

Ausstattung

Parkett, Fliesen, Gas, Fußbodenheizung, Zentralheizung, Einbauküche, Nordbalkon, Badewanne, Tiefgarage


Immobilie anfragen


Ihre persönliche Beratung

Immobiliaris GmbH

DI Ana Putric

Immobiliaris GmbH

T +43 676 4695367