Erstbezug 2026: Penthouse im Luxusprojekt mit Pool und Outdoorküche

Wohnung - Penthouse, 1130 Wien


Die Lage in Hacking, einem der begehrtesten Teile des 13. Bezirks, bietet eine außergewöhnliche Kombination aus Ruhe, Natur und urbanem Komfort. Die Erzbischofgasse befindet sich in einer charmanten, grünen Wohngegend am Rand des Wienerwalds. Die Umgebung ist geprägt von stilvollen Einfamilienhäusern, Botschaften, viel Grün und hervorragender Infrastruktur. Infrastruktur und Umgebung: - Straßenbahnlinien 10 und 60 wenige Gehminuten entfernt; Anschluss zur U4 Hietzing - Bahnhof Hütteldorf mit U4, S-Bahnen und Fernzügen in kurzer Distanz - Zahlreiche Restaurants, Cafés und Nahversorger in Ober St. Veit, Hietzing und Speising - Supermärkte wie Billa, Spar und Apotheke in unmittelbarer Nähe - Schulen, Kindergärten und international renommierte Bildungseinrichtungen in kurzer Entfernung - Nahegelegene Freizeitmöglichkeiten: Lainzer Tiergarten, Roter Berg, Schönbrunn, Tennisplätze, Reitställe, Rad- und Wanderwege - Hundewaschplatz im Außenbereich der Anlage

Beschreibung der Immobilie

Erstbezug 2026: Penthouse im Luxusprojekt mit Pool und Outdoorküche

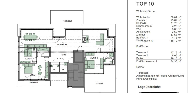
Dieses exklusive Penthouse (TOP 10) überzeugt mit einer beeindruckenden Wohnnutzfläche von 158,19 m² sowie außergewöhnlich großzügigen Freiflächen von insgesamt 84,36 m². Die Wohnung befindet sich in attraktiver Ruhelage und bietet ein modernes Wohnkonzept mit viel Licht, Offenheit und Privatsphäre.



Das absolute Highlight bildet die rund 88,81 m² große Wohnküche mit weitläufiger Fensterfront und direktem Zugang zur Hauptterrasse (47,16 m²) sowie zum Balkon (29,15 m²). Dieser offene Wohnbereich schafft ein repräsentatives Ambiente und verbindet Innen- und Außenraum auf besonders angenehme Weise.



Der private Schlafbereich ist klar vom Wohnbereich getrennt:



– Master Bedroom (Zimmer I, 23,62 m²) mit eigenem großzügigen Badezimmer (Bad/WC I, 11,73 m²), separatem Schrankraum (4,20 m²) sowie direktem Zugang zu einer weiteren Terrasse (8,05 m²). Ein komfortabler Rückzugsort mit hoher Wohnqualität.

– Zimmer II (17,63 m²) verfügt ebenfalls über ein eigenes Badezimmer (Bad/WC II, 4,73 m²) und eignet sich ideal als Gästezimmer, Kinderzimmer oder Home-Office.



Zusätzlich stehen ein separates WC (3,85 m²) sowie ein praktischer Abstellraum (3,62 m²) zur Verfügung, was den Wohnkomfort im Alltag deutlich erhöht.



Die großzügigen Außenflächen – bestehend aus zwei Terrassen und einem großen Balkon – bieten vielfältige Nutzungsmöglichkeiten, von entspanntem Outdoor-Dining bis hin zu urbanem Gartenambiente, und unterstreichen den exklusiven Penthouse-Charakter dieser Wohnung.



Die Ausstattung entspricht höchsten Standards:




  • Fußbodenheizung und Kühlung über Wärmepumpe



  • Dreifachverglaste Kunststoff-Alu-Fenster mit elektrischem Raffstore



  • Lichtdurchflutete Wohnräume



  • Hochwertige Parkettböden in Wohnräumen



  • Feinsteinzeugfliesen in Bad und WC



  • Videogegensprechanlage



  • Alle Wohnungen verfügen über einen eigenen Einlagerungsraum



  • Tiefgarage im Haus, Stellplätze vorbereitbar für E-Ladestationen



  • Lift von der Garage bis ins DG



  • Neubaustandard auf hohem technischen Niveau




Das Projekt befindet sich aktuell in Bau und wird voraussichtlich im August 2026 schlüsselfertig übergeben.



Diese Wohnung eignet sich ideal für Familien, Paare mit großzügigem Platzbedarf, Home-Office-Nutzer sowie alle, die modernes Wohnen mit mehreren Freiflächen in einer der besten Lagen des 13. Bezirks schätzen.



Kaufpreis: EUR 2.500.000,--



Stellplatz Kaufpreis: EUR 45.000,--



Nebenkosten:



  • Grunderwerbssteuer: 3,50 % vom Kaufpreis
  • Eintragungsgebühr: 1,10 % vom Kaufpreis
  • Vertragserrichtungskosten und Treuhänderhonorar: % des Kaufpreises zzgl. 20% USt und Barauslagen
  • Vermittlungsprovision: 3 % des Kaufpreises zzgl. 20% USt


Wir würden uns über ein persönliches Gespräch mit Ihnen sehr freuen!



Weitere verfügbare Wohneinheiten mit zahlreichen aktuellen TOP Projekten!Mehr Details findet Sie auf unsere Homepage!



www.vigoimmobilien.at | +43 664 99 877 599




Hinweis gemäß Energieausweisvorlagegesetz: Ein Energieausweis wurde vom Eigentümer bzw. Verkäufer, nach unserer Aufklärung über die generell geltende Vorlagepflicht, sowie Aufforderung zu seiner Erstellung noch nicht vorgelegt. Daher gilt zumindest eine dem Alter und der Art des Gebäudes entsprechende Gesamtenergieeffizienz als vereinbart. Wir übernehmen keinerlei Gewähr oder Haftung für die tatsächliche Energieeffizienz der angebotenen Immobilie.

Infrastruktur / Entfernungen

Gesundheit
Arzt <1.000m
Apotheke <1.000m
Klinik <2.500m
Krankenhaus <500m

Kinder & Schulen
Schule <500m
Kindergarten <1.000m
Universität <1.500m
Höhere Schule <5.000m

Nahversorgung
Supermarkt <500m
Bäckerei <500m
Einkaufszentrum <3.500m

Sonstige
Geldautomat <500m
Bank <1.000m
Post <1.500m
Polizei <1.000m

Verkehr
Bus <500m
Straßenbahn <1.000m
U-Bahn <500m
Bahnhof <500m
Autobahnanschluss <3.000m

Angaben Entfernung Luftlinie / Quelle: OpenStreetMap

Eckdaten Objektnr. 7618/965

Art: Wohnung - Penthouse
Land: Österreich
Baujahr: 2025
Zustand: Erstbezug
Alter: Neubau
Kaufpreis: 2.500.000,00
Provision: 3% des Kaufpreises zzgl. 20% USt.
Wohnfläche: 158,19 m²
Nutzfläche: 179,28 m²
Zimmer: 3,50
Bäder: 2
WC: 1
Terrassen: 2
Stellplätze: 1
Immobilie merken Exposé

Ausstattung

Parkettboden, Fliesen, Fußbodenheizung, Zentralheizung, Personenaufzug, Badewanne, Dusche, Garage, Swimmingpool


Immobilie anfragen


Ihre persönliche Beratung

VigoImmobilien GmbH

Anastasiia Tomilovych

Vigo Immobilien GmbH

T +43 664 220 41 85