Ein Haus fürs Leben – heute sichern, ab 2027 selbst einziehen in Wien-Mauer | ZELLMANN IMMOBILIEN

Haus , 1230 Wien


Beschreibung der Immobilie

Ein Haus fürs Leben – heute sichern, ab 2027 selbst einziehen in Wien-Mauer | ZELLMANN IMMOBILIEN

Ihr eigenes Zuhause mit Entwicklungspotential in Wien-Mauer



Manche Häuser kauft man nicht nur für den Moment – sondern für das Leben, das darin entstehen kann.



Dieses charmante Einfamilienhaus in Wien-Mauer bietet genau diese seltene Möglichkeit: Sie sichern sich heute eine wertbeständige Immobilie in einer der begehrtesten Wohnlagen Wiens – und können sie ab 2027 selbst beziehen und ganz nach Ihren Vorstellungen nutzen. Bis dahin profitieren Sie von einem bestehenden Mietverhältnis – danach beginnt Ihr eigenes Kapitel.




QUICKREAD: Alles auf einen Blick


  • Einfamilienhaus in ruhiger Grünlage von Wien-Mauer
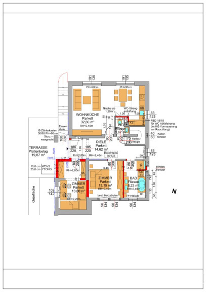
  • Grundstück ca. 406 m² 
  • Wohnfläche ca. 83,53 m²
  • Gesamtnutzfläche ca. 124,48 m² 
  • 3,5 Zimmer
  • fiktives Baujahr: 2017/2018 (völlige Generalsanierung)
  • Garten, Terrasse, Garage + Stellplatz
  • Derzeit vermietet – ab 2027 bestandsfrei



Ein Zuhause mit Zukunft


Dieses Haus eignet sich ideal für alle, die heute schon an morgen denken:



  • Vielleicht möchten Sie sich frühzeitig Ihr Eigenheim sichern.
  • Vielleicht planen Sie mittelfristig den Umzug aus der Wohnung ins Haus.
  • Oder Sie suchen eine Immobilie, die mit Ihrer Lebenssituation mitwachsen kann.


Hier haben Sie die Zeit – und die Sicherheit.



Denn: Ab 2027 steht Ihnen das Haus vollständig zur Verfügung. Ohne Unsicherheiten, ohne offene Mietthemen.




Wohnen mit Charme und Substanz


Bereits beim Betreten spürt man die angenehme Wohnatmosphäre. Die Räume sind hell, gut geschnitten und bieten eine solide Basis für modernes Wohnen. Durch die umfassende Generalsanierung in den Jahren 2017/2018 präsentiert sich das Haus in einem sehr gepflegten Zustand – ideal, um später ohne großen Aufwand einzuziehen oder individuell weiterzugestalten.



Der Wohnbereich bildet das Herzstück des Hauses und verbindet Alltag und Lebensqualität auf angenehme Weise.




Gartenleben inklusive


Der Garten ist ein echtes Highlight: gewachsen, ruhig und mit viel Privatsphäre.



Ob Frühstück auf der Terrasse, entspannte Abende im Grünen oder Platz für Kinder – hier entsteht genau das Lebensgefühl, das viele in Wien suchen, aber nur selten finden.




Mehr Möglichkeiten als man auf den ersten Blick sieht


Neben dem bestehenden Wohnhaus bietet die Liegenschaft auch interessantes Entwicklungspotential.



Eine Aufstockung bzw. Erweiterung des Gebäudes ist grundsätzlich möglich, wodurch zusätzlicher Wohnraum geschaffen werden kann – ideal für:



  • wachsende Familien
  • Homeoffice-Lösungen
  • oder eine langfristige Wertsteigerung der Immobilie


Damit erwerben Sie nicht nur ein Haus, sondern auch eine Perspektive für die Zukunft.




Wien-Mauer – Lebensqualität auf höchstem Niveau


Wien-Mauer zählt zu den beliebtesten Wohngegenden im Süden Wiens – und das aus gutem Grund. Hier wohnen Sie ruhig, grün und dennoch bestens angebunden. Die Umgebung ist geprägt von Einfamilienhäusern, viel Natur und einer gewachsenen Nachbarschaft. Der Lainzer Tiergarten und das Naherholungsgebiet rund um den Pappelteich liegen praktisch vor der Tür und bieten unzählige Freizeitmöglichkeiten. Gleichzeitig finden Sie alles für den Alltag in unmittelbarer Nähe: Nahversorger, Schulen, Kindergärten sowie das Einkaufszentrum Riverside. Ein besonderes Highlight ist die traditionelle Heurigenkultur – allen voran der Edlmoser, der für viele Bewohner ein fixer Bestandteil des Lebensgefühls ist.



Die Anbindung ist ebenfalls hervorragend: Straßenbahn und Bus bringen Sie schnell zur Schnellbahn oder zur U4 – und damit bequem in die Innenstadt.




Zusammenfassung


Dieses Haus ist mehr als nur eine Immobilie – es ist eine klare Entscheidung für die Zukunft.



-> Heute sichern Sie sich eine seltene Lage in Wien-Mauer.

-> Ab 2027 gestalten Sie hier Ihr eigenes Zuhause.

-> Und langfristig profitieren Sie von Entwicklungspotential und Wertstabilität.



Eine Gelegenheit, die so nur selten auf den Markt kommt.

Noch nichts gefunden? Wir informieren Sie über geeignete Immobilienangebote noch vor allen anderen.
Legen Sie jetzt Ihren individuellen Suchagenten unter folgendem Link an. Wir schicken Ihnen passende Immobilien exklusiv vorab zu. 



-> Suchagent anlegen


Hinweis gemäß Energieausweisvorlagegesetz: Ein Energieausweis wurde vom Eigentümer bzw. Verkäufer, nach unserer Aufklärung über die generell geltende Vorlagepflicht, sowie Aufforderung zu seiner Erstellung noch nicht vorgelegt. Daher gilt zumindest eine dem Alter und der Art des Gebäudes entsprechende Gesamtenergieeffizienz als vereinbart. Wir übernehmen keinerlei Gewähr oder Haftung für die tatsächliche Energieeffizienz der angebotenen Immobilie.


Wir weisen darauf hin, dass zwischen dem Vermittler und dem zu vermittelnden Dritten ein familiäres oder wirtschaftliches Naheverhältnis besteht.


Der Vermittler ist als Doppelmakler tätig.

Unser Service – Vertrauen. Service. Qualität.

Bei ZELLMANN IMMOBILIEN legen wir größten Wert auf persönliche Beratung, Transparenz und Service auf höchstem Niveau. Jede Besichtigung ist unverbindlich und findet in entspannter Atmosphäre statt. Nach Vertragsabschluss übernehmen wir selbstverständlich sämtliche Formalitäten – von der Übergabedokumentation bis zur Abstimmung mit Hausverwaltung und Energieversorgern. Ihr Anliegen ist bei uns in den besten Händen – auch nach Vertragsabschluss.

Rechtliche Hinweise

Bitte überprüfen Sie nach Übermittlung Ihrer Anfrage auch Ihren SPAM- bzw. WERBE-Ordner, da automatisierte E-Mail-Zustellungen technisch bedingt fallweise dort eingeordnet werden können. Wir bearbeiten Anfragen üblicherweise innerhalb weniger Stunden, auch an Wochenenden. Die Bekanntgabe einer Telefonnummer erfolgt freiwillig; diese kann ausschließlich zur ergänzenden Verständigung (z. B. SMS-Benachrichtigung über die Exposé-Übermittlung) verwendet werden. Dieses Angebot ist unverbindlich und freibleibend. Alle Angaben erfolgen auf Basis von Informationen des Eigentümers und vorliegenden Unterlagen; eine Haftung für Richtigkeit, Vollständigkeit und Aktualität wird nicht übernommen. Änderungen, Irrtümer, Zwischenverkauf sowie Abweichungen bleiben vorbehalten. Flächenangaben sind ca.-Werte. Das Exposé stellt kein verbindliches Angebot dar. Im Erfolgsfall beträgt die Käuferprovision 3 % des Kaufpreises zzgl. 20 % USt gemäß §§ 6 ff MaklerG und Immobilienmaklerverordnung, BGBl. 262/1996 idgF. Bei Mietobjekten gilt das gesetzliche Bestellerprinzip (§ 17a MaklerG): Provision ist von jener Partei zu tragen, die den Makler zuerst beauftragt hat; für Wohnungssuchende fällt grundsätzlich keine Provision an.

Infrastruktur / Entfernungen

Gesundheit
Arzt <500m
Apotheke <500m
Klinik <1.500m
Krankenhaus <500m

Kinder & Schulen
Schule <1.000m
Kindergarten <500m
Universität <3.500m
Höhere Schule <4.500m

Nahversorgung
Supermarkt <500m
Bäckerei <500m
Einkaufszentrum <2.500m

Sonstige
Geldautomat <1.000m
Bank <1.500m
Post <1.500m
Polizei <2.500m

Verkehr
Bus <500m
U-Bahn <3.000m
Straßenbahn <500m
Bahnhof <1.500m
Autobahnanschluss <3.000m

Angaben Entfernung Luftlinie / Quelle: OpenStreetMap

Eckdaten Objektnr. 25720

Art: Haus
Land: Österreich
Baujahr: 1950
Alter: Neubau
Kaufpreis: 690.000,00
Provision: 3% des Kaufpreises zzgl. 20% USt.
Wohnfläche: 124,48 m²
Grundstücksfl.: 406,00 m²
Zimmer: 3,50
Bäder: 1
WC: 1
Terrassen: 1
Stellplätze: 1
Immobilie merken Exposé

Ausstattung

Dielenboden, Steinboden, Parkett, Gas, Fußbodenheizung, Wohnküche / offene Küche, Bad mit Fenster, Badewanne, Dusche, Kabel/Satelliten-TV, Carport, Garage, Alarmanlage


Immobilie anfragen


Ihre persönliche Beratung

ZELLMANN IMMOBILIEN GmbH | Vertrauen. Service. Qualität.

Christian Zellmann

ZELLMANN IMMOBILIEN

T +43 699 15 15 22 00

H +43 699 15 15 22 00