| Großzügige Büroflächen im Herzen von 1090 Wien | insgesamt rund 3.000 m² für Ihre Vision!

Büro / Praxis , 1090 Wien


Beschreibung der Immobilie

| Großzügige Büroflächen im Herzen von 1090 Wien | insgesamt rund 3.000 m² für Ihre Vision!

Objekt und Lage:



Willkommen in Ihrem neuen Büro im Herzen von Wien – einem Ort, der nicht nur durch seine großzügige Fläche von bis zu 3.000m² besticht, sondern auch durch seine hervorragende Lage und Verkehrsanbindung.



Dieses beeindruckende Objekt befindet sich im 9. Bezirk, einem der lebhaftesten und kulturell reichsten Stadtteile Wiens. Hier vereinen sich Tradition und moderne Lebensqualität und Sie profitieren von einer Vielzahl an Annehmlichkeiten direkt vor der Haustüre. Diese Immobilie bietet Ihnen die ideale Grundlage, um Ihre Visionen zu verwirklichen.



Die Verkehrsanbindung ist ausgezeichnet. Mit der U-Bahn, Straßenbahn und Buslinien in unmittelbarer Nähe sind Sie und Ihre Mitarbeiter und Kunden stets schnell und unkompliziert mobil. Auch der Franz-Josefs-Bahnhof ist nur wenige Minuten entfernt, was nicht nur für Pendler, sondern auch für Ihre Geschäftspartner von Vorteil sein kann.



Das Umfeld dieser Immobilie ist ebenso vielversprechend. In der näheren Umgebung finden Sie alles, was Sie für den täglichen Bedarf benötigen. Ärzte, Apotheken, Kliniken sowie Schulen und Kindergärten sind in fußläufiger Reichweite, was die Lage besonders attraktiv für Familien und Berufstätige macht. Zudem sind Universität und höhere Schulen in der Umgebung.



Lebensqualität wird hier groß geschrieben. Supermärkte, Bäckereien und diverse gastronomische Angebote laden zum Verweilen ein und sorgen dafür, dass sowohl Sie als auch Ihre Mitarbeiter sich in der Umgebung wohlfühlen.



Nutzen Sie die Chance, in einer so zentralen Lage tätig zu werden, wo sich Menschen, Ideen und Kulturen begegnen. Die großzügigen Büroflächen bieten Ihnen die Flexibilität, Ihre Räumlichkeiten individuell zu gestalten – ob offene Bürokonzepte, Gruppenbüros, Einzelbüros oder Besprechungsräume, hier ist alles möglich.





Verfügbare Büroflächen:



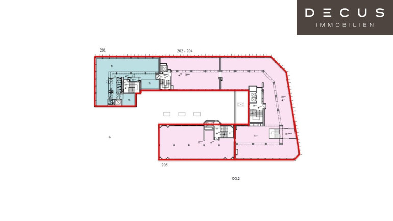
  • 2. OG, Top ca. ca. 1.271,90 m², derzeit baulich zusammenhängend, Trennung auf Anfrage
  • 3. OG, Top ca. ca. 1.063,76 m², derzeit baulich zusammenhängend, Trennung auf Anfrage
  • 4. OG, Top ca. ca. 520,55 m², derzeit baulich zusammenhängend, Trennung auf Anfrage
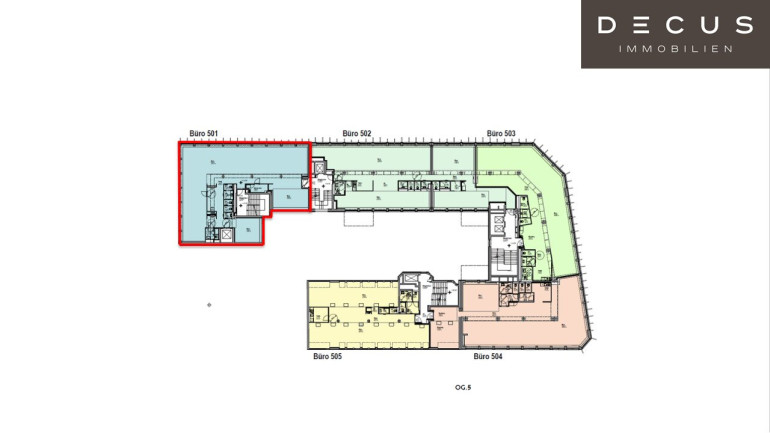
  • 5. OG, Top ca. ca. 277,51 m²




Ausstattung und Haustechnik:



  • Kühlung via FanCoils
  • außenliegender, elektrischer Sonnenschutz (süd- ost- und westseitig), BUS-gesteuert
  • BUS-gesteuerte Leuchten
  • Teppichböden
  • schallgedämmte Glaswände und Türen zum Gang hin
  • vorhandene Teeküchen
  • Kabelkanäle in der Fensterbank
  • CAT-Verkablung
  • Serverräume
  • Internet-Zuleitung mit Glasfaser, Satellit und Kupfer
  • Zutrittssystem
  • Fernwärme
  • Kälte durch zentrale Kältemaschine im Keller
  • Heizung und Kühlung über Gebläse-Konvektoren im Parapet
  • Brandmeldeanlage
  • Aufzug




Betriebskosten-Akonto: ca. € 3,41/m²/Monat/netto



Heiz- und Kühlkosten-Akonto: ca. € 2,37/m²/Monat/netto (variabel nach Verbrauch)





Energieausweis liegt vor:



Heizwärmebedarf: 39,7kWh/m².a





Stellplätze:



Tiefgarage im Haus (Stellplätze verfügbar)





Verkehrsanbindung:



U4-Station Friedensbrücke, S-Bahn-Anbindungen am Franz-Josefs-Bahnhof, Straßenbahnlinien 5, 33, 1, D





Alle Preisangaben verstehen sich zzgl. der gesetzl. Ust.



Alle Angaben ohne Gewähr, Irrtümer und Änderungen vorbehalten.




Wir weisen darauf hin, dass zwischen dem Vermittler und dem zu vermittelnden Dritten ein familiäres oder wirtschaftliches Naheverhältnis besteht.


Der Vermittler ist als Doppelmakler tätig.

DECUS Immobilien GmbH – Wir beleben Räume

Für weitere Informationen und Besichtigungen steht Ihnen gerne Frau Mag. (FH) Anita Kronaus-Buchegger unter der Mobilnummer +43 664 16 096 66und per E-Mail unter kronaus@decus.at persönlich zur Verfügung.

www.decus.at | office@decus.at 

Wichtige Informationen

Bitte beachten Sie, dass per 13.06.2014 eine neue Richtlinie für Fernabsatz- und Auswärtsgeschäfte in Kraft getreten ist.

Ab 1.4.2024 entfallen die Grundbuchs- und Pfandrechtseintragungsgebühren vorübergehend für Eigenheime bis zu einer Bemessungsgrundlage von EUR 500.000,-. Voraussetzung ist das dringende Wohnbedürfnis, ausgenommen davon sind vererbte oder geschenkte Immobilien. Die Befreiung ist jedoch für den Einzelfall zu prüfen, DECUS Immobilien übernimmt hierzu keine Haftung.

Ab 01.07.2023 gilt das Erstauftraggeber-Prinzip bei Wohnungsmietverträgen, ausgenommen davon sind Dienst-/Natural-/Werkswohnungen. Wir dürfen gem. § 17 Maklergesetz darauf hinweisen, dass wir auf die Doppelmaklertätigkeit gem. § 5 Maklergesetz bei Wohnungsmietverträgen verzichten und nur noch einseitig tätig sind (bei den restlichen Vermittlungsarten nicht) und ein wirtschaftliches Naheverhältnis zu unseren Auftraggebern besteht. 

Im Falle eines Abschlusses mit Ihnen oder einem von Ihnen namhaft gemachten Dritten bzw. bei beidseitiger Willensübereinstimmung beträgt unser Honorar (lt. Honorarverordnung für Immobilienmakler) 2 Bruttomonatsmieten (BMM) bei Dienst-/Natural-/Werkwohnungen sowie Suchaufträgen, 3 BMM bei Gewerbe-, PKW-, Keller- und Lagermietverträgen sowie bei Kaufobjekten 3 % des Kaufpreises, zuzüglich der gesetzlichen Umsatzsteuer.

Dieses Objekt wird Ihnen unverbindlich und freibleibend angeboten. Oben angeführte Angaben basieren auf Informationen und Unterlagen des Eigentümers und sind unsererseits ohne Gewähr.

Nähere Informationen sowie unsere AGBs und die Nebenkostenübersichtsblatt finden Sie auf unserer Homepage www.decus.at unter "Service" - "Rechtliches zum FAGG" sowie im Anhang der zugesendeten Objekt-Exposés!

Infrastruktur / Entfernungen

Gesundheit
Arzt <500m
Apotheke <500m
Klinik <500m
Krankenhaus <1.500m

Kinder & Schulen
Schule <500m
Kindergarten <500m
Universität <500m
Höhere Schule <1.000m

Nahversorgung
Supermarkt <500m
Bäckerei <500m
Einkaufszentrum <2.000m

Sonstige
Geldautomat <500m
Bank <500m
Post <500m
Polizei <500m

Verkehr
Bus <500m
U-Bahn <500m
Straßenbahn <500m
Bahnhof <500m
Autobahnanschluss <1.500m

Angaben Entfernung Luftlinie / Quelle: OpenStreetMap

Verfügbare Flächen

Stiege/Bauteil


Stockwerk
Top
Art
Fläche
Terrasse
Nettomiete/m²
BK/m²

4. Etage
-
Büro / Praxis
231,28 - 520,55 m2
-
18,00 €
3,41 €

3. Etage
-
Büro / Praxis
230,00 - 1.063,76 m2
-
18,00 €
3,41 €

2. Etage
-
Büro / Praxis
210,00 - 1.271,90 m2
-
18,00 €
3,41 €

5. Etage
-
Büro / Praxis
277,51 m2
-
18,00 €
3,41 €

verfügbare flächen

Stiege/Bauteil

Stockwerk
Top
Art
Fläche
Teilbar ab
Terrasse
Nettomiete/m2 von-bis
BK/m2
4. Etage
-
Büro / Praxis
520,55 m2
231,28 m2
-
18,00 - 18,00 €
3,41 €
Stockwerk
Top
Art
Fläche
Teilbar ab
Terrasse
Nettomiete/m2 von-bis
BK/m2
3. Etage
-
Büro / Praxis
1.063,76 m2
230,00 m2
-
18,00 - 18,00 €
3,41 €
Stockwerk
Top
Art
Fläche
Teilbar ab
Terrasse
Nettomiete/m2 von-bis
BK/m2
2. Etage
-
Büro / Praxis
1.271,90 m2
210,00 m2
-
18,00 - 18,00 €
3,41 €
Stockwerk
Top
Art
Fläche
Teilbar ab
Terrasse
Nettomiete/m2 von-bis
BK/m2
5. Etage
-
Büro / Praxis
277,51 m2
-
-
18,00 - 18,00 €
3,41 €

Eckdaten Objektnr. 1154777

Art: Büro / Praxis
Land: Österreich
Kaltmiete (netto): 56.406,96 €
Kaltmiete: 67.092,95 €
Miete / m²: 18,00 €
Provision: 3 Bruttomonatsmieten zzgl. 20% USt.
Betriebskosten: 10.685,99 €
Nutzfläche: 3.133,72 m²
Heizwärmebedarf:  B  39,70 kWh/m²a
fGEE:  C  1,19
Immobilie merken Exposé

Immobilie anfragen


Ihre persönliche Beratung

DECUS Immobilien GmbH

Mag. (FH) Anita Kronaus-Buchegger

DECUS Immobilien GmbH

T +43 664 16 096 66

H +43 664 16 096 66

F +43 1 35 600 10