Attraktives, neues Geschäftslokal - mit oder ohne Mieter!
Einzelhandel
- Ladenlokal,
2345
Brunn am Gebirge
Beschreibung der Immobilie
Attraktives, neues Geschäftslokal - mit oder ohne Mieter!
Zum Verkauf gelangt ein neuwertiges, gepflegtes Geschäftslokal in sehr guter Lage im Stadtviertel von Brunn am Gebirge.Die Immobilie überzeugt durch ihre moderne Ausstattung, eine zeitlose Architektur sowie eine hohe Sichtbarkeit und gute Erreichbarkeit für Kunden und Geschäftspartner.
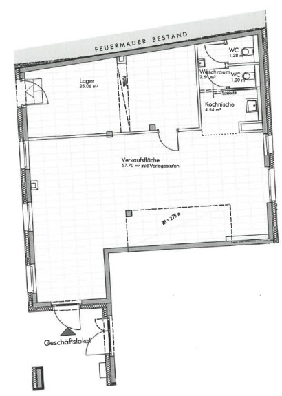
Die Geschäftsfläche - mit rd. 3,10 m Raumhöhe - umfasst zudem ein Lager mit rd. 25 m² mit separatem Zugang auf derselben Ebene und bietet dadurch vielseitige Nutzungsmöglichkeiten – ideal für Einzelhandel, Büro, Dienstleistungsbetriebe oder Praxisräume.
Hohe Auslagenflächen sorgen für optimale Präsentationsmöglichkeiten und eine freundliche Atmosphäre im Innenbereich.
Zusätzlich verfügt das Objekt über eine kompakte Küchenzeile sowie zwei getrennte Sanitäreinheiten.
Das Objekt befindet sich in einem neuwertigen Zustand und erfordert keine unmittelbaren Investitionen. Hochwertige Materialien sowie eine durchdachte Raumaufteilung unterstreichen die Qualität dieser Immobilie.
Highlights:
- Gute, frequentierte Lage und Infrastruktur
- Neuwertiger Zustand
- Lagerfläche mit separatem Eingang auf selber Ebene
- Flexible Nutzungsmöglichkeiten
- Gute Verkehrsanbindung und Erreichbarkeit
- Optional mit bestehendem Mieter (interessant für Anleger) oder bestandsfrei zur Eigennutzung
- Garagenplatz optional verfügbar
Bei Vermietung bietet das Objekt aktuell eine attraktive Rendite von 5,5%.
Alternativ eignet sich das Geschäftslokal hervorragend zur Eigennutzung für Unternehmer, die einen repräsentativen Standort suchen.
Fazit:
Eine seltene Gelegenheit, ein neues Geschäftslokal in guter Lage zu erwerben – sowohl als Investment als auch zur Eigennutzung bestens geeignet.
Eckdaten Objektnr. 141/85583
| Art: | Einzelhandel - Ladenlokal |
| Land: | Österreich |
| Baujahr: | 2017 |
| Möbliert: | Teil |
| Alter: | Neubau |
| Kaufpreis: | 290.000,00 € |
| Kaufpreis / m²: | 3.118,28 € |
| Provision: | 3% |
| Nutzfläche: | 93,00 m² |
| Verkaufsfläche: | 58,00 m² |
| Heizwärmebedarf: | B 36,00 kWh/m²a |
| fGEE: | A 0,72 |
Ausstattung
Fernwärme
Ihre persönliche Beratung
Dieser Makler ist ein offizielles Mitglied des IR – ir.at Mehr Erfahren
