Große 4-Zi Wohnung in Schwaz mit Westbalkon, Renovierungschance!

Wohnung - Etage, 6130 Schwaz


Diese charmante Etagenwohnung in 6130 Schwaz, Tirol, besticht durch ihre sonnige Ausrichtung nach Südostwesten. Die zentrale Lage bietet beste Infrastruktur: Arzt, Apotheke, Klinik und Krankenhaus sind schnell erreichbar. Schulen, Kindergarten, Supermarkt, Bäckerei und Einkaufszentrum liegen in unmittelbarer Nähe. Bank, Geldautomat, Post, Polizei, Bus, Bahnhof und Autobahnanschluss gewährleisten komfortables und stressfreies Wohnen.

Beschreibung der Immobilie

Große 4-Zi Wohnung in Schwaz mit Westbalkon, Renovierungschance!

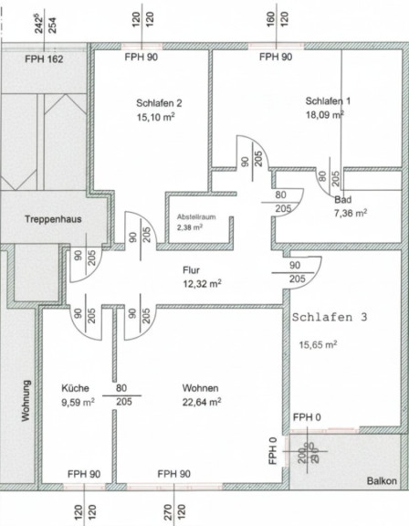
Willkommen in Ihrem neuen Zuhause im Herzen von Schwaz, Tirol! Diese großzügige 4-Zimmer-Etagenwohnung mit 97 m² Wohnfläche bietet Ihnen zahlreiche Möglichkeiten, Ihre Wohnträume zu verwirklichen. Zum Kaufpreis von 339.000,00 € erwartet Sie eine Immobilie, die renovierungsbedürftig ist – ideal für alle, die Ihre persönliche Handschrift einbringen und ein echtes Unikat schaffen möchten.



Genießen Sie von Ihrer Wohnung aus einen atemberaubenden Ausblick auf die umliegenden Berge, die lebendige Stadt und den weiten Fernblick – ein tägliches Erlebnis, das Sie entspannen und inspirieren wird. Der westseitige Balkon oder die Terrasse laden zum Verweilen ein und bieten den perfekten Platz für gemütliche Sonnenstunden oder den Abend mit Freunden und Familie.



Ein Badezimmer mit Fenster und Dusche gewährleistet Komfort und Tageslicht, was Ihren Alltag noch angenehmer macht. Der Personenaufzug erleichtert den Zugang zu Ihrer Wohnung und ein allgemeiner Parkplatz rundet das Angebot ab.



Die Lage könnte nicht besser sein: Dank der hervorragenden Verkehrsanbindung mit Bus, Bahnhof und Autobahnanschluss sind Sie optimal vernetzt und erreichen alle wichtigen Ziele schnell und bequem. In unmittelbarer Nähe befinden sich zahlreiche Einrichtungen des täglichen Bedarfs – von Arzt, Apotheke, Klinik und Krankenhaus über Schule und Kindergarten bis hin zu Supermarkt, Bäckerei und Einkaufszentrum. So genießen Sie maximale Lebensqualität und kurzen Wege für Ihren Alltag.



Diese Wohnung ist die perfekte Gelegenheit für alle, die ein individuelles Wohnprojekt in einer begehrten Lage in Tirol realisieren möchten. Nutzen Sie die Chance und gestalten Sie Ihr neues Zuhause ganz nach Ihren Vorstellungen – wir freuen uns auf Ihre Kontaktaufnahme!







Hinweis gemäß Energieausweisvorlagegesetz: Ein Energieausweis wurde vom Eigentümer bzw. Verkäufer, nach unserer Aufklärung über die ab 1.12.2012 geltende generelle Vorlagepflicht, sowie Aufforderung zu seiner Erstellung noch nicht vorgelegt. Daher gilt zumindest eine dem Alter und der Art des Gebäudes entsprechende Gesamtenergieeffizienz als vereinbart. Wir übernehmen keinerlei Gewähr oder Haftung für die tatsächliche Energieeffizienz der angebotenen Immobilie.





Noch nichts gefunden? Wir informieren Sie über geeignete Immobilienangebote noch vor allen anderen.
Legen Sie jetzt Ihren individuellen Suchagenten unter folgendem Link an. Wir schicken Ihnen passende Immobilien exklusiv vorab zu.

Suchagent anlegen - https://reinhard-leutgeb.service.immo/registrieren/de


Der Vermittler ist als Doppelmakler tätig.

Infrastruktur / Entfernungen

Gesundheit
Arzt <500m
Apotheke <500m
Klinik <1.000m
Krankenhaus <500m

Kinder & Schulen
Schule <500m
Kindergarten <500m

Nahversorgung
Supermarkt <500m
Bäckerei <500m
Einkaufszentrum <500m

Sonstige
Bank <500m
Geldautomat <500m
Post <500m
Polizei <1.000m

Verkehr
Bus <500m
Bahnhof <500m
Autobahnanschluss <1.000m

Angaben Entfernung Luftlinie / Quelle: OpenStreetMap

Eckdaten Objektnr. 1585/661

Art: Wohnung - Etage
Land: Österreich
Zustand: Teil_vollrenovierungsbed
Kaufpreis: 339.000,00
Provision: 3% des Kaufpreises zzgl. 20% USt.
Betriebskosten: 422,00 €
Wohnfläche: 97,00 m²
Zimmer: 4
Bäder: 1
WC: 1
Immobilie merken Exposé

Ausstattung

Parkett, Parkettboden, Gas, Zentralheizung, Personenaufzug, Westbalkon, Bad mit Fenster, Dusche, Parkplatz


Immobilie anfragen


Ihre persönliche Beratung

Leutgeb Immobilien

Andreas Schirmer

Leutgeb Immobilien

T +43 664 46 98 598

H +43 664 46 98 598