HELLE BALKON-WOHNUNG NÄHE DONAUZENTRUM & VETMED

Wohnung - Etage, 1220 Wien


Kirschblütenpark, Alte Donau, Donauzentrum

Beschreibung der Immobilie

HELLE BALKON-WOHNUNG NÄHE DONAUZENTRUM & VETMED

Die Lage dieser Singlewohnung in der Dückegasse zählt zu den beliebtesten Wohngegenden im 22. Bezirk – und das aus gutem Grund:





Die Alte Donau ist nur wenige Minuten entfernt und bietet eine einzigartige Lebensqualität:



Spaziergänge am Wasser, sportliche Aktivitäten, Restaurants direkt am Ufer oder entspannte Sommertage – hier wohnen Sie dort, wo andere ihre Freizeit verbringen.





Gleichzeitig erreichen Sie das Donauzentrum in kürzester Zeit – eines der größten Einkaufszentren in Österreich mit zahlreichen Shops, Gastronomie, Kino und allen Dingen des täglichen Bedarfs.





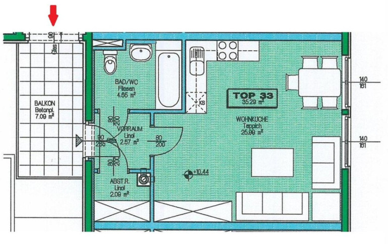
Die Wohnung verfügt über ca. 35 m² Wohnfläche und befindet sich im 3. Stock eines modernen Neubaus mit Lift.



Der großzügige Wohnraum bietet ausreichend Platz für Wohnen, Schlafen und Essen und überzeugt durch seine angenehme Helligkeit. Die offene Küche ist funktional integriert und bereits mit Geräten ausgestattet – ideal, wenn Sie gleich einziehen möchten.



Ein besonderes Highlight ist der hofseitige Balkon mit ca. 7 m², der absolute Ruhe bietet und zum Entspannen einlädt – ob morgens beim Kaffee oder abends nach einem langen Tag.



Das Badezimmer ist mit einer Badewanne und WC ausgestattet. Ergänzt wird das Raumangebot durch einen praktischen Abstellraum sowie ein Kellerabteil.





Was diese Wohnung hat, was andere nicht haben




  • Ruhige Innenhoflage mit Balkon (ca. 7 m²) – entspannt wohnen abseits des Trubels



  • Nur wenige Minuten zur Alten Donau – Freizeitwert auf höchstem Niveau



  • Top-Lage beim Donauzentrum – alles fußläufig erreichbar



  • Neuwertige Küche inklusive aller Geräte



  • Praktischer Abstellraum in der Wohnung



  • Lift im Haus (3. Stock)






Ausstattung




  • Moderne Einbauküche inkl. Geräte



  • Fliesen in Bad und Nassbereichen



  • Fernwärme-Zentralheizung



  • Lift im Haus



  • Fahrradabstellraum






Öffentliche Verkehrsanbindung:




  • U1 Kagran – direkte Verbindung in die Innenstadt



  • Straßenbahnlinien 2, 25, 26



  • Buslinie 27A




Diese Lage verbindet Ruhe, Natur und perfekte Erreichbarkeit auf ideale Weise.





Eckdaten




  • Wohnfläche: ca. 35 m²



  • Balkon: ca. 7 m²



  • Kellerabteil: vorhanden



  • Garagenplatz: optional anmietbar



  • Heizung: Fernwärme






Kosten



  • Gesamtmiete pro Monat: EUR 739,00
  • Kaution: EUR 2.250 

  • Mietvertragserrichtung: EUR 380 zzgl. 20 % USt






Anfragen richten Sie bitte ausschließlich über das Inserat und unter vollständiger Angabe Ihrer Kontaktdaten. Für weiterführende Informationen steht Ihnen Raffael Rosenmaier, MSc. bei Bedarf gerne auch telefonisch unter +43 664 462 1792 zur Verfügung.



Alle Angaben basieren auf Informationen, die uns von Dritten übermittelt wurden. Für deren Richtigkeit und Vollständigkeit kann daher keine Haftung übernommen werden.











Sie kennen jemanden, der seine Immobilie verkaufen möchte? Kontaktieren Sie uns – und profitieren Sie von einer attraktiven Tippgeberprovision!


Wir weisen darauf hin, dass zwischen dem Vermittler und dem zu vermittelnden Dritten ein familiäres oder wirtschaftliches Naheverhältnis besteht.


Der Immobilienmakler erklärt, dass er – entgegen dem in der Immobilienwirtschaft üblichen Geschäftsgebrauch des Doppelmaklers – einseitig nur für den Vermieter tätig ist.

Infrastruktur / Entfernungen

Gesundheit
Arzt <500m
Apotheke <500m
Klinik <2.500m
Krankenhaus <2.500m

Kinder & Schulen
Schule <500m
Kindergarten <500m
Universität <1.000m
Höhere Schule <1.500m

Nahversorgung
Supermarkt <500m
Bäckerei <1.000m
Einkaufszentrum <1.000m

Sonstige
Geldautomat <1.000m
Bank <1.000m
Post <1.500m
Polizei <1.000m

Verkehr
Bus <500m
U-Bahn <1.000m
Straßenbahn <500m
Bahnhof <1.000m
Autobahnanschluss <2.500m

Angaben Entfernung Luftlinie / Quelle: OpenStreetMap

Eckdaten Objektnr. 1885/1733607

Art: Wohnung - Etage
Land: Österreich
Baujahr: 1999
Zustand: Modernisiert
Alter: Neubau
Gesamtmiete: 739,00
Kaltmiete (netto): 647,74 €
Kaltmiete: 739,00 €
Provision: Gemäß Erstauftraggeberprinzip bezahlt der Abgeber die Provision.
Betriebskosten: 81,90 €
Sonstige Kosten: 9,36 €
Wohnfläche: 35,29 m²
Nutzfläche: 38,84 m²
Zimmer: 1
Bäder: 1
WC: 1
Balkone: 1
Keller: 3,00 m²
Heizwärmebedarf:  C  65,60 kWh/m²a
fGEE:  C  1,25
Immobilie merken Exposé

Ausstattung

Fliesen, Laminatboden, Einbauküche, Personenaufzug


Immobilie anfragen


Ihre persönliche Beratung

Rosenmaier GmbH

Raffael Rosenmaier, MSc

TREUWERT GmbH

T +43 664 4621792

H +43 664 4621792