Frisch saniert! Gut geschnittene 4-5 Zimmer Wohnung mit Loggia nahe Wienerberg

Wohnung - Etage, 1100 Wien , Hardtmuthgasse


Beschreibung der Immobilie

Frisch saniert! Gut geschnittene 4-5 Zimmer Wohnung mit Loggia nahe Wienerberg

Herzlich willkommen in Ihrem neuen Zuhause!
Die geräumige, frisch sanierte Wohnung liegt in der Hardtmuthgasse, nur wenige Geh-Minuten vom Naherholungsgebiet Wienerberg entfernt und besticht durch die ausgezeichnete Infrastruktur. In unmittelbarer Nähe finden Sie alles, was Sie für den Alltag benötigen: Ärzte, Apotheke, Schulen, Kindergärten und zahlreiche Einkaufsmöglichkeiten. Die hervorragende Anbindung an öffentliche Verkehrsmittel - mit dem geplanten Ausbau der U2 in Zukunft sogar mit einer U-Bahn-Station in der unmittelbaren Nähe -, macht die Erreichbarkeit der Wiener Innenstadt und weiterer Stadtteile besonders bequem. Ein perfekter Ort für urbanes Wohnen, der genug Platz bietet sowohl für Familien als auch die Kombination von Wohnen und Homeoffice.





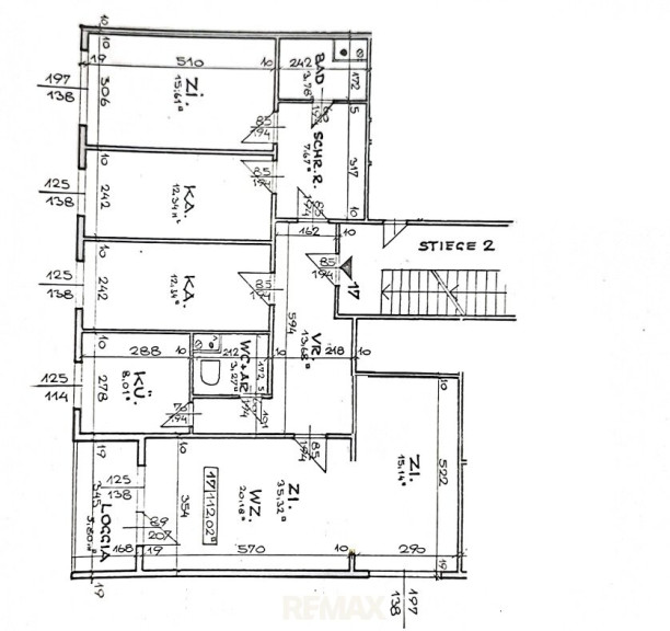
Das Raumangebot: 



Die Wohnung verfügt derzeit über 4 freundliche Zimmer, die Schaffung eines 5. Zimmers wäre jederzeit durch die erneute Teilung des Wohnzimmers möglich. Die Wohnung ist zentral begehbar und besticht mit ihrer durchdachten Raumaufteilung: 



- großzügiges Vorzimmer: ca. 13,68 m²



- Schrankraum mit viel praktischem Stauraum: ca. 7,67 m²



- Wohnzimmer mit Ausgang auf Loggia: ca. 35,32 m² (ursprünglich 2 Zimmer, derzeit zusammengelegt)



- Loggia, ausgerichtet auf eine ruhige Seitengasse: ca. 5,8 m²



- Küche: ca. 8,01 m²



- Bad mit Badewanne und Waschmaschinenanschluss: ca. 3,78 m²



- WC mit Waschbecken: ca. 3,27 m²



- Schlafzimmer: ca. 15,61 m²



- 2 weitere Zimmer mit je ca. 12,34 m², perfekt geeignet als Kinderzimmer, Büro oder Gästezimmer



Ein Kellerabteil sowie ein Fahrradabstellraum runden das Raumangebot ab.






Der Vermittler ist als Doppelmakler tätig.

Infrastruktur / Entfernungen

Gesundheit
Arzt <250m
Apotheke <250m
Klinik <500m
Krankenhaus <500m

Kinder & Schulen
Schule <250m
Kindergarten <250m
Universität <1.750m
Höhere Schule <1.500m

Nahversorgung
Supermarkt <250m
Bäckerei <500m
Einkaufszentrum <2.000m

Sonstige
Geldautomat <750m
Bank <750m
Post <750m
Polizei <750m

Verkehr
Bus <250m
U-Bahn <1.000m
Straßenbahn <250m
Bahnhof <1.000m
Autobahnanschluss <2.500m

Angaben Entfernung Luftlinie / Quelle: OpenStreetMap

Eckdaten Objektnr. 1619/8154

Art: Wohnung - Etage
Land: Österreich
Baujahr: 1975
Zustand: Modernisiert
Alter: Neubau
Kaufpreis: 399.000,00
Provision: 3% des Kaufpreises zzgl. 20% USt.
Betriebskosten: 253,10 €
Heizkosten: 168,48 €
MwSt Gesamt: 53,28 €
Wohnfläche: 111,69 m²
Nutzfläche: 117,59 m²
Zimmer: 4
Bäder: 1
WC: 1
Keller: 1,06 m²
Heizwärmebedarf:  C  65,00 kWh/m²a
fGEE:  D  2,47
Immobilie merken Exposé

Ausstattung

Fernwärme, Einbauküche, Personenaufzug


Immobilie anfragen


Ihre persönliche Beratung

LIVING FIRST Lang Immobilien e.U.

Mag. Sabine Lang

RE/MAX Real Experts Immobilien lifetime GmbH

H +43 680 242 88 96