NEUBAUPROJEKT "THE NINE" - Edles 2-Zimmer Penthouse mit atemberaubender Sonnenterrasse und traumhaften Ausblick

Wohnung - Penthouse, 5020 Salzburg , Membergerstraße


Top-Lage Josefiau – urban & naturnah zugleich Das moderne Wohnbauprojekt THE NINE befindet sich in der begehrten Salzburger Josefiau – einer der beliebtesten Wohnlagen im Süden der Stadt. Die ruhige, gewachsene Umgebung bietet hohe Lebensqualität und ein attraktives Wohnumfeld. Nur wenige Minuten entfernt lädt die Salzach mit ihren Spazier- und Radwegen zur Erholung ein. Gleichzeitig profitieren Sie von einer hervorragenden Infrastruktur: Einkaufsmöglichkeiten, Cafés, Gastronomie sowie Einrichtungen des täglichen Bedarfs befinden sich in unmittelbarer Nähe, insbesondere entlang der Alpenstraße. Die Salzburger Altstadt ist in kurzer Zeit erreichbar, ebenso bestehen optimale Verkehrsanbindungen in alle Richtungen. Eine perfekte Kombination aus Ruhe, Natur und urbanem Komfort.

Beschreibung der Immobilie

NEUBAUPROJEKT "THE NINE" - Edles 2-Zimmer Penthouse mit atemberaubender Sonnenterrasse und traumhaften Ausblick

Exklusives Wohnkonzept & hochwertige Ausstattung – THE NINE



THE NINE steht für stilvolles Wohnen auf höchstem Niveau. Mit nur neun Einheiten bietet dieses exklusive Wohnhaus ein ruhiges, privates Wohnumfeld und vereint moderne Architektur, Qualität und höchste Lebensqualität. Das dreigeschossige Gebäude umfasst hochwertig geplante 3- und 4-Zimmer-Wohnungen mit durchdachten Grundrissen und großzügigen Freiflächen. Im Erdgeschoss entstehen exklusive Gartenwohnungen mit privaten Gärten und Terrassen, während im Obergeschoss weitere Einheiten mit Wohnflächen von ca. 69 m² bis ca. 101 m² und großzügigen Außenbereichen überzeugen. Das architektonische Highlight bilden die beiden Penthouses mit spektakulären Terrassen (ca. 66 m² und ca. 118 m²) und beeindruckenden Ausblicken. Auf Wunsch können diese zu einer einzigartigen Residenz mit rund 190 m² Wohnfläche zusammengelegt werden.



Die Ausstattung erfüllt höchste Ansprüche: Edler Fischgrätparkett, exklusive Armaturen von Dornbracht sowie ausgewählte Materialien schaffen ein elegantes Wohnambiente. Bodentiefe Fensterflächen sorgen für lichtdurchflutete Räume und fließende Übergänge zwischen Innen- und Außenbereich. Modernste Haustechnik wie Fußbodenheizung, Fernwärme, Wohnraumlüftung und Photovoltaik garantiert nachhaltigen und komfortablen Wohnstandard. Das Gebäude ist barrierefrei und verfügt über einen Lift mit direktem Zugang von der Tiefgarage zu allen Wohnungen.



In der aktuellen Planungsphase können Grundrisse individuell angepasst werden. Für ausgewählte Einheiten besteht zudem die Möglichkeit einer Wohnbauförderung.



Highlights:



  • Exklusives Wohnhaus mit nur 9 Einheiten
  • 3- und 4-Zimmer-Wohnungen sowie 2 Penthouses
  • Großzügige Terrassen & private Gärten
  • Hochwertige Ausstattung (Fischgrätparkett, Dornbracht Armaturen)
  • Bodentiefe Fenster für lichtdurchflutete Räume
  • Nachhaltige Haustechnik (Fernwärme, Photovoltaik, Wohnraumlüftung)
  • Barrierefrei mit Lift von der Tiefgarage bis zur Wohnung
  • Individuelle Grundrissgestaltung möglich
  • Wohnbauförderung für ausgewählte Einheiten möglich






Edles 2-Zimmer-Penthouse mit spektakulärer Sonnenterrasse



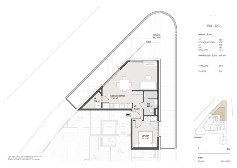
Dieses exklusive 2-Zimmer-Penthouse vereint kompakten Wohnkomfort mit außergewöhnlichem Freiraum und besonderem Flair. Auf ca. 51 m² Wohnnutzfläche entsteht ein stilvolles Zuhause über den Dächern der Stadt. Das absolute Highlight bildet die großzügige Dachterrasse mit ca. 66 m², die mit einem beeindruckenden Ausblick auf den Gaisberg begeistert und einen einzigartigen Rückzugsort im Freien schafft. Im Inneren sorgt der offen gestaltete Koch-, Wohn- und Essbereich mit rund 28 m² für ein modernes, lichtdurchflutetes Wohngefühl. Ergänzt wird das Raumangebot durch ein Schlafzimmer, ein Badezimmer sowie einen Vorraum mit Garderobe und einen praktischen Abstellraum.



Ein exklusives Penthouse für alle, die stilvolles Wohnen mit außergewöhnlicher Terrasse verbinden möchten.






















Wir weisen darauf hin, dass zwischen dem Vermittler und dem zu vermittelnden Dritten ein familiäres oder wirtschaftliches Naheverhältnis besteht.


Der Vermittler ist als Doppelmakler tätig.

Infrastruktur / Entfernungen

Gesundheit
Arzt <250m
Apotheke <500m
Klinik <1.000m
Krankenhaus <750m

Kinder & Schulen
Schule <500m
Kindergarten <500m
Universität <500m
Höhere Schule <3.000m

Nahversorgung
Supermarkt <500m
Bäckerei <250m
Einkaufszentrum <500m

Sonstige
Bank <250m
Geldautomat <250m
Post <1.000m
Polizei <750m

Verkehr
Bus <250m
Bahnhof <1.000m
Autobahnanschluss <5.250m
Flughafen <5.000m

Angaben Entfernung Luftlinie / Quelle: OpenStreetMap

Eckdaten Objektnr. 1829/86

Art: Wohnung - Penthouse
Land: Österreich
Baujahr: 2027
Zustand: Erstbezug
Alter: Neubau
Kaufpreis: 599.000,00
Wohnfläche: 51,03 m²
Zimmer: 2
Bäder: 1
WC: 1
Terrassen: 1
Stellplätze: 1
Keller: 3,99 m²
Immobilie merken Exposé

Ausstattung

Parkett, Fliesen, Fußbodenheizung, Personenaufzug, Dusche, Tiefgarage


Immobilie anfragen


Ihre persönliche Beratung

EM Invest & Trading GmbH

Geschäftsführerin Evelyn Moser

EM Invest & Trading GmbH

T +43 664 502 48 58