2-Zimmer-Erstbezug mit Balkon & U4-Anbindung

Wohnung - Erdgeschoß, 1130 Wien , Auhofstraße


Wohnen im grünen Hietzing – mit direkter Anbindung in die Stadt. Der Bahnhof Hütteldorf (U4, S-Bahn, Bus) ist in wenigen Minuten erreichbar und sorgt für eine schnelle Verbindung in die Wiener Innenstadt sowie ins Umland. Die Nahversorgung ist hervorragend: Supermärkte, Bäckereien, Apotheken, Ärzte sowie das St.-Josef-Krankenhaus befinden sich in unmittelbarer Umgebung. Schulen und Kindergärten sind ebenfalls gut erreichbar. Für Erholung sorgt die Nähe zum Lainzer Tiergarten und zum Wienfluss-Radweg – ideale Voraussetzungen für Freizeit, Sport und Ausgleich im Alltag.

Beschreibung der Immobilie

2-Zimmer-Erstbezug mit Balkon & U4-Anbindung

Die Wohnungen überzeugen durch durchdachte Grundrisse, helle Räume und großzügige Freiflächen – ob Balkon, Loggia, Terrasse oder Eigengarten.

Ein besonderes Highlight ist die moderne Deckenheizung und -kühlung, die ganzjährig für ein angenehmes Raumklima sorgt – effizient und komfortabel.



Ausstattung



  • hochwertige Parkettböden
  • 3-fach verglaste Fenster
  • Deckenheizung & -kühlung
  • elektrische Raffstores
  • Markensanitärausstattung
  • Lift im Haus
  • Fahrradabstellräume
  • Tiefgarage (optional)


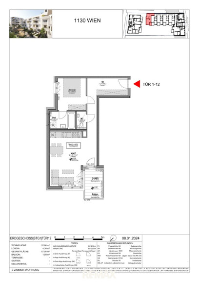
2-Zimmer-Wohnung mit Balkon



Moderne 2-Zimmer-Wohnung mit ca. 57,08 m² und offener Wohnküche.

Das Schlafzimmer verfügt über ein eigenes Badezimmer und bietet zusätzlichen Komfort.

Der ca. 6 m² große Balkon lädt zum Entspannen ein.



Die Wohnung eignet sich ideal für Singles, Paare oder kleine Haushalte, die ruhig wohnen und gleichzeitig flexibel in der Stadt unterwegs sein möchten.





Fotos (c) Irene Schanda


Wir weisen darauf hin, dass zwischen dem Vermittler und dem zu vermittelnden Dritten ein familiäres oder wirtschaftliches Naheverhältnis besteht.


Der Immobilienmakler erklärt, dass er – entgegen dem in der Immobilienwirtschaft üblichen Geschäftsgebrauch des Doppelmaklers – einseitig nur für den Vermieter tätig ist.

Infrastruktur / Entfernungen

Gesundheit
Arzt <750m
Apotheke <750m
Klinik <2.500m
Krankenhaus <250m

Kinder & Schulen
Schule <250m
Kindergarten <1.000m
Universität <1.500m
Höhere Schule <4.750m

Nahversorgung
Supermarkt <250m
Bäckerei <250m
Einkaufszentrum <3.500m

Sonstige
Geldautomat <250m
Bank <750m
Post <1.250m
Polizei <750m

Verkehr
Bus <250m
Straßenbahn <750m
U-Bahn <250m
Bahnhof <250m
Autobahnanschluss <3.250m

Angaben Entfernung Luftlinie / Quelle: OpenStreetMap

Eckdaten Objektnr. 1609/47020

Art: Wohnung - Erdgeschoß
Land: Österreich
Baujahr: 2025
Zustand: Erstbezug
Alter: Neubau
Gesamtmiete: 1.275,60
Kaltmiete (netto): 998,92 €
Kaltmiete: 1.115,11 €
Provision: Gemäß Erstauftraggeberprinzip bezahlt der Abgeber die Provision.
Betriebskosten: 116,19 €
Heizkosten: 41,86 €
MwSt Gesamt: 118,63 €
Wohnfläche: 52,88 m²
Nutzfläche: 57,08 m²
Zimmer: 2
Bäder: 1
WC: 1
Balkone: 1
Heizwärmebedarf:  B  34,80 kWh/m²a
fGEE:  A  0,72
Immobilie merken Exposé

Ausstattung

Fliesen, Parkettboden, Personenaufzug, Badewanne, Garage


Immobilie anfragen


Ihre persönliche Beratung

REMAX First - REM Immobilienmakler GmbH & Co KG

Selina Harnuboglu

RE/MAX First - REM Immobilienmakler Gmbh & Co KG

H +43 664 502 41 77