super 2 er WG taugliche Stilaltbauwohnung - nähe Dresdner Straße Nordwestbahnareal gelegen!

Wohnung - Etage, 1200 Wien


Dresdner Straße Taborstraße - Augarten

Beschreibung der Immobilie

super 2 er WG taugliche Stilaltbauwohnung - nähe Dresdner Straße Nordwestbahnareal gelegen!

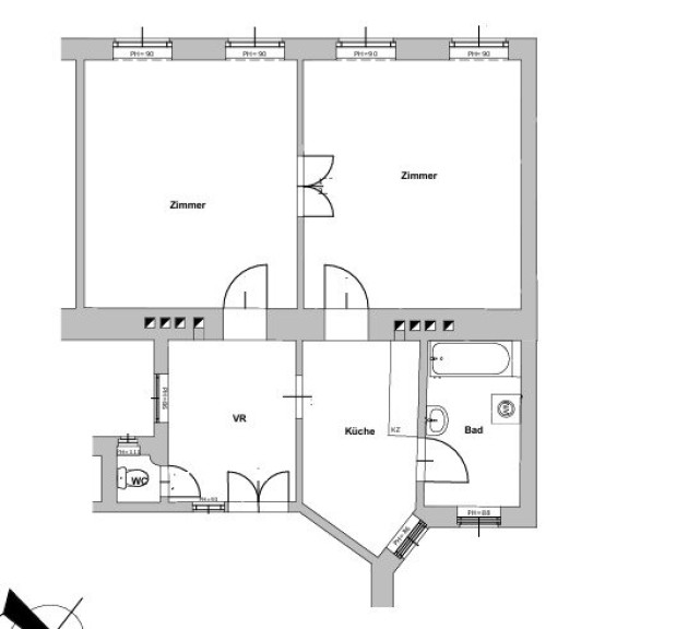
Die Wohnung liegt im 4. Stock (mit Lift) und besteht aus zwei getrennt begehbaren Zimmern,  einer eingerichteten Kochnische , einem Bad mit Wanne, Waschbecken, und einer separaten Toilette, sowie einem zentralen Vorraum. Der WM-Anschluss befindet sich im Badezimmer.  



Beide Zimmer sind annähend gleich groß und über den Vorraum und die Küche getrennt begehbar. Die Wohnung ist daher ideal für eine 2 er WG.



Beheizt wird mittels Fernwärme.



Die Wohnung ist in einem ausgesprochen guten Zustand und ist per sofort bezugsfähig.



Es wird ein unbefristetes Mietverhältnis angeboten.



Auf der Dresdner Straße und in der nahegelegenen Nordbahnstraße befinden sich alle Geschäfte des täglichen Bedarfs. Auch zur Millenniums City ist es nicht weit, dort wartet eine große Shopping Mall und ein Kinocenter und eine Vielzahl an Lokalen auf die neuen Mieter.



Auch die Donau und der Augarten sind nicht weit. Viele Rad- und Spazierwege wollen erkundet werden!



Verkehrsverbindungen: U6 Dresdner Straße, Straßenbahnlinie 2,12 Station Innstraße in weiterer Folge der Praterstern mit verschiedenen S Bahnverbindungen und der Linie U1 und U2



Energiekennziffern wurden beim Eigentümer angefragt (§ 9 Abs/ EAVG 2012)



Zur Vereinbarung eines Besichtigungstermines bitte ich um Zusendung einer Anfrage per mail  direkt von der jeweiligen Website wo Sie sich gerade befinden.



Für allfällige Fehlinformationen bzw. Irrtümer in den Angaben übernehmen wir keine Haftung!



Nähere Informationen über die Datenschutzverordnung finden sie unter www.trimond.at


Hinweis gemäß Energieausweisvorlagegesetz: Ein Energieausweis wurde vom Eigentümer bzw. Verkäufer, nach unserer Aufklärung über die generell geltende Vorlagepflicht, sowie Aufforderung zu seiner Erstellung noch nicht vorgelegt. Daher gilt zumindest eine dem Alter und der Art des Gebäudes entsprechende Gesamtenergieeffizienz als vereinbart. Wir übernehmen keinerlei Gewähr oder Haftung für die tatsächliche Energieeffizienz der angebotenen Immobilie.


Wir weisen darauf hin, dass zwischen dem Vermittler und dem zu vermittelnden Dritten ein familiäres oder wirtschaftliches Naheverhältnis besteht.


Der Immobilienmakler erklärt, dass er – entgegen dem in der Immobilienwirtschaft üblichen Geschäftsgebrauch des Doppelmaklers – einseitig nur für den Vermieter tätig ist.

Infrastruktur / Entfernungen

Gesundheit
Arzt <500m
Apotheke <500m
Klinik <1.000m
Krankenhaus <1.000m

Kinder & Schulen
Schule <500m
Kindergarten <500m
Universität <1.500m
Höhere Schule <1.500m

Nahversorgung
Supermarkt <500m
Bäckerei <500m
Einkaufszentrum <1.500m

Sonstige
Geldautomat <500m
Bank <500m
Post <500m
Polizei <500m

Verkehr
Bus <500m
U-Bahn <1.000m
Straßenbahn <500m
Bahnhof <1.000m
Autobahnanschluss <2.000m

Angaben Entfernung Luftlinie / Quelle: OpenStreetMap

Eckdaten Objektnr. 6202/200306

Art: Wohnung - Etage
Land: Österreich
Alter: Altbau
Gesamtmiete: 996,33
Kaltmiete (netto): 905,75 €
Kaltmiete: 905,75 €
Provision: Gemäß Erstauftraggeberprinzip bezahlt der Abgeber die Provision.
MwSt Gesamt: 90,58 €
Wohnfläche: 73,26 m²
Zimmer: 2
Bäder: 1
WC: 1
Immobilie merken Exposé

Ausstattung

Fliesen, Parkett, Fernwärme, Einbauküche, Personenaufzug, Badewanne


Immobilie anfragen


Ihre persönliche Beratung

TRIMOND Immobilienmakler GesmbH

Trimond Immobilienmakler Ges. m. b. H.

T 01/713 58 22