SONNIGE BALKONMIETE - 2-ZIMMER

Wohnung , 1180 Wien


Beschreibung der Immobilie

SONNIGE BALKONMIETE - 2-ZIMMER

VERFÜGBAR AB JUL 2026 / AVAILABLE FROM JULY 2026



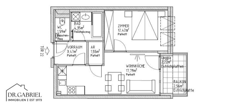
Raumaufteilung:
Eingangsbereich, ein Wohn- und Esszimmer mit voll ausgestatteter offenen Küche und Zugang zum Balkon, ein Badezimmer mit Wanne und Waschmaschienenanschluss, ein Abstellraum und eine separate Toilette.



Die hochwertige Ausstattung der Wohnung überzeugt vor allem durch:



  • hochwertigen Vollholzparkettböden in den Wohn- und Schlafräumen
  • Fliesen in den Sanitärbereichen
  • Miele Geräte in der Küche
  • elektrische Außenjalousie
  • Videogegensprechanlage
  • Fußbodenheizung


Die Anlage verfügt über Kellerabteile, Fahrrad- und Kinderwagenabstellraum und eine Waschküche



Die ausgezeichnete Umgebung der Wohnungsanlage bietet in unmittelbarer Nähe:



  • Einkaufsmöglichkeiten
  • Pötzleinsdorfer Schlosspark
  • BOKU Wien
  • internationale Schulen und Kindergärten
  • gute Anbindung an öffentliche Verkehrsmittel (Straßenbahn: 41, Bus: 40A)



Abwicklungshonorar an die Hausverwaltung einmalig: € 160,00


Garagenstellplätze können separat (nach Verfügbarkeit) angemietet werden € 120,00/Monat brutto - Kaution: € 400,00 - Abwicklungshonorar an die Hausverwaltung: € 130,00



Hinweis/ Disclaimer: Die Möbel sind digital und mit KI erstellt worden. Die Wohnung wird unmöbliert vermietet.



BITTE ZU BEACHTEN:



FÜR DIE ANMIETUNG DIESER WOHNUNG IST DIE VORLAGE EINES MONATLICHEN NETTOHAUSHALTSEINKOMMEN IN ÖSTERREICH IN HÖHE VON MINDESTENS DER 2,5-FACHEN GESAMTMIETE ERFORDERLICH!



Dieses Objekt wird Ihnen unverbindlich und freibleibend angeboten. Oben angeführte Angaben basieren auf Informationen und Unterlagen des Eigentümers und sind unsererseits ohne Gewähr.



Weitere Objekte finden Sie auf unserer Homepage: www.gabriel.at
********************************************************************



LAYOUT :
Entrance area, living- dining room with a fully equipped open kitchen and access to the balcony, one bedroom, bathroom with tub and washing machine connection, a separate toilet, a storage room



Fixtures and fittings:



  • hardwood parquet floors in the living and sleeping areas
  • tiles in the sanitary areas
  • Miele appliances in the kitchen
  • electric external blinds
  • video intercom system
  • underfloor heating


The condominium offers storage units in the basement, a bicycle and stroller storage room, and a laundry room.



One-time administration fee payable to the property management: €160.00



Parking spaces can be rented separately (subject to availability): € 120.00/month incl. VAT, Deposit: € 400.00, administration fee payable to the property management: € 130.00



The excellent location of the residential complex offers nearby:



  • shopping facilities
  • Pötzleinsdorf Park
  • BOKU Vienna
  • international schools and kindergartens
  • good public transport connections (tram: 41, bus: 40A)


Note / Disclaimer: The furniture shown has been digitally created using AI. The apartment is rented unfurnished.



PLEASE NOTE:



TO RENT THIS APARTMENT, PROOF OF A MONTHLY NET HOUSEHOLD INCOME IN AUSTRIA OF AT LEAST 2.5 TIMES THE TOTAL RENT IS REQUIRED!



This property is offered without obligation and subject to availability. The above information is based on details and documents provided by the owner and is therefore without guarantee.



For more properties, please visit our homepage: www.gabriel.at


Der Immobilienmakler erklärt, dass er – entgegen dem in der Immobilienwirtschaft üblichen Geschäftsgebrauch des Doppelmaklers – einseitig nur für den Vermieter tätig ist.

Infrastruktur / Entfernungen

Gesundheit
Arzt <500m
Apotheke <500m
Klinik <1.000m
Krankenhaus <2.000m

Kinder & Schulen
Schule <500m
Kindergarten <500m
Universität <1.000m
Höhere Schule <1.000m

Nahversorgung
Supermarkt <500m
Bäckerei <500m
Einkaufszentrum <2.500m

Sonstige
Geldautomat <500m
Bank <1.000m
Post <1.000m
Polizei <1.000m

Verkehr
Bus <500m
U-Bahn <2.000m
Straßenbahn <500m
Bahnhof <1.000m
Autobahnanschluss <3.000m

Angaben Entfernung Luftlinie / Quelle: OpenStreetMap

Eckdaten Objektnr. 28467

Art: Wohnung
Land: Österreich
Baujahr: 2019
Zustand: Gepflegt
Alter: Neubau
Gesamtmiete: 1.199,00
Kaltmiete (netto): 940,30 €
Kaltmiete: 1.090,00 €
Provision: Gemäß Erstauftraggeberprinzip bezahlt der Abgeber die Provision.
Betriebskosten: 149,70 €
MwSt Gesamt: 109,00 €
Wohnfläche: 43,39 m²
Gesamtfläche: 43,39 m²
Zimmer: 2
Bäder: 1
WC: 1
Balkone: 1
Heizwärmebedarf:  B  34,78 kWh/m²a
fGEE:  A  0,78
Immobilie merken Exposé

Ausstattung

Fliesen, Parkett, Fernwärme, Fußbodenheizung, Einbauküche, Wohnküche / offene Küche, Personenaufzug, Ostbalkon, Badewanne, Kabel/Satelliten-TV, Garage, Wasch/Trockenraum


Immobilie anfragen


Ihre persönliche Beratung

Dr. Alexandra Gabriel Realitätenvermittlungsgesellschaft m.b.H.

Noemi Kristof

Dr. Alexandra Gabriel Realitätenvermittlungsgesellschaft m.b.H.

T +43 1 533 10 96