Erstklassiger Bauträgergrund mit durchdachter Planstudie in bester Lage – optimale Voraussetzungen für Ihr Bauprojekt!

Grundstück , 8510 Stainz


- Ruhige und grüne Wohngegend in Zentrumslage - Gute Verkehrsanbindung (Autobahn, Zug) - Umgeben von Wäldern und Weinbergen - Schöne Aussicht auf die umliegende Landschaft - In der Nähe von Wander- und Radwegen - Familienfreundliche Umgebung mit vielen Freizeitmöglichkeiten - Gut entwickelte Infrastruktur und gute Einkaufsmöglichkeiten in der Umgebung

Beschreibung der Immobilie

Erstklassiger Bauträgergrund mit durchdachter Planstudie in bester Lage – optimale Voraussetzungen für Ihr Bauprojekt!

Erstklassiger Bauträgergrund mit durchdachter Planstudie in bester Lage – optimale Voraussetzungen für Ihr Bauprojekt!



Lukratives Immobilieninvestment – in Stainz um nur € 589.000,- jetzt sichern!



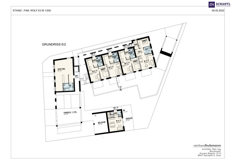
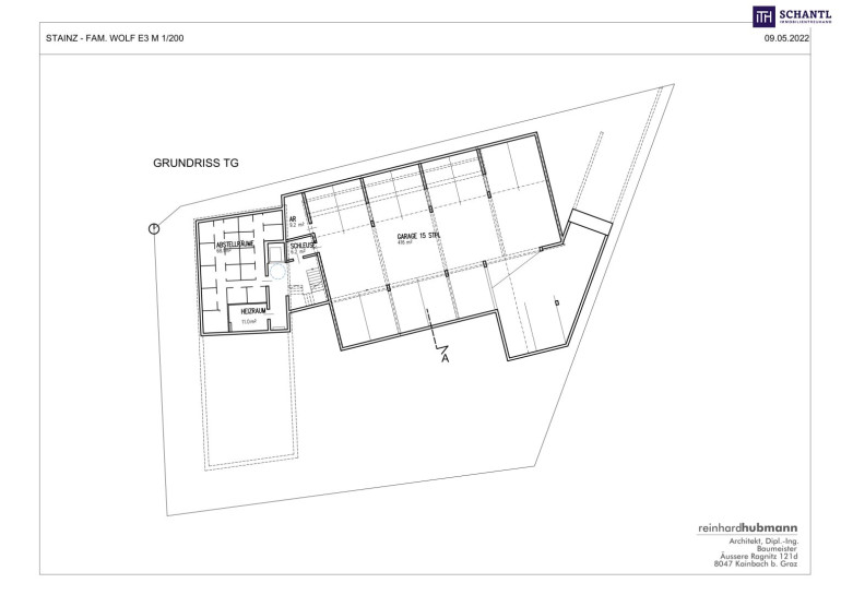
In der begehrten Lage von Stainz, direkt neben der Bahnhofstraße 29, bieten wir Ihnen eine einmalige Investitionsmöglichkeit: Ein baugenehmigtes Grundstück, ideal für ein modernes Wohn- und Geschäftshaus. Dieses Projekt umfasst die Errichtung von 14 hochwertigen Wohnungen, vielseitig nutzbaren Geschäftsflächen im Erdgeschoss sowie eine Tiefgarage für bequemes Parken.



Dieses moderne Immobilienprojekt erstreckt sich über eine Gesamtfläche von ca. 1.074,80 m² und kombiniert stilvolles Wohnen mit praktischer Geschäftsnutzung.



Projekthighlights:



  • 14 hochmoderne Wohnungen: Eine Auswahl an 1- bis 4 Zimmer-Wohneinheiten. Jede Einheit wird mit Fokus auf Komfort und Design geplant, um eine hohe Lebensqualität zu gewährleisten. Die Wohnungen variieren in Größe und Schnitt, um unterschiedlichen Bedürfnissen gerecht zu werden – ideal für Singles, Paare und Familien.
  • Integrierter Geschäftsbereich: Eine Gewerbefläche im Erdgeschoss bietet vielseitige Nutzungsmöglichkeiten, ideal für unterschiedliche Unternehmenskonzepte, wie beispielsweise Geschäftslokal, Dienstleistungsbetrieb, Ordination, Büro, Café oder Bäckerei usw.
  • Umweltbewusste Bauweise: Das Projekt zeichnet sich durch seine nachhaltige Bauweise aus, inklusive modernster Energieeffizienzmaßnahmen.
  • Private Tiefgarage: Sichere und bequeme Parkmöglichkeiten für alle Einheiten. Die großzügige Tiefgarage bietet ausreichend Stellplätze, die direkt vom Wohnbereich aus zugänglich sind.
  • Barrierefreier Zugang: Vollständig barrierefreier Zugang in allen Bereichen, von der Tiefgarage bis zu den oberen Stockwerken.
  • Traumhafter Innenhofgarten: Ein ruhiger, geschützter Innenhofgarten bildet das grüne Herz der Anlage und bietet einen idealen Rückzugsort zum Entspannen und Genießen.


Lage und Umgebung: Gelegen in einer der reizvollsten Gegenden der Steiermark, bietet dieses Projekt nicht nur eine ruhige und entspannte Umgebung, sondern auch eine ausgezeichnete Anbindung an lokale Infrastrukturen. Einkaufsmöglichkeiten, Schulen, medizinische Einrichtungen und kulturelle Angebote befinden sich in unmittelbarer Nähe. Der charmante Ort Stainz, bekannt für sein Schloss und die romantische Schmalspurbahn, bietet zudem eine hohe Lebens- und Freizeitqualität.



Investitionsmöglichkeit: Dieses Projekt bietet eine attraktive Kapitalanlage mit Potenzial für Wertsteigerung und stabile Mieterträge. Es eignet sich hervorragend für Investoren, die Wert auf Qualität, Standort und nachhaltige Bauweise legen.



HINWEIS: Vereinbart wird, dass der Kaufpreis erst nach erfolgter Baugenehmigung zu bezahlen ist!



Nutzen Sie die Gelegenheit, Teil eines exklusiven Wohn- und Geschäftshauses in Stainz zu werden. Für weitere Informationen und Details zu diesem einmaligen Angebot kontaktieren Sie uns heute. Investieren Sie in Ihre Zukunft – mit Stil und Substanz.



Worauf noch warten?



Vereinbaren Sie noch heute eine Besichtigung oder eine persönliche Beratung mit uns!



Sie wollen Ihre Immobilie verkaufen? Dann sind Sie bei uns goldrichtig!

Wir sind gerne für Sie da und unterstützen Sie unverbindlich bei der Bewertung Ihrer Immobilie. Mit viel Sorgfalt stellen wir Ihnen alle wichtigen Informationen und Unterlagen zusammen, damit Sie die besten Entscheidungen treffen können.



In Kooperation mit unserer SFI Vermögenstreuhand begleiten wir Sie bei der Verwirklichung Ihres Traumobjekts und unterstützen Sie beim nachhaltigen Vermögensaufbau. Mit unseren erfahrenen Experten sorgen wir dafür, dass Sie die besten Konditionen erhalten – damit Ihre Träume Wirklichkeit werden!



http://www.schantl-ith.at in Kooperation mit www.sfi-invest.com 



Die Angaben über das angebotene Objekt erfolgen mit der Sorgfalt eines ordentlichen Immobilienmaklers; für die Richtigkeit solcher Angaben, die auf Informationen der über das Objekt Verfügungsberechtigten beruhen, wird keine Gewähr geleistet!


Wir weisen darauf hin, dass zwischen dem Vermittler und dem zu vermittelnden Dritten ein familiäres oder wirtschaftliches Naheverhältnis besteht.

Infrastruktur / Entfernungen

Gesundheit
Arzt <500m
Apotheke <500m
Klinik <9.500m
Krankenhaus <9.500m

Kinder & Schulen
Schule <1.000m
Kindergarten <1.500m

Nahversorgung
Supermarkt <500m
Bäckerei <500m
Einkaufszentrum <9.000m

Sonstige
Bank <500m
Geldautomat <500m
Post <500m
Polizei <500m

Verkehr
Bus <500m
Bahnhof <500m
Autobahnanschluss <9.000m

Angaben Entfernung Luftlinie / Quelle: OpenStreetMap

Eckdaten Objektnr. 297844

Art: Grundstück
Land: Österreich
Kaufpreis: 589.000,00
Provision: 21.204,00 € inkl. 20% USt.
Wohnfläche: 1.074,80 m²
Grundstücksfl.: 1.473,00 m²
Immobilie merken Exposé

Ausstattung

Fliesen, Parkettboden, Parkett, Solarenergie, Fernwärme, Badewanne, Dusche, Tiefgarage


Immobilie anfragen


Ihre persönliche Beratung

Schantl ITH Immobilientreuhand GmbH

Immobilienmanagement ITH

Schantl ITH Immobilientreuhand GmbH

T +43 664 5411047

H +43 664 4244933