Modernes Traumhaus in St. Wolfgang: 5 Zimmer, Garten, Garage, top Ausstattung zum Kauf!

Haus , 5340 Sankt Gilgen


Beschreibung der Immobilie

Modernes Traumhaus in St. Wolfgang: 5 Zimmer, Garten, Garage, top Ausstattung zum Kauf!

Lage/Infrastruktur:



liegt direkt am Wolfgangsee in St. Wolfgang - Gemeindegebiet St. Gilgen - und zählt zu den begehrtesten Wohnlagen im Salzkammergut. Der Ort bietet eine ausgezeichnete Kombination aus Natur, Lebensqualität und guter Infrastruktur.



Im Ortszentrum finden sich Nahversorger, Gastronomie, Ärzte, Bank und Schule. Die Anbindung erfolgt über die B158 mit Busverbindungen in die Region; Bad Ischl ist in ca. 15 Minuten erreichbar, Salzburg in rund 50 Minuten.



Ried überzeugt zudem durch seine ruhige, erhöhte Sonnenlage mit schneller Nähe zum See und vielfältigen Freizeitmöglichkeiten – von Wassersport bis Wandern.





Beschreibung:



Neuwertiges Einfamilienhaus mit Berg- und Seeblick in St. Wolfgang / Ried



In erhöhter Sonnenlage oberhalb von St. Wolfgang im Salzkammergut, nur 300 Meter vom Wolfgangsee entfernt, präsentiert sich dieses 2023 fertiggestellte Einfamilienhaus als seltene Gelegenheit im Salzkammergut.



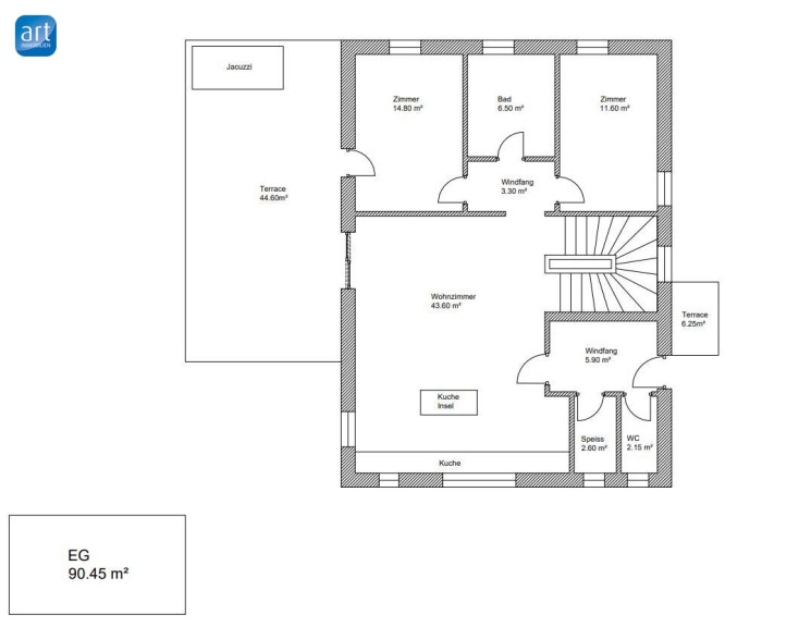
Auf ca. 180 m² Wohnfläche überzeugt das Haus mit offenem, lichtdurchflutetem Wohn-, Ess- und Küchenbereich samt hochwertiger Breitschopf-Küche (Siemens & Bora), vorbereitetem Kaminanschluss sowie direktem Zugang zur großzügigen Terrasse mit Tropenholzbelag und Whirlpool. Der rund 200 m² große, pflegeleichte Garten mit Granitsteinmauern und Gartenhaus bietet Privatsphäre und herrlichen Bergblick.



Das Raumkonzept umfasst 3–4 Schlafzimmer, 2 Bäder, Gäste-WC, Büro, Spielzimmer sowie eine exklusive Master-Suite mit offenem Dachstuhl, Bad en suite und überdachtem Balkon mit Berg- und Teilseeblick.



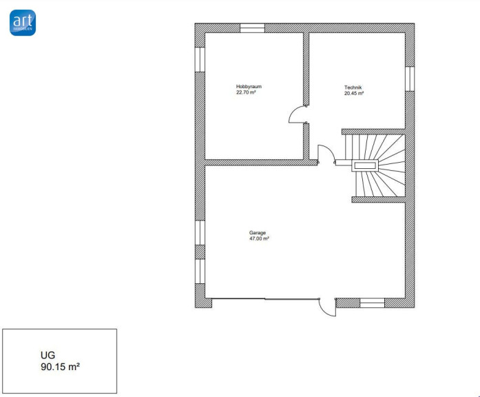
Im Untergeschoss befinden sich Hobbyraum mit Kochnische, Weinkeller, Technik- und Abstellräume sowie eine beheizte Doppelgarage.



Highlights:
Luftwärmepumpe mit Fußbodenheizung (inkl. Garage), hochwertige Eichenböden, elektrische Außenjalousien, ca. 586 m² Grundstück, ca. 260 m² Gesamtnutzfläche, HWB 33 kWh/m²a, fGEE 0,66.



Ruhige Wohnlage nahe dem Ortszentrum, ca. 15 Minuten nach Bad Ischl und 50 Minuten nach Salzburg.




Infrastruktur / Entfernungen

Gesundheit
Arzt <1.000m
Apotheke <1.500m

Kinder & Schulen
Schule <500m
Kindergarten <4.500m

Nahversorgung
Supermarkt <1.000m
Bäckerei <1.000m

Sonstige
Bank <1.000m
Geldautomat <1.000m
Polizei <4.500m
Post <1.500m

Verkehr
Bus <500m
Bahnhof <500m

Angaben Entfernung Luftlinie / Quelle: OpenStreetMap

Eckdaten Objektnr. 2610352-5

Art: Haus
Land: Österreich
Baujahr: 2023
Alter: Neubau
Kaufpreis: 1.650.000,00
Wohnfläche: 180,00 m²
Grundstücksfl.: 586,00 m²
Zimmer: 5
Bäder: 2
Balkone: 1
Terrassen: 1
Stellplätze: 2
Heizwärmebedarf: 33,00 kWh/m²a
fGEE: 0,66
Immobilie merken Exposé

Ausstattung

Parkett, Fliesen, Fußbodenheizung, Einbauküche, Wohnküche / offene Küche, Garage, Parkplatz


Immobilie anfragen


Ihre persönliche Beratung

ART Immobilien eU

Ing. Christian Adam

ART Immobilien eU

H +43 676 846629 207