Betriebsliegenschaft in Parndorf, neuwertig, flexibel nutzbar!
Halle / Lager / Produktion
- Produktion,
7111
Parndorf
Outletcenter Parndorf
Beschreibung der Immobilie
Betriebsliegenschaft in Parndorf, neuwertig, flexibel nutzbar!
Neugebaute Betriebsliegenschaft in Parndorf – Industrie- und Gewerbegebiet
Baujahr 2023
Zum Verkauf/gelangt eine neugebaute Betriebsliegenschaft im Industrie- und Gewerbegebiet von Parndorf.
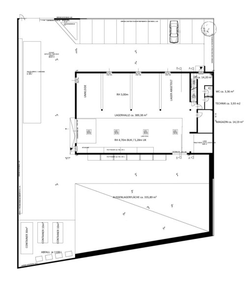
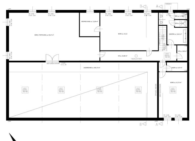
Ebenerdig befinden sich ca. 430 m² Lager- und Sozialflächen. Die direkte Zufahrt erfolgt über zwei Sektionaltore. Die Hallenflächen erstrecken sich teilweise über zwei Ebenen bis ins Obergeschoß, wodurch die Möglichkeit besteht, die Räume im Obergeschoß von der Halle aus über eine Mezzaninfläche mit einem Stapler zu bedienen. Im Obergeschoß befinden sich zudem funktionale 190 m² Büroflächen sowie weitere Sanitärräume.
Die Flächen werden elektrisch über Deckenpaneele beheizt und sind zum Teil klimatisiert.
Außen stehen große Freilagerflächen mit befestigtem Untergrund zur Verfügung. Es sind 9 gekennzeichnete PKW-Stellplätze vorhanden. Die Liegenschaft ist vollständig eingefriedet und nahezu vollständig versiegelt.
Die Betriebsliegenschaft ist derzeit in Verwendung und kann nach Absprache zur Gänze bestandsfrei oder mit bestehendem Mieter übergeben werden.
Hinweis gemäß Energieausweisvorlagegesetz: Ein Energieausweis wurde vom Eigentümer bzw. Verkäufer, nach unserer Aufklärung über die generell geltende Vorlagepflicht, sowie Aufforderung zu seiner Erstellung noch nicht vorgelegt. Daher gilt zumindest eine dem Alter und der Art des Gebäudes entsprechende Gesamtenergieeffizienz als vereinbart. Wir übernehmen keinerlei Gewähr oder Haftung für die tatsächliche Energieeffizienz der angebotenen Immobilie.
Der Vermittler ist als Doppelmakler tätig.
Infrastruktur / Entfernungen
Gesundheit
Arzt <2.000m
Apotheke <1.500m
Klinik <8.000m
Kinder & Schulen
Schule <2.000m
Kindergarten <1.500m
Nahversorgung
Supermarkt <1.500m
Bäckerei <1.500m
Einkaufszentrum <1.000m
Sonstige
Bank <1.500m
Geldautomat <1.500m
Post <2.000m
Polizei <1.500m
Verkehr
Bus <1.000m
Autobahnanschluss <1.500m
Bahnhof <1.000m
Angaben Entfernung Luftlinie / Quelle: OpenStreetMap
Eckdaten Objektnr. 6717/97
| Art: | Halle / Lager / Produktion - Produktion |
| Land: | Österreich |
| Baujahr: | 2023 |
| Zustand: | Neuwertig |
| Alter: | Neubau |
| Kaufpreis: | 1.590.000,00 € |
| Kaufpreis / m²: | 2.199,78 € |
| Provision: | 3% des Kaufpreises zzgl. 20% USt. |
| Nutzfläche: | 722,80 m² |
| Grundstücksfl.: | 1.944,00 m² |
| Gesamtfläche: | 722,80 m² |
| Lagerfläche: | 454,00 m² |
| Bürofläche: | 190,00 m² |
| Zimmer: | 3,50 |
| WC: | 3 |
| Stellplätze: | 9 |
Ausstattung
Elektro, Parkplatz
Ihre persönliche Beratung
Lukas Richter
Industriemakler
T +43 664 390 83 87