Wohnbau-Chance im Herzen von Eggersdorf bei Graz mit Baudichte bis 1,2 auf über 1.500 m²!

Zinshaus Renditeobjekt - Wohnanlagen, 8063 Eggersdorf bei Graz , Hauptstraße 25


Beschreibung der Immobilie

Wohnbau-Chance im Herzen von Eggersdorf bei Graz mit Baudichte bis 1,2 auf über 1.500 m²!

Objektbeschreibung
Das Grundstück an der Hauptstraße 25 in 8061 Eggersdorf bietet eine herausragende Lage im Zentrum der Gemeinde und eine optimale Basis für ein neues Wohnbauprojekt. Besonders interessant ist die hohe Baudichte von bis zu Faktor 1,2, die im Flächenwidmungsplan SG-KG (0,5-1,2) festgelegt ist. Dieses Potenzial ermöglicht eine flexible und wirtschaftlich attraktive Projektierung für Bauträger und Projektentwickler.



Grundstücksdaten



  • Grundstücksfläche: 1.556 m² (laut GIS-Steiermark)
  • Verbaute Fläche: 137 m² (laut GIS-Steiermark)
  • Freifläche: 1.415 m² (laut GIS-Steiermark)
  • Widmung: SG-KG 0,5-1,2 (laut Flächenwidmungsplan)


Projektierungspotenzial
Ein unverbindliches Projektierungskonzept sieht eine attraktive Ausnutzung der Flächen vor, basierend auf der aktuellen Kfz-Stellplatzverordnung der Gemeinde, die 2 Abstellplätze je Wohneinheit vorschreibt:



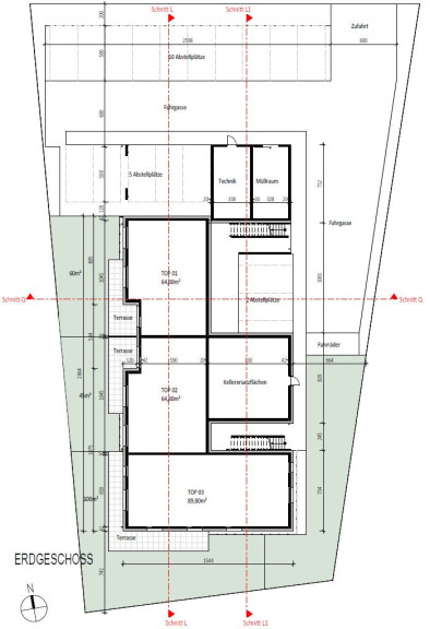
  • Wohnungen: 9 Einheiten
  • Gesamtwohnfläche: 749,40 m²
  • Bruttogeschoßfläche: 1.190 m²
  • Kfz-Stellplätze: 18 Parkplätze (5 davon überdacht)


Diese Projektierung ist an die örtlichen Bauvorschriften, Auflagen und gesetzlichen Vorgaben angepasst, stellt jedoch lediglich eine mögliche Nutzung dar. Eine offizielle Genehmigung durch die Gemeinde steht noch aus, und das Projekt bedarf einer weiteren Prüfung.





Wohnungsgrößen und Aufteilungen



  • 4 Wohnungen zu je 64,30 m²

    • 2 Einheiten im Erdgeschoss mit 45-60 m² Gartenanteil
    • 2 Einheiten im 1. Obergeschoss mit Balkon

  • 3 Wohnungen zu je 89,80 m²
    • 2 Einheiten im 1. Obergeschoss mit Balkon
    • 1 Einheitim Erdgeschoss mit 100 m² Gartenanteil

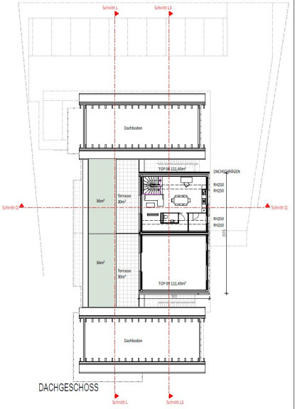
  • 2 Maisonette-Wohnungen zu je 111,40 m²
    • Im 1. Obergeschoss und Dachgeschoss mit 30 m² gepflasterter Terrasse und 36 m² Grünfläche



Lage und Infrastruktur
Dieses Grundstück punktet durch seine zentrale Lage im Herzen von Eggersdorf, einer wachsenden Gemeinde in der Nähe von Graz. Die ausgezeichnete Anbindung an den öffentlichen Verkehr sowie das umfassende Angebot an Nahversorgung und Dienstleistungen machen den Standort besonders attraktiv für zukünftige Bewohner.



  • Zentrale Lage in Eggersdorf
  • Hohe Baudichte von bis zu Faktor 1,2! (SG-KG 0,5-1,2)
  • Nahe Anbindung an Graz und das Umland
  • Optimale Infrastruktur mit Schulen, Einkaufsmöglichkeiten und öffentlichem Verkehr in direkter Umgebung


Weitere Informationen
Ein Bodengutachten und eine Vermessung wurden zum aktuellen Zeitpunkt noch nicht durch entsprechende Fachkräfte durchgeführt.



Fazit
Das Grundstück bietet großes Entwicklungspotenzial für Bauträger und Projektentwickler, die eine profitable Investition in einem gefragten Wohngebiet realisieren möchten. Dank der hohen Baudichte und der zentralen Lage in Eggersdorf eignet sich dieses Projekt ideal für eine moderne Wohnbebauung mit hochwertigen Einheiten und attraktiven Freiflächen.



Kontakt
Für weitere Informationen und Besichtigungstermine stehen wir Ihnen gerne zur Verfügung.


Hinweis gemäß Energieausweisvorlagegesetz: Ein Energieausweis wurde vom Eigentümer bzw. Verkäufer, nach unserer Aufklärung über die generell geltende Vorlagepflicht, sowie Aufforderung zu seiner Erstellung noch nicht vorgelegt. Daher gilt zumindest eine dem Alter und der Art des Gebäudes entsprechende Gesamtenergieeffizienz als vereinbart. Wir übernehmen keinerlei Gewähr oder Haftung für die tatsächliche Energieeffizienz der angebotenen Immobilie.


Wir weisen darauf hin, dass zwischen dem Vermittler und dem zu vermittelnden Dritten ein familiäres oder wirtschaftliches Naheverhältnis besteht.

Infrastruktur / Entfernungen

Gesundheit
Arzt <450m
Apotheke <125m
Klinik <5.825m

Kinder & Schulen
Schule <500m
Kindergarten <500m
Höhere Schule <8.275m

Nahversorgung
Supermarkt <75m
Bäckerei <150m

Sonstige
Geldautomat <475m
Bank <475m
Polizei <250m
Post <550m

Verkehr
Bus <100m
Bahnhof <5.275m
Autobahnanschluss <6.825m
Straßenbahn <9.025m
Flughafen <6.725m

Angaben Entfernung Luftlinie / Quelle: OpenStreetMap

Eckdaten Objektnr. 2077/187

Art: Zinshaus Renditeobjekt - Wohnanlagen
Land: Österreich
Kaufpreis: 495.000,00
Provision: 17.820,00 € inkl. 20% USt.
Grundstücksfl.: 1.556,00 m²
Immobilie merken Exposé

Ausstattung

Südbalkon, Westbalkon, Carport, Parkplatz


Immobilie anfragen


Ihre persönliche Beratung

Gregor Andrekowitsch

Immotaurus Living & Management GmbH

T +43 660 449 39 69