Viel draußen, smart drinnen – Gartenwohnung für modernes Wohnen - 3 Zimmer im Erstbezug!

Wohnung , 1210 Wien , Platzergasse


Hier vereint auf charmante Weise ruhiges Wohnen mit urbaner Lebensqualität. Inmitten einer gewachsenen, angenehmen Wohngegend im 21. Bezirk genießen Sie hier eine entspannte Atmosphäre, während Einkaufsmöglichkeiten, Schulen und öffentliche Verkehrsmittel bequem erreichbar sind. Die Nähe zu Grünflächen und Naherholungsgebieten schafft einen perfekten Ausgleich zum Alltag und lädt zu erholsamen Momenten im Freien ein. Eine Lage, die Ruhe, Lebensqualität und gute Anbindung harmonisch miteinander verbindet. Öffentliche Verkehrsanbindung: Straßenbahnlinien 30, 31// Buslinien 30A, 32A

Beschreibung der Immobilie

Viel draußen, smart drinnen – Gartenwohnung für modernes Wohnen - 3 Zimmer im Erstbezug!

Hier freuen Sie sich jeden Tag auf´s Heimkommen...



Diese kompakte und optimal geschnittene 3-Zimmer-Gartenwohnung im 21. Bezirk überzeugt durch eine durchdachte Raumaufteilung und großzügige Freiflächen – perfekt für Paare, kleine Familien oder Anleger.



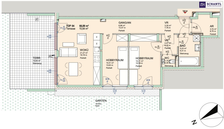
Auf rund 67 m² Wohnfläche erwartet Sie ein funktionaler Grundriss mit einem zentralen Vorraum, der alle Räume ideal erschließt. Die ca. 21 m² große Wohnküche bildet das Herzstück der Wohnung und bietet ausreichend Platz für Kochen, Essen und gemütliches Beisammensein.



Zwei Schlafzimmer mit ca. 10,5 m² und 12,5 m² eignen sich ideal als Kinder-, Arbeits- oder Gästezimmer. Das Badezimmer ist mit einer Badewanne ausgestattet, ergänzt durch ein separates WC mit Handwaschbecken.



Ein besonderes Highlight ist der großzügige Außenbereich: Eine ca. 15,6 m² große Terrasse sowie ein rund 135 m² großer Eigengarten schaffen viel Raum zum Entspannen, Spielen oder Genießen im Freien.



Die Nord- und Westausrichtung sorgt für angenehme Lichtverhältnisse und stimmungsvolle Abendsonne.



Als Erstbezug präsentiert sich die Wohnung in hochwertiger Ausführung mit stilvollem Fischgrät-Echtholzparkett, 3-Scheiben Isolierverglasung, elektrische Rollläden, Fußbodenheizung sowie effizienter Luftwärmepumpe – ein zukunftsorientiertes Wohnkonzept mit besonderem Wohngefühl.



Eine ideale Kombination aus kompaktem Wohnen und großzügigem Freiraum – ruhig gelegen und dennoch bestens angebunden.



Wohnfläche: ca. 66,90 m² + Terrasse: ca. 15,64 m² + Garten: ca. 135 m² + Kellerabteil 



Kaufpreis: € 399.000,-



KP Garage (optional): € 21.500,-



Provision: 3% zzgl. 20% Ust.





Vereinbaren Sie heute noch einen Termin - wir beraten Sie gerne und zeigen Ihnen alle verfügbaren Einheiten!



www.schantl-ith.at



Bei konkretem Interesse senden wir Ihnen sehr gerne weiterführende Dokumente zu, wie:



o Grundbuchauszug



o Wohnungseigentumsvertrag



o Nutzwertgutachten



o Eigentümerversammlungsprotokoll (Falls vorhanden) etc...





Unser Service für Sie: Wenn Sie sich für diese Immobilie entschieden haben, begleiten wir Sie gerne vom Kaufanbot weg inkl. Klärung von Sonderwünschen und der Vertragsunterzeichnung über die Wohnungsübergabe bis hin zu diversen Ummeldungen wie Strom und Gas. Entsprechende Formulare oder auch Meldezettel stellen wir Ihnen sehr gerne zur Verfügung.



Gerne unterstützen wir Sie auch bei der Finanzierung Ihres Traumobjekts und finden mit unseren langjährigen Partnern die besten Konditionen für Sie.



www.schantl-ith.at


Wir weisen darauf hin, dass zwischen dem Vermittler und dem zu vermittelnden Dritten ein familiäres oder wirtschaftliches Naheverhältnis besteht.


Der Vermittler ist als Doppelmakler tätig.

Infrastruktur / Entfernungen

Gesundheit
Arzt <250m
Apotheke <750m
Klinik <2.500m
Krankenhaus <1.000m

Kinder & Schulen
Schule <500m
Kindergarten <250m
Universität <1.250m
Höhere Schule <3.500m

Nahversorgung
Supermarkt <750m
Bäckerei <750m
Einkaufszentrum <1.750m

Sonstige
Bank <1.000m
Geldautomat <1.000m
Post <1.500m
Polizei <1.000m

Verkehr
Bus <250m
U-Bahn <3.250m
Straßenbahn <250m
Bahnhof <2.000m
Autobahnanschluss <2.250m

Angaben Entfernung Luftlinie / Quelle: OpenStreetMap

Eckdaten Objektnr. 297745

Art: Wohnung
Land: Österreich
Baujahr: 2024
Zustand: Erstbezug
Alter: Neubau
Kaufpreis: 399.000,00
Kaufpreis / m²: 4.662,30 €
Provision: 3% des Kaufpreises zzgl. 20% USt.
Betriebskosten: 187,50 €
MwSt Gesamt: 18,75 €
Wohnfläche: 66,89 m²
Nutzfläche: 85,58 m²
Zimmer: 3
Bäder: 1
WC: 1
Terrassen: 1
Garten: 134,82 m²
Heizwärmebedarf:  B  35,30 kWh/m²a
fGEE:  A  0,77
Immobilie merken Exposé

Ausstattung

Parkett, Estrichboden, Fliesen, Fußbodenheizung, Zentralheizung, Wohnküche / offene Küche, Personenaufzug, Badewanne, Kabel/Satelliten-TV, Garage


Immobilie anfragen


Ihre persönliche Beratung

Schantl ITH Immobilientreuhand GmbH

Mark Prettenthaler

Schantl ITH Immobilientreuhand GmbH

T +43 6643070009

H +43 650 56 75 611