Großzügiges Büro/Praxis in 1220 Wien – 1.171 m²+ Freifläche, gepflegt, Top Lage!

Büro / Praxis , 1220 Wien,Donaustadt


Diese Büro- bzw. Praxisfläche befindet sich im 22. Bezirk von Wien, nahe der S1 Hermann Gebauer Straße. Die Lage bietet beste Anbindung an öffentliche Verkehrsmittel, Autobahn. Ideal für professionelle Arbeitsumgebungen mit hoher Erreichbarkeit.

Beschreibung der Immobilie

Großzügiges Büro/Praxis in 1220 Wien – 1.171 m²+ Freifläche, gepflegt, Top Lage!

Entdecken Sie Ihr neues Büro- oder Praxisdomizil im attraktiven 22. Bezirk in Wien! Diese großzügige und gepflegte Bürofläche mit einer beeindruckenden Gesamtfläche von 1171 m² bietet Ihnen und Ihrem Team den idealen Arbeitsplatz, um erfolgreich zu arbeiten und zu wachsen.



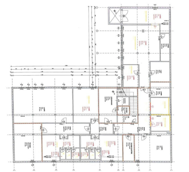
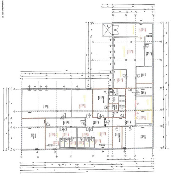
Die Immobilie besticht durch ihre durchdachte Raumaufteilung, der einen sofortigen Einzug ohne Renovierungsaufwand ermöglicht.



Als Büro, Produktion und Lager – hier finden Sie vielseitige Nutzungsmöglichkeiten, die sich perfekt an Ihre individuellen Bedürfnisse anpassen lassen.



Die Kellerräumlichkeiten sind teilweise über Fenster (Abböschungen) belichtet.



Die Lage könnte besser nicht sein: Dank der hervorragenden Verkehrsanbindung sind Sie sowohl mit öffentlichen Verkehrsmitteln als auch mit dem Auto bestens erreichbar.



Die nahegelegenen Busverbindungen garantieren eine stressfreie Anreise für Mitarbeiter und Kunden, und der Autobahnanschluss sorgt für schnelle Verbindungen in alle Richtungen.



Darüber hinaus profitieren Sie von der unmittelbaren Nähe zu wichtigen Einrichtungen des täglichen Bedarfs.



Für die kleine Pause zwischendurch oder den schnellen Snack finden Sie eine Bäckerei in unmittelbarer Nähe, die frische und köstliche Produkte anbietet.



Die monatliche Miete von 11.710,00 € spiegelt die hochwertige Ausstattung, die großzügige Fläche und die erstklassige Lage dieser Immobilie wider – eine Investition, die sich langfristig auszahlen wird.



Herr Kospach Albrecht unter 0676/85 25 65-300 zur Verfügung.

Infrastruktur / Entfernungen

Gesundheit
Arzt <500m
Apotheke <2.000m
Klinik <2.000m
Krankenhaus <5.500m

Kinder & Schulen
Schule <2.000m
Kindergarten <2.000m
Universität <3.500m
Höhere Schule <3.000m

Nahversorgung
Supermarkt <1.500m
Bäckerei <1.000m
Einkaufszentrum <2.000m

Sonstige
Bank <2.000m
Geldautomat <2.000m
Post <2.000m
Polizei <2.000m

Verkehr
Bus <500m
U-Bahn <2.000m
Straßenbahn <2.500m
Bahnhof <2.000m
Autobahnanschluss <500m

Angaben Entfernung Luftlinie / Quelle: OpenStreetMap

Eckdaten Objektnr. 1754/92

Art: Büro / Praxis
Land: Österreich
Baujahr: 1997
Zustand: Gepflegt
Alter: Neubau
Kaltmiete (netto): 11.710,00 €
Kaltmiete: 11.710,00 €
Miete / m²: 10,00 €
Provision: 42.156,00 € inkl. 20% USt.
Nutzfläche: 1.171,00 m²
Grundstücksfl.: 2.241,00 m²
Lagerfläche: 754,00 m²
Bürofläche: 101,00 m²
Keller: 659,00 m²
Heizwärmebedarf:  C  88,00 kWh/m²a
fGEE:  C  1,01
Immobilie merken Exposé

Ausstattung

DV-Verkabelung, Teeküche


Immobilie anfragen


Ihre persönliche Beratung

AK Sonnen Immobilien GmbH

Albrecht Kospach

AK Sonnen Immobilien GmbH

T +43 676 85 25 65 300

H +43 676 85 25 65 300