**BESICHTIGUNG LOHNT SICH** **LANDHAUSFLÄIR IN DER NÄHE VON WIEN***

Haus - Einfamilienhaus, 2000 Stockerau


Beschreibung der Immobilie

**BESICHTIGUNG LOHNT SICH** **LANDHAUSFLÄIR IN DER NÄHE VON WIEN***

EIN ECHTES LANDHAUS IN DER NÄHE VON WIEN!



In einer schönen und ruhigen Siedlung in Stockerau gelangt dieses voll unterkellertes und teilsaniertes Landhaus mit zwei Hechtgauben zum Verkauf Das Landhaus wurde im Jahre 1995 fertiggestellt und im Laufe der Zeit adaptiert. Die Liegenschaft ist mit jeder menge Extras ausgestattet  - Whirlpool im Garten, bzw. eine Sauna im Kellerbereich,  sind nur einige der vielen Highlights dieses Schmuckstücks.



SAUNA - WHIRLPOOL - 6 ABSTELLPLÄTZE - WEINKELLER



Heutzutage besonders wichtig zu erwähnen ist die Vielfalt der Energiequellen dieser Liegenschaft. Eine Heizung die man einerseits mit Gas oder Festbrennstoff, andererseits aber auch durch einen wunderschönen Wohnzimmerkamin mit Wasserführung betreiben kann. Die Wärmeverteilung erfolgt kombiniert über eine Fußbodenheizung mit zusätzlichen Heizkörpern.



Warmwasserzubereitung kann über die Heizung, aber auch über die Dachsolaranlage erfolgen. Eine am Carport im Garten aufgebaute Fotovoltaikanlage, sorgt zusätzlich für die Energieerzeugung. Das Haus verfügt über eine lange Garage (ca. 22m2) die Platz für zwei Autos bietet, ein Carport im Garten bietet zwei weiteren Autoabstellplätze. Vor der Garage gibt es auch noch zwei weitere Autoabstellmöglichkeiten - somit genügend Abstellplätze auch für zukünftige Feiern.

 



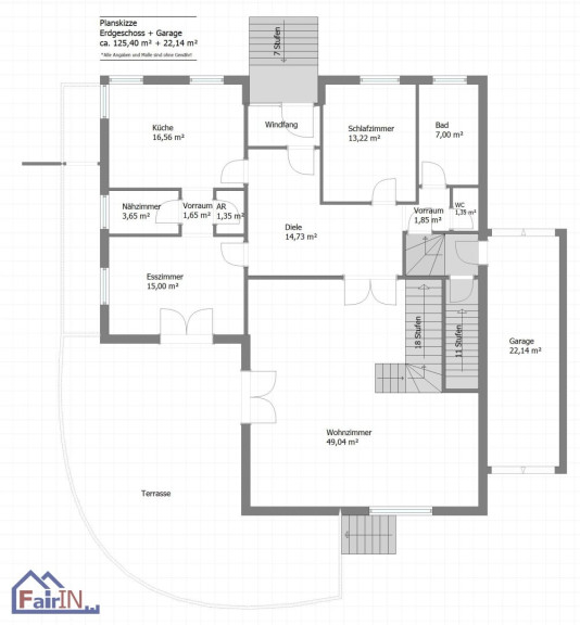
Erdgeschoss:
Das Erdgeschoss unterteilt sich in einen Flur, riesiges, fast 50m² großes Wohnzimmer mit einem traumhaften Kamin, Esszimmer, gehoben eingerichtete riesengroße Küche, Bad, WC, ein Schlafzimmer,  sowie ein Arbeitsraum. Die südlich gerichtete Terrasse (ca. 40 m² groß) ist sowohl vom Wohnzimmer als auch vom Esszimmer begehbar und besticht durch den traumhaften Gartenblick. Alle Räumlichkeiten sind mit hochwertigen Marmorfliesen ausgestattet.





Kellergeschoss:
Das komplette Haus ist unterkellert, was heutzutage eine Seltenheit ist!

Das Kellergeschoss ist hochwertig verfliest und teilweise auch mit einer Heizung ausgestattet. Hier befinden sich neben der Sauna auch weitere Räumlichkeiten die man als Hobbyraum, Fitnessraum, Büro oder vielleicht als ein weiteren Wohnraum nutzen kann. Noch erwähnenswert ist natürlich auch die wunderschöne Weinecke im Keller, welche genügend Platz für Hobbysammler bietet und natürlich noch erweiterbar ist! Ein Heiz- und Maschinenraum sind ebenso praktischerweise im Kellergeschoss untergebracht.





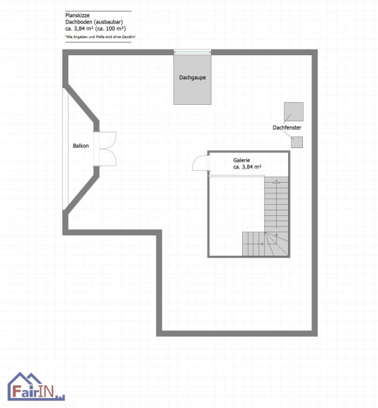
Dachgeschoss:
Der Dachboden befindet sich derzeit im Rohbauzustand - somit könnte man hier noch weitere 80m²- 90m² Wohnfläche schaffen. Weiters gibt es auf dem Dachboden einen wunderschönen Balkon und eine Dachgaupe. 





Infrastruktur und Lage:
Kindergarten - Volkschule West - Hauptschule Ost - HAK (Handelsakademie) -BHAS (Berufshandelsschule) -  Bundesrealgymnasium

Billa - Spar - Penny Markt - Billa Plus - Tabak Trafik - Apotheke

Tennisanlage Doleschal - Kunsteisbahn Stockerau - Erholungszentrum Stockerau





Öffentliche Verkehrsmittel und Anbindung:
S-Bahn/Bahnhof Stockerau (ca. 1,5km Entfernung) - R, R 3, REX, REX 3, S3, S4

Autobahn A22 Anschluss (ca. 2km) - Richtung Tulln / Richtung Wien

Stadtverkehr Stockerau Bus 104,105, 140, 893





Vereinbaren Sie noch heute einen Besichtugungstermin für diese Traumimmobilie!!!





Bei weiteren Fragen stehe ich Ihnen selbstverständlich unter 0660/ 816 40 52 jederzeit gerne zur Verfügung. 



Ihr persönlicher Ansprechpartner:
Herr Frano Kaurinovic

Mobil: 0660 / 8164052
E-Mail: kaurinovic@fairin.at

E-Mail: office@fairin.at

 



BESUCHEN SIE UNSERE WEBSEITE WWW.FAIRIN.AT VIELLEICHT FINDEN SICH WEITERE INTERESSANTE OBJEKTE FÜR SIE.




Der Vermittler ist als Doppelmakler tätig.

Infrastruktur / Entfernungen

Gesundheit
Arzt <1.000m
Apotheke <1.000m
Krankenhaus <2.000m
Klinik <8.500m

Kinder & Schulen
Kindergarten <500m
Schule <1.500m
Universität <9.500m

Nahversorgung
Supermarkt <500m
Bäckerei <1.000m

Sonstige
Bank <1.500m
Geldautomat <1.000m
Post <1.500m
Polizei <1.500m

Verkehr
Bus <500m
Autobahnanschluss <2.000m
Bahnhof <1.500m
Flughafen <3.500m

Angaben Entfernung Luftlinie / Quelle: OpenStreetMap

Eckdaten Objektnr. 14011

Art: Haus - Einfamilienhaus
Land: Österreich
Baujahr: 1995
Zustand: Gepflegt
Kaufpreis: 599.000,00
Provision: 3% des Kaufpreises zzgl. 20% USt.
Betriebskosten: 120,00 €
Wohnfläche: 125,40 m²
Grundstücksfl.: 800,00 m²
Zimmer: 3,50
Bäder: 1
WC: 1
Balkone: 1
Stellplätze: 4
Keller: 139,23 m²
Heizwärmebedarf:  D  127,20 kWh/m²a
fGEE:  C  1,40
Immobilie merken Exposé

Ausstattung

Dielenboden, Fliesen, Gas, Solarenergie, Zentralheizung, Fußbodenheizung, Kamin, Einbauküche, Bad mit Fenster, Badewanne, Dusche, Carport, Garage, Parkplatz, Sauna


Immobilie anfragen


Ihre persönliche Beratung

Frano Kaurinovic

FAIRIN OG

T +43 1 95 27 513

H +43 660 816 40 52

F +43 1 95 30 500