Ein exklusives Domizil auf höchstem Niveau: Großzügige Rundum-Loggia und atemberaubender Weitblick

Wohnung , 1220 Wien , Donau-City-Straße


Beschreibung der Immobilie

Ein exklusives Domizil auf höchstem Niveau: Großzügige Rundum-Loggia und atemberaubender Weitblick

Wohnen in Wiens neuem Landmark – Ein Statement für Ästhetik, Freiheit und Fernblick.



Vergessen Sie den Alltag und ziehen Sie in eine neue Dimension des Wohnens. Im DC 2, entworfen vom französischen Star-Architekten Dominique Perrault, erwartet Sie ab Herbst 2026 urbaner Lifestyle auf höchstem Niveau. Ab einer Gebäudehöhe von 102 Metern – dort, wo die Stadt leise wird und der Blick weit – entstehen 314 exklusive Mietwohnungen, die modernes Design mit maximaler Lebensqualität verbinden. - Ihr Logenplatz hoch über der Donau



Zwischen den Stockwerken 32 und 52 definieren wir „Zuhause“ neu. Ob für Singles, Paare oder anspruchsvolle Kosmopoliten – der DC 2 bietet den idealen Rückzugsort.

Panoramablick inklusive: Jede einzelne Wohnung verfügt über eine umlaufende Loggia. Erweitern Sie Ihren Wohnraum nach draußen und genießen Sie spektakuläre Sonnenuntergänge über der Donau und der Wiener Skyline.

Architektur, die atmet: Die ikonische Fassade mit integrierten Photovoltaik-Elementen ist nicht nur ein ökologisches Vorzeigeprojekt, sondern verleiht Ihrem Zuhause einen unverwechselbaren, modernen Charakter.



Warum der DC 2 Ihr neues Zuhause ist:Warum der DC 2 Ihr neues Zuhause ist:

Leben mit Doorman:
Für maximale Sicherheit und das gute Gefühl, immer willkommen zu sein.

Pionier-Status: Wohnen Sie im ersten Hochhaus Österreichs mit einer zukunftsweisenden Photovoltaik-Fassade.

Exklusivität: 175 Meter Höhe machen den DC 2 zum höchsten Wohnturm des Landes.

Das Leben im DC 2 findet nicht nur in den eigenen vier Wänden statt:

Fitness: Modernste Trainingsmöglichkeiten direkt im Haus ersparen den Weg ins Studio.

Probeboxen/ Musikboxen: Schalldichte Räume für Musiker und Kreative sowie für ungestörte Telefonate oder fokussiertes Arbeiten.

Cook and Chill: Eine großzügige Gemeinschaftsküche mit Lounge-Bereich

Privates Kino im Haus: Ideal für gemütliche Filmabende oder eigene Vorführungen

Co-Working Spaces: Buchen Sie sich bequem bei einem Co-Working Anbieter in den Bürostockwerken ein

Spielraum: Auch die Kleinen kommen voll auf Ihre Kosten.



Lage
Wohnen im DC 2 bedeutet, alle Annehmlichkeiten der Donau City direkt vor der Haustür zu haben. Freizeit direkt am Wasser: Die Neue Donau und der Donaupark liegen Ihnen für Sport und Erholung buchstäblich zu Füßen.

Für eine optimale Work-Life-Balance sorgt die lückenlose Nahversorgung in der Donau City mit vielfältiger Gastronomie in unmittelbarer Nachbarschaft. Mit dem DC Market entsteht im vorgelagerten DC Waterline ein attraktiver Marktplatz mit Gastronomie und einem breitgefächertem Angebot von morgens bis abends. Der offene Marktbereich mit Gastronomie- und Terrassenflächen direkt am Wasser sorgt für stimmungsvolles Ambiente. 

Auch eine Kindergarten- und Schulanlage sind Teil des neuen Quartiers.



Infrastruktur
Nur ein Katzensprung zum Flughafen Schwechat,

mit dem U-Bahn Anschluss U1 Donauinsel in nur 10 Minuten in die Wiener City und

nur wenige Minuten zur nächsten großen Shopping Mall, dem Donauzentrum

ein bilingualer Kindergarten, Volksschule und Gymnasium befinden sich in der Nachbarschaft

und fürs tägliche Leben gibt es alle wichtigen Nahversorger, attraktive Gastronomie sowie zahlreiche Ärzte in allernächster Umgebung

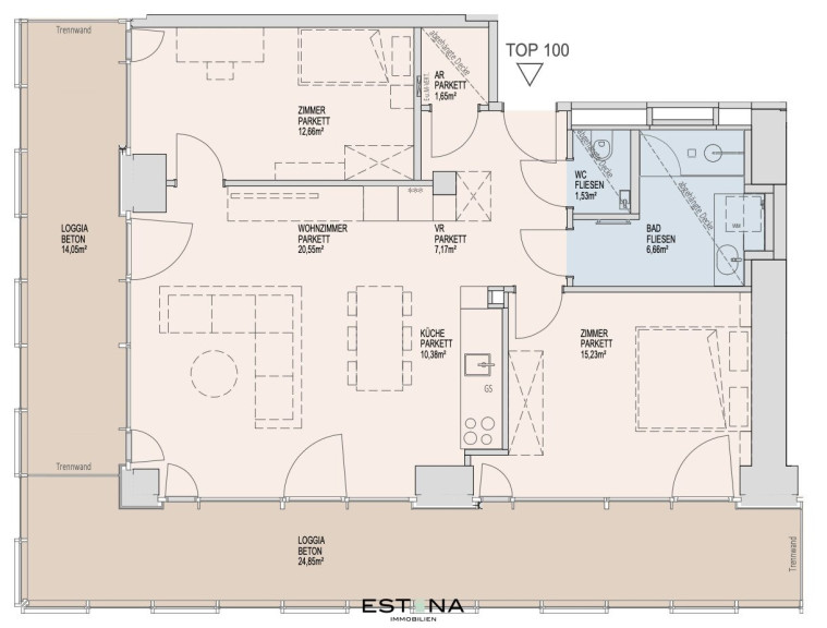
Raumaufteilung:
- Vorraum

-geräumige Wohnküche mit Zugang zur Loggia

- 2 Schlafzimmer mit Zugang zur Loggia

- Badezimmer mit Dusche, Waschbecken und Waschmaschinenanschluss

- Toilette mit Handwaschbecken

- Abstellraum

- Loggia

- zusätzlicher Abstellraum am Gang



Kosten:
Miete: € 2.600,00 inkl. BK und 10% USt.

Kaution: € 7.800,00



Kontakt:
Bei Fragen oder zur Vereinbarung eines Besichtigungstermins wenden Sie sich bitte an Frau Johanna Obkircher unter obkircher@estina.at oder mobil unter 0676 316 37 08. 


Der Immobilienmakler erklärt, dass er – entgegen dem in der Immobilienwirtschaft üblichen Geschäftsgebrauch des Doppelmaklers – einseitig nur für den Vermieter tätig ist.

Eckdaten Objektnr. 26869

Art: Wohnung
Land: Österreich
Baujahr: 2025
Zustand: Erstbezug
Alter: Neubau
Gesamtmiete: 2.600,00
Kaltmiete (netto): 2.039,87 €
Kaltmiete: 2.363,63 €
Provision: Gemäß Erstauftraggeberprinzip bezahlt der Abgeber die Provision.
Betriebskosten: 323,76 €
MwSt Gesamt: 236,37 €
Wohnfläche: 75,88 m²
Zimmer: 3
Bäder: 1
WC: 1
Heizwärmebedarf:  A  22,86 kWh/m²a
fGEE:  A  0,84
Immobilie merken Exposé

Ausstattung

Parkett, Fliesen, Einbauküche, Personenaufzug, Nordbalkon, Dusche


Immobilie anfragen


Ihre persönliche Beratung

ESTINA Immobilien GmbH

Johanna Obkircher

WH2 Immobilienverwertungs GmbH

H +43 676 316 37 08