U3 STUBENTOR, PARKRING, 131 m2 Altbaubüro oder Kanzlei, 6 Zimmer, Küche, 4. Liftstock, Stadtpark-Nähe

Büro / Praxis , 1010 Wien , Parkring


PARKRING BEIM STADTPARK mit bester Infrastruktur des 1. Bezirks (U3 Stubentor, Parkring, Wollzeile, Stadtpark, Zedlitzgasse, Cobdengasse, Stubenring, Wien-Mitte-Landstraße) und sehr guten Verkehrsverbindungen wie die U3-Station Stubentor, U3/U4-Stationen Wien-Mitte-Landstraße sowie die Linien O, 1, 2, 3A, 74A sind in unmittelbarer Nähe. Der Bahnhof Wien-Mitte-Landstraße mit sämtlichen S-Bahnen und Regionalszügen ist ebenso in wenigen Minuten erreichbar.

Beschreibung der Immobilie

U3 STUBENTOR, PARKRING, 131 m2 Altbaubüro oder Kanzlei, 6 Zimmer, Küche, 4. Liftstock, Stadtpark-Nähe

AM PARKRING IN DER NÄHE DES STADTPARKS GELANGT DIESES KLIMATISIERTE 130,89 m2 ALTBAUBÜRO ODER KANZLEI - PRAXIS IM 4. LIFTGESCHOSS ZUR BEFRISTETEN VERMIETUNG!



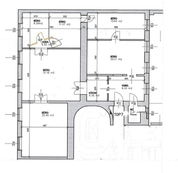
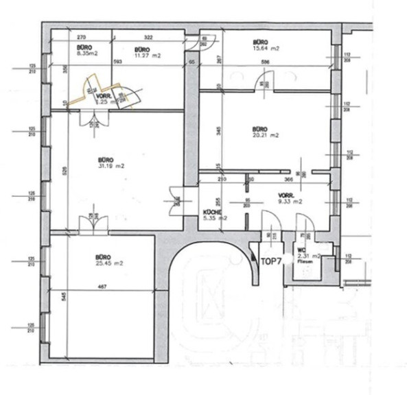
Vorzimmer, 5 Büros, Küche, WC



Keine Vermietung an unecht von der Umsatzsteuer befreite Unternehmen möglich.


Ausstattung:


+ teilweise Klimaanlage

+ Küche mit Einbaugeräte

+ WC mit Waschgelegenheit

+ Teppichböden, Fliesen in den Nassbereichen

+ Holztüren, teilweise Flügeltüren

+ EDV-Verkabelungen, Kabelkanäle Oberputz

+ Telekabelfernsehanschluss, Gegensprechanlage

+ Gasetagenheizung

+ HWB 92,80 kWh/m2a



Lage



PARKRING BEIM STADTPARK mit bester Infrastruktur des 1. Bezirks (U3 Stubentor, Parkring, Wollzeile, Stadtpark, Zedlitzgasse, Cobdengasse, Stubenring, Wien-Mitte-Landstraße) und sehr guten Verkehrsverbindungen wie die U3-Station Stubentor, U3/U4-Stationen Wien-Mitte-Landstraße sowie die Linien O, 1, 2, 3A, 74A sind in unmittelbarer Nähe. Der Bahnhof Wien-Mitte-Landstraße mit sämtlichen S-Bahnen und Regionalszügen ist ebenso in wenigen Minuten erreichbar.



Sonstiges



Gesamtmiete: € 2.465,63 inkl. Betriebskosten, Aufzug, 20 % MwSt.

Heizung und Strom werden separat vom jeweiligen Anbieter vorgeschrieben.

 

Kaution: € 7.400,00 per Überweisung

3 BMM Vermittlungsprovision: € 7.396,88 inkl. 20 % MwSt.

Vergebührung beim Finanzamt, Vertragserrichtungsgebühr bei der zuständigen Hausverwaltung

auf 10 Jahre befristete Hauptmiete, ablösefrei, Bezug nach Vereinbarung!



1 Jahr Kündigungsverzicht, 3 Monate Kündigungsfrist



Anbindung öffentlicher Verkehr



U3-Station Stubentor, U3/U4-Stationen Wien-Mitte-Landstraße sowie die Linien O, 1, 2, 3A, 74A sind in unmittelbarer Nähe



Ansprechpartner: ALEXANDER ROS

Mobil-Tel.: +43-664-466 52 02

E-Mail: alexander.ros@ros-real.at 

Infrastruktur / Entfernungen

Gesundheit
Arzt <250m
Apotheke <500m
Klinik <500m
Krankenhaus <750m

Kinder & Schulen
Schule <250m
Kindergarten <500m
Universität <250m
Höhere Schule <750m

Nahversorgung
Supermarkt <250m
Bäckerei <250m
Einkaufszentrum <500m

Sonstige
Geldautomat <500m
Bank <500m
Post <250m
Polizei <500m

Verkehr
Bus <250m
U-Bahn <250m
Straßenbahn <250m
Bahnhof <250m
Autobahnanschluss <3.000m

Angaben Entfernung Luftlinie / Quelle: OpenStreetMap

Eckdaten Objektnr. 2428

Art: Büro / Praxis
Land: Österreich
Alter: Altbau
Kaltmiete (netto): 1.743,09 €
Kaltmiete: 2.054,69 €
Provision: 3 Bruttomonatsmieten zzgl. 20% USt.
Betriebskosten: 284,90 €
MwSt Gesamt: 410,94 €
Nutzfläche: 130,89 m²
Zimmer: 6
WC: 1
Heizwärmebedarf:  D  92,80 kWh/m²a
fGEE:  E  2,63
Immobilie merken Exposé

Ausstattung

Fliesen, Teppichboden, Gas, Etagenheizung, Einbauküche, Personenaufzug, DV-Verkabelung, Kabel/Satelliten-TV


Immobilie anfragen


Ihre persönliche Beratung

ROS REALITÄTEN OG

Alexander Ros

ROS REALITÄTEN VERMITTLUNG OG - TESTACCOUNT

T +43 1 526 70 60 - 12

H +43 664 466 52 02

F +43 1 526 70 60 33