Lebenswertes Oberalm
Wohnung
,
5411
Oberalm
,
Haslaustraße
Beschreibung der Immobilie
Lebenswertes Oberalm
Zur Vermietung gelangt in der stark nachgefragten Tennengauer Gemeinde Oberalm, Ortsteil Kahlsperg, eine attraktive und gut geschnittene Mietwohnung.
Die bestens erschlossene und ruhige Wohngegend zeichnet sich durch eine hervorragende Infrastruktur sowie gute Anbindung an das öffentliche Verkehrsnetz aus. Oberalm kann von der Stadt Salzburg und Hallein mit der S-Bahn (S3) und Regionalbuslinie 160 schnell und einfach erreicht werden. Die Autobahnanschlüsse Hallein und Puch-Urstein liegt ca. 7-8 Fahrminuten entfernt.
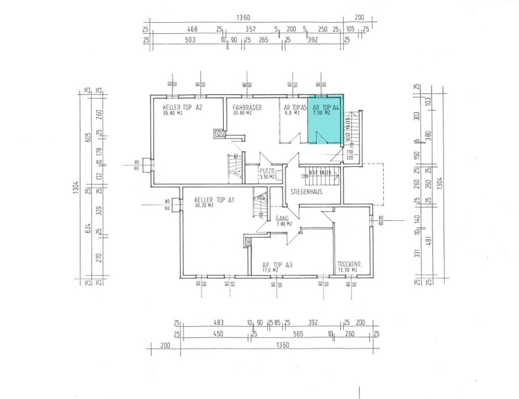
Die Wohneinheit weist eine Wohnnutzfläche von knapp 74 m² auf und befindet sich im 2. Obergeschoss eines kleineren Wohnhauses, welches im Jahr 1996 errichtet wurde.
Die Wohnung unterteilt sich in Vorraum, Abstellraum, separate Toilette, Badezimmer mit Wanne und Waschbecken, 2 Zimmer, getrennte Küche, großer Wohnraum mit Ausgang zum großzügigen, südwestlich gelegenen Balkon.
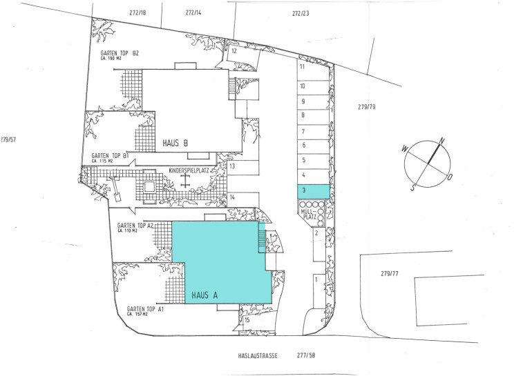
Im Mietzins bereits inkludiert ist ein sperrbares Kellerabteil und ein PKW-Stellplatz im Freien.
Der monatliche Mietzins beträgt € 1.185,- zuzüglich € 340,- für die monatliche Akontierung der Betriebs- und Heizkosten. Der monatliche Gesamtmietzins beträgt somit € 1.525,-.
Als Kautionsbetrag zu hinterlegen sind € 4.575,-.
Die Wohnung steht ab sofort für eine Neuanmietung zur Verfügung.
Von Seiten des Vermieters ist eine langfristige Mietdauer erwünscht. Der Mietvertrag wird jedoch bei Erstabschluss auf die Dauer von 3 Jahren begrenzt.
Bitte beachten Sie, dass Hunde und Katzen nicht erlaubt sind. Nikotingenuss im Mietgegenstand ist nicht erwünscht.
Gerne stehen wir Ihnen für nähere Auskünfte oder zur Vereinbarung eines Besichtigungstermins zur Verfügung.
Der Immobilienmakler erklärt, dass er – entgegen dem in der Immobilienwirtschaft üblichen Geschäftsgebrauch des Doppelmaklers – einseitig nur für den Vermieter tätig ist.
Infrastruktur / Entfernungen
Gesundheit
Arzt <1.250m
Apotheke <1.250m
Klinik <5.000m
Krankenhaus <3.000m
Kinder & Schulen
Schule <1.000m
Kindergarten <1.250m
Universität <2.250m
Höhere Schule <2.250m
Nahversorgung
Supermarkt <750m
Bäckerei <1.250m
Einkaufszentrum <9.250m
Sonstige
Bank <1.250m
Geldautomat <1.250m
Post <1.250m
Polizei <2.500m
Verkehr
Bus <250m
Autobahnanschluss <2.500m
Bahnhof <750m
Angaben Entfernung Luftlinie / Quelle: OpenStreetMap
Eckdaten Objektnr. 549/701
| Art: | Wohnung |
| Land: | Österreich |
| Baujahr: | 1996 |
| Zustand: | Gepflegt |
| Alter: | Neubau |
| Gesamtmiete: | 1.525,00 € |
| Kaltmiete (netto): | 1.185,00 € |
| Kaltmiete: | 1.525,00 € |
| Provision: | Gemäß Erstauftraggeberprinzip bezahlt der Abgeber die Provision. |
| Betriebskosten: | 340,00 € |
| Wohnfläche: | 74,00 m² |
| Zimmer: | 3 |
| Bäder: | 1 |
| WC: | 1 |
| Balkone: | 1 |
| Stellplätze: | 1 |
| Keller: | 7,50 m² |
| Heizwärmebedarf: | C 77,00 kWh/m²a |
| fGEE: | C 1,29 |
Ausstattung
Fliesen, Kunststoffboden, Parkett, Gas, Zentralheizung, Einbauküche, Bad mit Fenster, Badewanne, Kabel/Satelliten-TV
Ihre persönliche Beratung
Dieser Makler ist ein offizielles Mitglied des IR – ir.at Mehr Erfahren

