Geschäftslokal in exklusiver Innenstadtlage

Einzelhandel , 1010 Wien,Innere Stadt


In einem repräsentativer Gründerzeithaus in der Seilergasse 3. Die Seilergasse ist die 1. Parallelgasse zur Kärntnerstraße mit Zugang vom Goldenen U (Kärntnerstraße-Stock-im-Eisen-Platz-Graben-Kohlmarkt) bzw. Graben zum Neuen Markt mit BIP-Tiefgarage sowie via Kärntner-Durchgang zur Kärntnerstraße, mit hoher Passantenfrequenz entlang der Häuser mit ungeraden Hausnummern. Das Lokal liegt im zweiten Haus vom Graben kommend Richtung Neuer Markt. Beste Erreichbarkeit durch unmittelbare Nähe zur U-1 Station Stephansplatz Aufgang Graben.

Beschreibung der Immobilie

Geschäftslokal in exklusiver Innenstadtlage

Ablösefreies topsaniertes Geschäftslokal in exklusiver Innenstadtlage.



Die unmittelbare Nähe zu Graben, Stephansplatz und Kärntnerstraße  bedeuten hohe Passantenfrequenz. Das Steckschild des Lokales ist von Graben aus zu sehen!



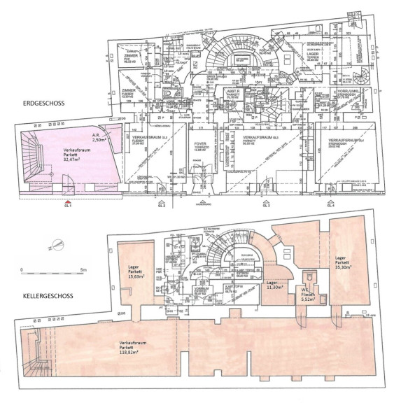
Über die Auslage und den Verkaufsraum im Erdgeschoß ist beste Sichtbarkeit gegeben. Im Untergeschoß stehen grozügige attraktive Flächen für Warenpräsentation und Lager zur Verfügung.



Das Untergeschoß ist über eine Stiege zugänglich. (nicht barrierefrei)



Lage im Haus: Erd- und Untergeschoss

Widmung: Geschäftslokal Nutzfläche EG 34,97 + UG 194,50m² = 229,47m²

Anordnung: EG Empfangsraum und Ausstellungsfläche mit großem Portal

                   UG Verkaufsraum mit Lagerflächen, WC+Vorraum

Ausstattung: vollsaniert, neue Heiz- und Klimaanlage, Beleuchtung



Heizung mittels Gaskombitherme.





Der Energieausweis ist in Vorbereitung. Die angegebene Energiekennzahl ist aus einem anderen Objekt in der Liegenschaft aber nicht explizit auf das Lokal gerechnet.


Wir weisen darauf hin, dass zwischen dem Vermittler und dem zu vermittelnden Dritten ein familiäres oder wirtschaftliches Naheverhältnis besteht.


Der Vermittler ist als Doppelmakler tätig.

Infrastruktur / Entfernungen

Gesundheit
Arzt <500m
Apotheke <500m
Klinik <1.000m
Krankenhaus <1.500m

Kinder & Schulen
Schule <500m
Kindergarten <1.000m
Universität <500m
Höhere Schule <500m

Nahversorgung
Supermarkt <500m
Bäckerei <500m
Einkaufszentrum <1.000m

Sonstige
Geldautomat <500m
Bank <500m
Post <500m
Polizei <500m

Verkehr
Bus <500m
U-Bahn <500m
Straßenbahn <1.000m
Bahnhof <500m
Autobahnanschluss <3.500m

Angaben Entfernung Luftlinie / Quelle: OpenStreetMap

Eckdaten Objektnr. 1858/10264

Art: Einzelhandel
Land: Österreich
Kaltmiete (netto): 18.000,00 €
Kaltmiete: 18.771,81 €
Provision: 67.578,52 € inkl. 20% USt.
Betriebskosten: 771,81 €
MwSt Gesamt: 3.620,00 €
Nutzfläche: 229,47 m²
Heizwärmebedarf:  E  187,18 kWh/m²a
fGEE: 3,37
Immobilie merken Exposé

Immobilie anfragen


Ihre persönliche Beratung

Netmakler – Andreas Theiner Immobilien Vermittlung

Andreas Theiner

Amadeus Immobilien GmbH

H +43 699 / 1010 4906