WOHNPROJEKT NEUHUMMERSDORF! 8_WOHNUNGEN. 8_GÄRTEN.

Wohnung , 8490 Bad Radkersburg , Neuhummersdorf Weg 42


Die Liegenschaft liegt idyllisch in Neuhummersdorf, einem ruhigen Ortsteil von Bad Radkersburg, und verbindet naturnahes Wohnen mit hervorragender Alltagsanbindung. Umgeben von viel Grün und entspannter Atmosphäre genießen Sie hier eine hohe Lebensqualität fernab vom Trubel. Gleichzeitig erreichen Sie Einkaufsmöglichkeiten, Cafés und alle wichtigen Einrichtungen des täglichen Bedarfs in wenigen Minuten. Das charmante Zentrum von Bad Radkersburg mit seiner historischen Altstadt, vielfältiger Gastronomie sowie Ärzten, Schulen und Freizeitangeboten ist schnell erreichbar und rundet die attraktive Lage perfekt ab.

Beschreibung der Immobilie

WOHNPROJEKT NEUHUMMERSDORF! 8_WOHNUNGEN. 8_GÄRTEN.

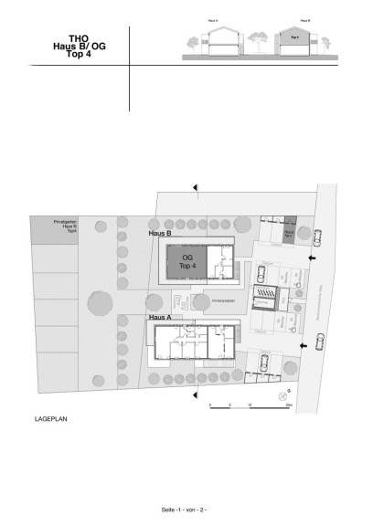
PROJEKT „Hofgärten Neuhummersdorf“ – Modern wohnen mit Lebensqualität!



In attraktiver Lage entsteht ein kleines, feines Wohnprojekt mit nur 8 hochwertig ausgeführten Wohneinheiten. Die moderne Architektur, durchdachte Grundrisse und private Freiflächen schaffen ein ideales Zuhause für alle, die Ruhe, Komfort und Qualität schätzen.



Großzügige Wohnbereiche, helle Räume und funktionale Raumaufteilungen sorgen für ein angenehmes Wohngefühl. Jede Einheit verfügt über einen eigenen Außenbereich sowie ein Carport – perfekt abgestimmt auf die Anforderungen des modernen Wohnens.



ECKDATEN



Obergeschosswohnung Haus B TOP 4:3-Zimmer-Wohnung mit Terrasse, Privatgarten und Carport mit Abstellbox



KOSTEN:



  • Verkaufspreis Wohnung: 359.800,00 €
  • Verkaufspreis Carport: 20.000,00 €
  • Verkaufspreis Privatgarten: 6.950,00 €


HIGHLIGHTS:



  • Kleine, exklusive Wohnanlage mit nur 8 Einheiten
  • Moderne, zeitlose Architektur
  • Durchdachte Grundrisse & optimale Raumaufteilung
  • Helle Wohnräume durch große Fensterflächen
  • Terrasse & Garten und zusätzlicher eigener Privatgarten
  • Überdachter Außenbereich
  • Carport inklusive zusätzlichem Stauraum
  • Ruhige Wohnlage mit hoher Lebensqualität


Voraussichtlicher Baustart: 2026 



VERKAUF & BERATUNG:



Sehr gerne stehe ich Ihnen für Rückfragen zur Verfügung!



Ich freue mich auf Ihre Anfrage!



Gertrud Sablatnig, MBA



Staatlich konzessionierte Immobilienmaklerin

Tel: +43/664 88 14 04 85
E-Mail: gertrud@immobilien-sablatnig.at



Alle Informationen beruhen auf Angaben des Abgebers und sind ohne Gewähr. Wir dürfen darauf hinweisen, dass wir als Doppelmakler tätig sind und ein wirtschaftliches Nahverhältnis zu unserem Auftraggeber besteht. Dieses ergibt sich aus regelmäßiger geschäftlicher Verbindung. Weiters möchten wir Sie informieren, dass ein Provisionsanspruch erst nach Unterzeichnung eines Kaufanbots besteht. Eine Besichtigung dieser schönen Liegenschaft ist selbstverständlich für Sie unverbindlich und kostenlos.



WICHTIGER gesetzlicher HINWEIS:
Wir bitten um Ihr Verständnis, dass wir aufgrund einer neuen EU-Richtlinie (§11FAGG) Unterlagen und Besichtigungstermine für unsere Immobilien erst dann zusenden und vereinbaren können, wenn Sie uns bestätigen, dass Sie über Ihre Rücktrittsrechte aufgeklärt wurden und unser sofortiges Tätigwerden wünschen.



Des weiteren ersuchen wir um Verständnis, dass wir gemäß österreichischer Gewerbeordnung, sowie unserer Nachweispflicht gegenüber dem Auftraggeber nur Anfragen mit vollständigem Namen, Anschrift, Telefonnummer und Mail Adresse bearbeiten bzw. detaillierte Unterlagen weiterleiten können.



Wir bitten um Ihr Verständnis, vielen Dank!


Wir weisen darauf hin, dass zwischen dem Vermittler und dem zu vermittelnden Dritten ein familiäres oder wirtschaftliches Naheverhältnis besteht.


Der Vermittler ist als Doppelmakler tätig.

Infrastruktur / Entfernungen

Gesundheit
Arzt <1.300m
Apotheke <1.775m
Klinik <1.600m
Krankenhaus <1.325m

Kinder & Schulen
Schule <1.700m
Kindergarten <1.925m

Nahversorgung
Supermarkt <1.350m
Bäckerei <3.075m
Einkaufszentrum <1.500m

Sonstige
Geldautomat <1.350m
Bank <1.350m
Post <1.800m
Polizei <1.550m

Verkehr
Bus <400m
Bahnhof <625m

Angaben Entfernung Luftlinie / Quelle: OpenStreetMap

Eckdaten Objektnr. 1757/502

Art: Wohnung
Land: Österreich
Baujahr: 2026
Zustand: Erstbezug
Alter: Neubau
Kaufpreis: 386.750,00
Provision: 3% des Kaufpreises zzgl. 20% USt.
Wohnfläche: 72,66 m²
Nutzfläche: 72,66 m²
Zimmer: 3
Bäder: 1
WC: 1
Terrassen: 1
Stellplätze: 1
Garten: 86,48 m²
Immobilie merken Exposé

Ausstattung

Parkett, Fliesen, Fußbodenheizung, Bad mit Fenster, Dusche, Carport


Immobilie anfragen


Ihre persönliche Beratung

Immobilien Sablatnig

Gertrud Sablatnig MBA

Immobilien Sablatnig

T +43 664 881 404 85