Schöner Wohnen - Schulstraße / St. Johann: 1. OG / TOP 3

Wohnung , 9431 St. Stefan , Schulstraße


absolut ruhig, großer Balkon/Terrasse, Grünblick, Grünlage, Orts-/Stadtrand, sonnig, uneinsehbar

Beschreibung der Immobilie

Schöner Wohnen - Schulstraße / St. Johann: 1. OG / TOP 3

In der Schulstraße in St. Johann entsteht eine kleine, aber sehr feine Wohnanlage mit nur 4 Wohneinheiten!
Sie überzeugt außerdem durch die Nähe zur Stadt Wolfsberg, dei in wenigen Autominuten erreichbar ist.
Jede Einheit verfügt über einen Balkon, bzw. eine schöne Terrasse mit Blick auf die Saualpe und die Karawanken.
Das Objekt bietet auch großzügige Freiflächen und fügt sich in ihrer Gesamtheit ausgezeichnet in die ländliche Struktur ein.
Zu jeder Wohnung gehört 1 Tiefgaragenplatz, ein weiterer wäre noch käuflich zu erwerben.
Beheizt wird das Haus mittels zentraler Wärmepumpe, die Wärmeabgabe erfolgt durch die Fußbodenheizung.

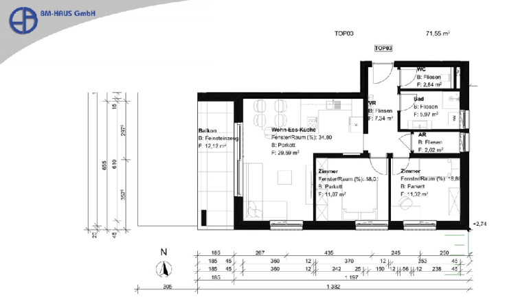
Die TOP 3 im 1. OG besteht aus einem Vorraum, einen Wohn- Esszimmer mit Küche, zwei Schlafzimmern, Bad, WC und einem Abstellraum. Zur Immobilie gehören weiters ein Grünflächenanteil im Eigentum von ca. 92 m², ein Balkon mit 12 m², ein Kellerabteil und ein TG-Platz.

Link Projekt:
https://bimx.graphisoft.com/model/e84ea738-3689-40b2-8ce9-4ebe9f6481b1

Kaufnebenkosten:
• 3,5% Grunderwerbssteuer
• Kaufvertragskosten


Hinweis gemäß Energieausweisvorlagegesetz: Ein Energieausweis wurde vom Eigentümer bzw. Verkäufer, nach unserer Aufklärung über die ab 1.12.2012 geltende generelle Vorlagepflicht, sowie Aufforderung zu seiner Erstellung noch nicht vorgelegt. Daher gilt zumindest eine dem Alter und der Art des Gebäudes entsprechende Gesamtenergieeffizienz als vereinbart. Wir übernehmen keinerlei Gewähr oder Haftung für die tatsächliche Energieeffizienz der angebotenen Immobilie.

Für genauere Informationen stehen wir Ihnen gerne zur Verfügung.
Bitte haben Sie Verständnis, dass wir aufgrund der Nachweispflicht gegenüber dem Eigentümer nur Anfragen mit vollständiger Anschrift und Telefonnummer beantworten können!

Eckdaten Objektnr. 910/00427

Art: Wohnung
Land: Österreich
Baujahr: 2026
Alter: Neubau
Kaufpreis: 334.897,00
Provision: provisionsfrei
Wohnfläche: 71,55 m²
Zimmer: 3
Bäder: 1
WC: 1
Balkone: 1
Garten: 92,30 m²
Heizwärmebedarf:  B  37,00 kWh/m²a
fGEE:  A+  0,64
Immobilie merken Exposé

Ausstattung

Parkett, Zentralheizung, Personenaufzug


Immobilie anfragen


Ihre persönliche Beratung

Karl Kostmann

T 0664/5423830

H 0664/5423830

F 04352/37295

Dieser Makler ist ein offizielles Mitglied des IR – ir.at Mehr Erfahren


Makler für Immobilien - KIB GmbH

Wir sind ein Immobilienunternehmen in Wolfsberg und wir bieten Ihnen Immobilien aller Art an - mit Schwerpunkt auf Wohnungen, Häuser und Grundstücken.