!!Exklusive!! Stilaltbauwohnung in begehrter Döblinger Cottage-Lage.

Wohnung , 1190 Wien,Döbling


Die Lage überzeugt durch ihre ausgezeichnete Infrastruktur sowie die Nähe zu öffentlichen Verkehrsmitteln, Nahversorgung, renommierten Schulen und dem Türkenschanzpark.

Beschreibung der Immobilie

!!Exklusive!! Stilaltbauwohnung in begehrter Döblinger Cottage-Lage.

!!Exklusive!!  Stilaltbauwohnung in begehrter Döblinger Cottage-Lage.


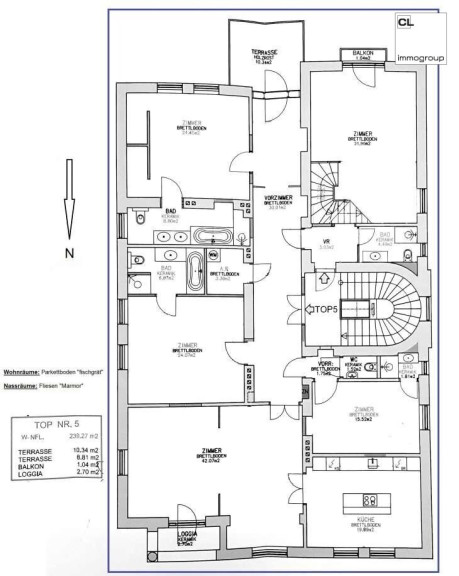
Diese großzügige 7-Zimmer-Wohnung mit ca. 239 m² Wohnfläche vereint klassischen Altbaucharme mit hochwertigem Wohnkomfort und bietet ein repräsentatives Wohnambiente auf höchstem Niveau. Stilprägende Elemente wie Fischgrätparkett und elegante Flügeltüren unterstreichen den besonderen Charakter der Immobilie.



Die durchdachte Raumaufteilung umfasst einen weitläufigen Wohn- und Essbereich mit angeschlossener Küche und schafft ideale Voraussetzungen für stilvolles Wohnen und geselliges Beisammensein.



Zwei separate Eingänge eröffnen vielseitige Nutzungsmöglichkeiten, etwa für Homeoffice, Gäste- oder Personalbereich.



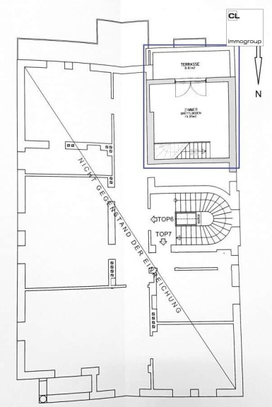
Ein besonderes Highlight ist der ausgebaute Galeriebereich im Dachgeschoss mit vorgelagerter Terrasse und attraktivem Weitblick. Ergänzt wird das Angebot durch zwei südseitige Terrassen in ruhiger Innenhoflage.



Die Lage überzeugt durch ihre ausgezeichnete Infrastruktur sowie die Nähe zu öffentlichen Verkehrsmitteln, Nahversorgung, renommierten Schulen und dem Türkenschanzpark.



Eckdaten:

— Wohnfläche: ca. 239,27 m²

— Zimmer: 7 inkl. großzügiger Wohnküche

— Balkon: ca. 1,04 m²

— Loggia: ca. 2,7 m²

— Terrassen: ca. 10,34 m²

— Terrassen: ca. 8,81 m²

 



Kaufpreis: € 3.150.000

Provision:

3 % des Kaufpreises zzgl. 20 % USt.



Gerne übermitteln wir Ihnen auf Anfrage weitere Unterlagen und stehen für die Vereinbarung eines Besichtigungstermins jederzeit zur Verfügung.



office.wien@cl-immogroup.at



Tel.: +43 677 6375 4076



Paul Danyliuk



Eckdaten Objektnr. 16414

Art: Wohnung
Land: Österreich
Baujahr: 1900
Kaufpreis: 3.150.000,00
Wohnfläche: 239,27 m²
Zimmer: 7
Bäder: 4
WC: 4
Keller: 22,63 m²
Heizwärmebedarf:  D  125,10 kWh/m²a
fGEE:  D  2,22
Immobilie merken Exposé

Ausstattung

Fliesen, Parkett, Etagenheizung, Personenaufzug, Nordbalkon, Südbalkon, Bad mit Fenster, Badewanne, Dusche


Immobilie anfragen


Ihre persönliche Beratung

CL-Team Wien

CL-immogroup GmbH

T +436607793151