Charmante 2-Zimmer-Wohnung mit Balkon in Ruhelage | Nähe Auhof Center

Wohnung , 1140 Wien


Beschreibung der Immobilie

Charmante 2-Zimmer-Wohnung mit Balkon in Ruhelage | Nähe Auhof Center

Zum Verkauf steht diese gut geschnittene helle 2-Zimmer-Wohnung im 1. Stock (ohne Lift) in ruhiger Grünlage – und dennoch nur 5 Gehminuten vom Auhof Center entfernt.



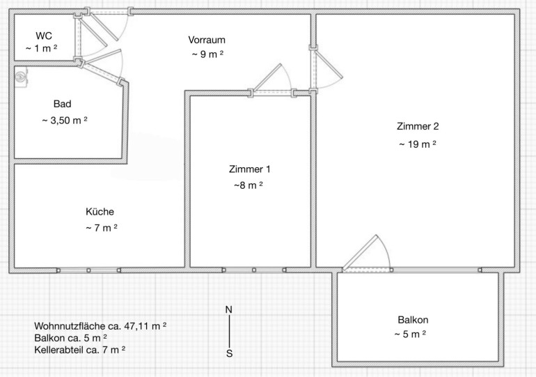
Die Wohnung verfügt über ein Wohn-/Esszimmer mit Zugang zum Balkon mit Blick ins Grüne, wo Sie bei Vogelgezwitscher entspannen können. Vom großzügigen Vorraum aus gelangen Sie in das Schlafzimmer sowie in die separate Küche mit maßgefertigter Einbauküche von Peter Max. Eine Theke mit zwei Hockern bietet den perfekten Platz für einen Frühstückskaffee mit Blick ins Grüne. Das Badezimmer mit Dusche ist ebenfalls mit Möbeln von Peter Max ausgestattet. Die separate, zentral begehbare Toilette rundet das Raumangebot ab. Zudem ist der Wohnung ein ca. 7 m² großes Kellerabteil mit viel Stauraum zugehörig.



Der derzeitige Eigentümer hat die Wohnung stets sehr gut gepflegt. Sie befindet sich in gepflegtem Zustand und ist sofort einzugsbereit.



Das in den Jahren 1960–1964 errichtete Haus präsentiert sich in sehr gutem Erhaltungszustand: Das Dach wurde 2018 saniert, und auch die Fenster wurden bereits erneuert. Der Rücklagenstand beträgt aktuell ca. 105.000 €.



Schön grün, ruhig und dennoch verkehrsgünstig gelegen!



Die Wohnung liegt in einer ruhigen Seitenstraße mit hervorragender Anbindung an die Innenstadt. Öffentliche Verkehrsmittel sind in wenigen Gehminuten erreichbar: die Buslinien 50A und 50B mit Verbindung zum Bahnhof Hütteldorf sowie die S-Bahn-Station Wien Weidlingau (S50, REX51) mit direkter Anbindung Richtung Westbahnhof. Auch die A1 Westautobahn ist schnell erreichbar.



Das Auhofcenter liegt nur ca. 5 Gehminuten entfernt und bietet zahlreiche Einkaufsmöglichkeiten sowie ein vielfältiges Freizeit- und Entertainmentangebot inklusive Kino und Gastronomie.



Wer dem Trubel der Stadt entgehen möchte, wird hier fündig: In nur fünf Gehminuten erreichen Sie den Wienerwald mit seinen zahlreichen Spazier- und Wanderwegen. Auch der Eingang zum Lainzer Tiergarten beim Pulverstampftor ist in nur etwa zehn Minuten mit dem Fahrrad erreichbar und bietet vielfältige Möglichkeiten zur Erholung in der Natur.



Gerne laden wir Sie ein, sich persönlich von den Vorzügen dieser Wohnung zu überzeugen – wir freuen uns auf Ihre Anfrage zur Vereinbarung eines Besichtigungstermins.




Hinweis gemäß Energieausweisvorlagegesetz: Ein Energieausweis wurde vom Eigentümer bzw. Verkäufer, nach unserer Aufklärung über die generell geltende Vorlagepflicht, sowie Aufforderung zu seiner Erstellung noch nicht vorgelegt. Daher gilt zumindest eine dem Alter und der Art des Gebäudes entsprechende Gesamtenergieeffizienz als vereinbart. Wir übernehmen keinerlei Gewähr oder Haftung für die tatsächliche Energieeffizienz der angebotenen Immobilie.


Der Vermittler ist als Doppelmakler tätig.

Infrastruktur / Entfernungen

Gesundheit
Arzt <2.000m
Apotheke <500m
Klinik <5.500m
Krankenhaus <4.000m

Kinder & Schulen
Schule <1.000m
Kindergarten <500m
Universität <2.500m
Höhere Schule <8.000m

Nahversorgung
Supermarkt <500m
Bäckerei <500m
Einkaufszentrum <500m

Sonstige
Geldautomat <500m
Bank <500m
Post <500m
Polizei <500m

Verkehr
Bus <500m
Straßenbahn <3.500m
U-Bahn <3.500m
Bahnhof <500m
Autobahnanschluss <1.000m

Angaben Entfernung Luftlinie / Quelle: OpenStreetMap

Eckdaten Objektnr. 1575/1221

Art: Wohnung
Land: Österreich
Baujahr: 1963
Zustand: Gepflegt
Alter: Neubau
Kaufpreis: 215.000,00
Provision: 3% des Kaufpreises zzgl. 20% USt.
Betriebskosten: 178,10 €
MwSt Gesamt: 17,81 €
Wohnfläche: 47,17 m²
Zimmer: 2
Bäder: 1
WC: 1
Balkone: 1
Keller: 7,00 m²
Immobilie merken Exposé

Ausstattung

Fliesen, Parkett, Gas, Etagenheizung, Einbauküche, Dusche


Immobilie anfragen


Ihre persönliche Beratung

Pia Estate GmbH

Pia Schelling

Pia Estate GmbH

T +43 660 508 36 35

H +43 660 508 36 35