*ANLEGERPREIS* 2-Zimmer Wohnung unweit der Alten Donau und des Donauzentrums!!

Wohnung , 1210 Wien


Beschreibung der Immobilie

*ANLEGERPREIS* 2-Zimmer Wohnung unweit der Alten Donau und des Donauzentrums!!

PROVISIONSFREI für den Käufer!



​Alle verfügbaren Wohnungen finden Sie auf unserer Homepage unter www.mast-immo.at. Um Ihre Suche zu erleichtern, steht Ihnen auf unserer Projektseite www.anderschanze25.at ein Wohnungsnavigator zur Verfügung, der Ihnen hilft, sich einen Überblick über die Lage der einzelnen Wohnungen innerhalb des Komplexes zu verschaffen.​





"An der Schanze 25" - Ihr neues Zuhause, Investment und Vorsorge



Das beeindruckende und exklusive Projekt befindet sich im"Quartier Donaufeld" im beliebten 21. Wiener Gemeindebezirk und repräsentiert einen einzigartigen Gebäudekomplex aus vier Bauteilen mit insgesamt 212 exklusiv ausgestatteten Wohnungen.



Zum Verkauf gelangen 58 Wohnungen in Bauteil A, 45 Wohnungen in Bauteil B und 64 Wohnungen in Bauteil D.



EIGENGRUND! - KEINE PACHT!



Die voraussichtliche Fertigstellung ist im Herbst 2026 geplant.



Highlights der Liegenschaft:



  • Naturbezogene Fassadengestaltung die sich perfekt in die Umgebung einfügt
  • Direkter Zugang zur Alten Donau über den naturbelassenen Grünzug der am Gebäudeareal angrenzt
  • Echtholzböden
  • Keramischer Fliesenbelag in den Nassräumen
  • 3 - fach verglaste Kunsstofffenster mit Alu Deckschale
  • Schließanlage
  • Personenlift
  • Tiefgarage
  • Heizung und Temperierung mittels Bauteilaktivierung
  • Jede Wohnung mit Freifläche




Lage: Auto adé



Sollten Sie kein Fahrzeug besitzen, ist das bei dieser Adresse kein Hindernis. Zahlreiche Nahversorger, Dinge des täglichen Bedarfs und selbst das beliebte Donauzentrum mit über 262 Shops, Restaurants und Kino befinden sich unmittelbarer Nähe der Liegenschaft. An heißen Sommertagen lädt die, über einen Grünstreifen verbundene, Alte Donau zum Verweilen ein!

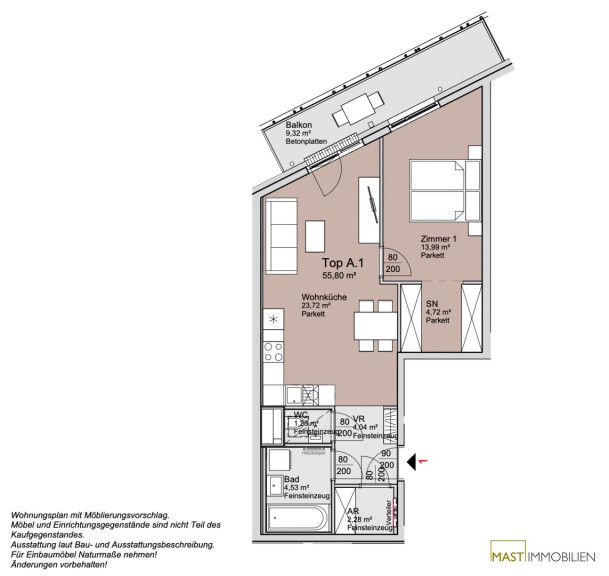
Details Wohnung Bauteil A Top 1:



Die Wohnung befindet sich im 1. Liftstock und verfügt über 55,80 m² Wohnfläche + einen 9,32 m² großen Balkon. Vom Balkon haben Sie einen uneingeschränkten Blick auf den naturbelassenen Grünzug Donaufeld! 



Die Wohnung gliedert sich wie folgt: 



  • Vorraum ca. 4,04 m²
  • Badezimmer ca. 4,53 m²
  • Abstellraum ca. 2,28 m²
  • separate Toilette ca. 1,28 m²
  • Wohnküche ca. 24,96 m²
  • Schlafzimmer mit Schrankraum ca. 18,71 m²
  • Balkon ca. 9,32 m²




Der Kaufpreis beträgt für Anleger € 319.000 Netto zzgl. 20% USt. Der Preis für Eigennutzer beträgt 349.000 €



Auf unserer Homepage finden Sie eine Übersicht zu allen verfügbaren 2-Zimmer-Wohnungen sowie nähere Details dazu. 


Wir weisen darauf hin, dass zwischen dem Vermittler und dem zu vermittelnden Dritten ein familiäres oder wirtschaftliches Naheverhältnis besteht.


Der Vermittler ist als Doppelmakler tätig.

Infrastruktur / Entfernungen

Gesundheit
Arzt <1.000m
Apotheke <1.000m
Klinik <2.000m
Krankenhaus <2.500m

Kinder & Schulen
Schule <1.000m
Kindergarten <1.000m
Universität <1.500m
Höhere Schule <2.000m

Nahversorgung
Supermarkt <1.000m
Bäckerei <1.000m
Einkaufszentrum <1.500m

Sonstige
Geldautomat <1.500m
Bank <1.500m
Post <1.500m
Polizei <1.000m

Verkehr
Bus <1.000m
U-Bahn <1.500m
Straßenbahn <1.000m
Bahnhof <1.500m
Autobahnanschluss <2.000m

Angaben Entfernung Luftlinie / Quelle: OpenStreetMap

Eckdaten Objektnr. 5387/8318

Art: Wohnung
Land: Österreich
Baujahr: 2026
Zustand: Erstbezug
Alter: Neubau
Kaufpreis: 319.000,00
Provision: Provision bezahlt der Abgeber.
Wohnfläche: 55,80 m²
Zimmer: 2
Bäder: 1
WC: 1
Balkone: 1
Keller: 2,81 m²
Heizwärmebedarf:  B  26,50 kWh/m²a
fGEE:  A  0,78
Immobilie merken Exposé

Ausstattung

Fliesen, Parkett, Wohnküche / offene Küche, Personenaufzug, Badewanne, Tiefgarage


Immobilie anfragen


Ihre persönliche Beratung

MAST Immo GmbH

Stefanie Vidovic

MA.ST Immobilien & Design e.U.

T +43 664 967 65 48