RENOVIERUNGSBEDÜRFTIGES 6 - ZIMMER REIHENHAUS MIT GARAGENSTELLPLATZ / NÄHE GEWERBEPARK STADLAU

Haus - Reihenhaus, 1220 Wien , Kalmusweg


Süßenbrunner Straße, Spargelfeldstraße, Bibernellweg, Kapellergasse

Beschreibung der Immobilie

RENOVIERUNGSBEDÜRFTIGES 6 - ZIMMER REIHENHAUS MIT GARAGENSTELLPLATZ / NÄHE GEWERBEPARK STADLAU

Zum sofortigen Verkauf gelangt dieses ca. 153m² große 6 - Zimmer Reihenhaus, mit Freifläche (ca. 184m²), Dachboden (ca. 31m²) und Garagenstellplatz (ca.17m²), in guter Lage des 22. Wiener Gemeindebezirks (Donaustadt). 



Die Liegenschaft erstreckt sich über zwei Ebenen und bietet großzügige Platzverhältnisse sowie vielfältige Nutzungsmöglichkeiten. Die bestehende Substanz eröffnet enormes Potenzial zur individuellen Modernisierung. Das Objekt befindet sich in Ruhelage, ist zentral begehbar und nördlich als auch westlich ausgerichtet.



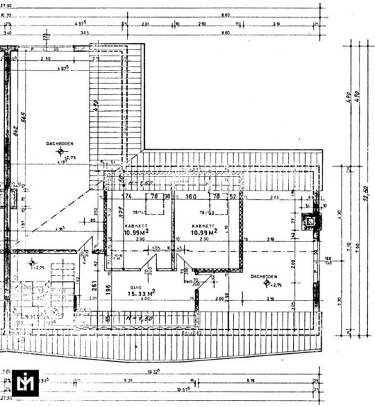
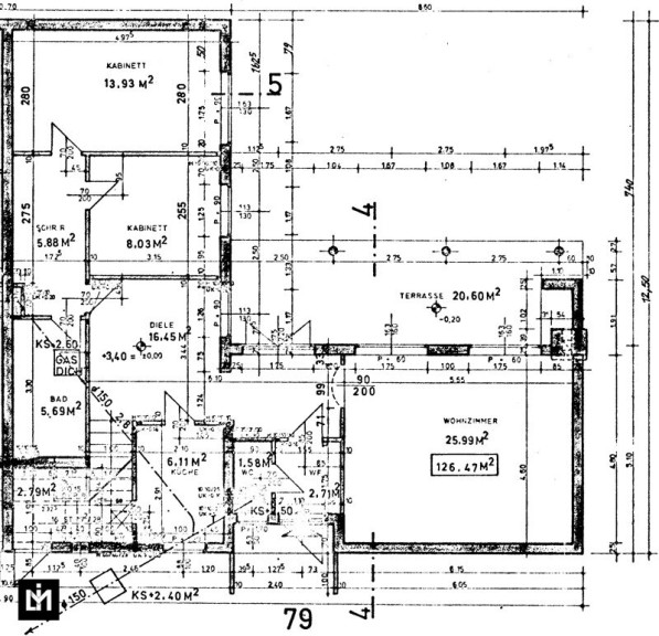
Das 6 - Zimmer Reihenhaus gliedert sich wie folgt:



  • Vorraum (UG.)
  • Separates WC mit Handwaschbecken und Fenster (UG.)
  • Wohnzimmer (ca. 26m²(UG.)) W
  • Diele mit Gartenzugang und Essbereich (ca.16m²(UG.)) N/W
  • Küche UG.
  • Badezimmer mit Dusche und Waschmaschinenanschluss (UG.)
  • Gang UG.
  • Arbeitszimmer (ca. 8m²(UG.)) N
  • Schlafzimmer (ca. 14m²(UG.)) N
  • Gang (OG.)
  • Dachboden (ca. 31m²(OG.)) W
  • Schlafzimmer (ca. 11m²(OG.)) W
  • Schlafzimmer (ca. 11m²(OG.)) W
  • Schlafzimmer (ca. 27m²(OG.)) N


Die Küche ist mit sämtlichen Geräten ausgestattet. Das moderne Bad wurde 2018 saniert. Auf der überdachten Terrasse befindet sich ein gemauerter Griller. Im vorderen Bereich des Hauses (Eingangsbereich) steht ein ebenerdiger und separat begehbarer Keller/Geräteraum zur Verfügung. Verwaltet wird die Liegenschaft von der Sozialbau AG. 



Das Objekt befindet sich in einer gefragten Wohngegend mit einer hervorragenden Kombination aus urbaner Infrastruktur und naturnahem Wohnen. Die Umgebung ist geprägt von ruhigen Wohnstraßen, Einfamilienhäusern sowie viel Grün und Naherholungsflächen. In unmittelbarer Nähe befinden sich Einkaufsmöglichkeiten, Schulen, Kindergärten, medizinische Einrichtungen als auch Freizeit- und Sportmöglichkeiten (Badeteich Hirschstetten befindet sich in unmittelbarer Nähe). Die Donaustadt überzeugt insbesondere durch ihre hohe Lebensqualität. 



Des Weiteren ist die Anbindung an das öffentliche Verkehrsnetz als gut zu bezeichnen. Folgende Anbindungen sind umliegend zu finden: 85A, Station Bibernellweg (Hausfeldstraße-Breitenlee, Rautenweg), 86A, Station Korianderweg (Stadlau-Breitenlee, Arnikaweg), 24A, Station Breitenlee, Arnikaweg (Kagraner Platz-Neueßling). Zusätzlich ist die U2 (Seestadt-Karlsplatz) Station Hausfeldstraße mit dem 85A sowie die U1 (Oberlaa-Leopoldau) Station Kagraner Platz mit dem 24A erreichbar.



HINWEIS: IM FALLE EINER ERFOLGREICHEN VERMITTLUNG STELLEN WIR 3% DES KAUFPREISES ZZGL. 20% UST. ALS PROVISION IN RECHNUNG. SOFERN BEDARF BESTEHT, KÖNNEN WIR AUCH GERNE DIE KAUFVERTRAGSERRICHTUNG FÜR 1% ZZGL. 20% UST. ÜBERNEHMEN. AUCH BEI DER FINANZIERUNG KÖNNEN WIR IHNEN GERNE WEITERHELFEN. FÜR WEITERE FRAGEN STEHT IHNEN HERR DANIEL MASEK SEHR GERNE TELEFONISCH UNTER 0660 / 18 34 006 ODER PER E-MAIL AN DM@LIM-BROKER.AT ZUR VERFÜGUNG.



Entsprechend dem bestehenden Geschäftsgebrauch ist LIM-BROKER GmbH (im Folgenden „LB“) als Doppelmakler tätig. Es wird hiermit ausdrücklich darauf hingewiesen, dass LB mit dem zu vermittelnden Dritten in einem familiären bzw. wirtschaftlichen Naheverhältnis steht. Die Angaben zu dem angebotenen Objekt erfolgen mit der Sorgfalt eines ordentlichen Immobilienmaklers; für die Richtigkeit der Angaben durch Dritte, insbesondere den Verfügungsberechtigten des Objektes, wird jedoch keinerlei Gewähr geleistet. Es wird hiermit weiters ausdrücklich festgehalten, dass durch Anfrage zu einem Objekt zwischen dem anfragenden Interessenten (im Folgenden „Auftraggeber“) und LB ein Maklervertrag zustande kommt und vereinbarungsgemäß im Falle eines Abschlusses mit dem Auftraggeber oder einem von diesem namhaft gemachten Dritten LB ein Honoraranspruch gegenüber dem Auftraggeber (lt. Honorarverordnung für Immobilienmakler, BGBl. 262 und 297/1996) in Höhe von 3% des Kaufpreises bzw. 3 (bei sonstigen Objekten, insbesondere Gewerbeobjekten) Bruttomonatsmieten zzgl. 20% USt. entsteht. Festgehalten wird ferner, dass vereinbarungsgemäß bei LB ein Provisionsanspruch in dieser Höhe dem Auftraggeber gegenüber auch dann entsteht, wenn gemäß § 15 MaklerG (i) das im Maklervertrag bezeichnete Geschäft wider Treu und Glauben nur deshalb nicht zustande kommt, weil der Auftraggeber entgegen dem bisherigen Verhandlungsverlauf einen für das Zustandekommen des Geschäfts erforderlichen Rechtsakt ohne beachtenswerten Grund unterlassen; oder (ii) mit dem vermittelten Dritten ein anderes als ein zweckgleichwertiges Geschäft zustande kommt, sofern die Vermittlung des Geschäfts in den Tätigkeitsbereich von LB fällt; oder (iii) das im Exposé bzw. vertraglich bezeichnete Geschäft nicht mit dem Auftraggeber, sondern mit einer anderen Person zustande kommt, weil der Auftraggeber dieser die ihm von LB bekanntgegebene Möglichkeit zum Abschluss mitgeteilt hat oder das Geschäft nicht mit dem vermittelten Dritten, sondern mit einer anderen Person zustande kommt, weil der vermittelte Dritte dieser die Geschäftsgelegenheit bekanntgegeben hat, oder (iv) das Geschäft nicht mit dem vermittelten Dritten zustande kommt, weil ein gesetzliches oder ein vertragliches Vorkaufs-, Wiederkaufs- oder Eintrittsrecht ausgeübt wird. Es gelten die allgemeinen Geschäftsbedingungen von LB (abrufbar unter: https://www.lim-broker.at/assets/AGB.pdf), auf die hiermit ausdrücklich hingewiesen wird.


Wir weisen darauf hin, dass zwischen dem Vermittler und dem zu vermittelnden Dritten ein familiäres oder wirtschaftliches Naheverhältnis besteht.


Der Vermittler ist als Doppelmakler tätig.

Infrastruktur / Entfernungen

Gesundheit
Arzt <250m
Apotheke <250m
Klinik <250m
Krankenhaus <3.500m

Kinder & Schulen
Schule <750m
Kindergarten <250m
Universität <3.750m
Höhere Schule <2.750m

Nahversorgung
Supermarkt <500m
Bäckerei <1.000m
Einkaufszentrum <1.250m

Sonstige
Bank <1.250m
Geldautomat <1.250m
Post <1.500m
Polizei <1.500m

Verkehr
Bus <250m
U-Bahn <1.750m
Straßenbahn <1.000m
Bahnhof <1.750m
Autobahnanschluss <750m

Angaben Entfernung Luftlinie / Quelle: OpenStreetMap

Eckdaten Objektnr. 120940

Art: Haus - Reihenhaus
Land: Österreich
Baujahr: 1977
Zustand: Teil_vollrenovierungsbed
Alter: Neubau
Kaufpreis: 549.000,00
Provision: 3% des Kaufpreises zzgl. 20% USt.
Betriebskosten: 218,42 €
Heizkosten: 8,15 €
MwSt Gesamt: 25,91 €
Wohnfläche: 153,00 m²
Nutzfläche: 153,00 m²
Gesamtfläche: 184,00 m²
Zimmer: 6
Bäder: 1
WC: 1
Terrassen: 1
Garten: 163,00 m²
Heizwärmebedarf:  E  164,40 kWh/m²a
fGEE:  D  1,98
Immobilie merken Exposé

Ausstattung

Parkett, Fliesen, Teppichboden, Fernwärme, Einbauküche, Westbalkon, Dusche, Kabel/Satelliten-TV, Garage


Immobilie anfragen


Ihre persönliche Beratung

LIM - BROKER GmbH

Daniel Masek

My Broker Immobilien GmbH

T +43 660 18 34 006

H +43 660 18 34 006

F +43 1 40 25 400-99