Ihr neues Zuhause in Völkermarkt – top modern, zentrale Bestlage, schlüsselfertig

Haus - Doppelhaushälfte, 9100 Völkermarkt


Die Neubauhäuser befinden sich in der ruhigen St. Ruprechter Straße in Völkermarkt, in leichter Hanglage mit viel Grün und Privatsphäre. Trotz der idyllischen Lage sind alle wichtigen Einrichtungen bequem erreichbar: Einkaufsmöglichkeiten, Schulen und Kindergarten liegen nur wenige Minuten entfernt, das Stadtzentrum von Völkermarkt ist in kurzer Zeit erreichbar. Die Umgebung bietet ideale Bedingungen für Familien und alle, die naturnah und dennoch zentral wohnen möchten.

Beschreibung der Immobilie

Ihr neues Zuhause in Völkermarkt – top modern, zentrale Bestlage, schlüsselfertig

Ihr neues Zuhause in Völkermarkt – modernes Wohnen in ruhiger Hanglage



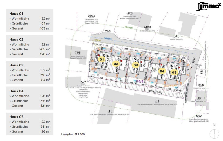
In der begehrten St. Ruprechter Straße in Völkermarkt entstehen insgesamt fünf hochwertige Wohneinheiten, bestehend aus vier Doppelhaushälften sowie einem freistehenden Einzelhaus in der Mitte der Anlage. Dieses durchdachte Wohnkonzept vereint modernes Design, Privatsphäre und naturnahes Wohnen auf ideale Weise.



Die stilvollen Häuser bieten auf zwei Ebenen großzügige Wohnflächen und überzeugen mit privatem Garten, Terrasse und hochwertiger Ausstattung – ideal für Familien oder alle, die komfortabel und sorgenfrei wohnen möchten.




IMMO-HOCH2-HIGHLIGHTS:



  • Adresse: St. Ruprechter Straße, 9100 Völkermarkt
  • Einheiten: 4 Doppelhaushälften + 1 Einzelhaus (zentral gelegen)
  • Preise:
    • Doppelhaushälften: ab € 499.000
    • Einzelhaus (Mitte): € 520.000

  • Lage: Ruhige Hanglage mit viel Privatsphäre, naturnah und dennoch gut angebunden
  • Wohnfläche: ca. 126–132 m²
  • Zimmer: Großzügige Raumaufteilung auf zwei Ebenen (ideal für Familien)
  • Küche: Offener Wohn-/Essbereich – perfekt für individuelle Küchengestaltung
  • Baujahr: Neubau / Erstbezug
  • Energieeffizienz: Luftwärmepumpe, Fußbodenheizung, 3-fach-Isolierverglasung
  • Besonderheiten: Eigener Garten (ca. 194–241 m²), Terrasse (ca. 18–21 m²), Carport, massive Bauweise, schlüsselfertig



🔥 AKTIONSBONUS – NUR BIS 30.06. SICHERN 🔥



Nutzen Sie jetzt eine einmalige Gelegenheit und profitieren Sie noch für kurze Zeit:



  • Gebührenersparnis bei Kauf bis 30.06.:

    • 1,1 % Grundbucheintragungsgebühr
    • 1,2 % Pfandrechteintragungsgebühr

      👉 Gesamtersparnis: mehrere Tausend Euro möglich!


Hinweis gemäß Energieausweisvorlagegesetz: Ein Energieausweis wurde vom Eigentümer bzw. Verkäufer, nach unserer Aufklärung über die generell geltende Vorlagepflicht, sowie Aufforderung zu seiner Erstellung noch nicht vorgelegt. Daher gilt zumindest eine dem Alter und der Art des Gebäudes entsprechende Gesamtenergieeffizienz als vereinbart. Wir übernehmen keinerlei Gewähr oder Haftung für die tatsächliche Energieeffizienz der angebotenen Immobilie.


Der Vermittler ist als Doppelmakler tätig.

Infrastruktur / Entfernungen

Gesundheit
Apotheke <1.000m
Arzt <1.000m

Kinder & Schulen
Schule <1.000m
Kindergarten <5.500m

Nahversorgung
Supermarkt <500m
Bäckerei <6.500m

Sonstige
Bank <1.000m
Geldautomat <1.000m
Post <1.000m
Polizei <500m

Verkehr
Bus <500m
Autobahnanschluss <2.000m
Bahnhof <4.500m

Angaben Entfernung Luftlinie / Quelle: OpenStreetMap

Eckdaten Objektnr. 1162

Art: Haus - Doppelhaushälfte
Land: Österreich
Baujahr: 2026
Zustand: Erstbezug
Alter: Neubau
Kaufpreis: 520.000,00
Wohnfläche: 131,93 m²
Stellplätze: 2
Immobilie merken Exposé

Ausstattung

Parkett, Fliesen, Fußbodenheizung, Dusche, Bad mit Fenster, Badewanne, Carport, Parkplatz


Immobilie anfragen


Ihre persönliche Beratung

Immo-Hoch2

Marc M. Mayer

Immo-Hoch2

T +43 650 999 77 33