Ihr neues Zuhause in Völkermarkt – top modern, zentrale Bestlage, schlüsselfertig

Haus - Doppelhaushälfte, 9100 Völkermarkt


Die Neubauhäuser befinden sich in der ruhigen St. Ruprechter Straße in Völkermarkt, in leichter Hanglage mit viel Grün und Privatsphäre. Trotz der idyllischen Lage sind alle wichtigen Einrichtungen bequem erreichbar: Einkaufsmöglichkeiten, Schulen und Kindergarten liegen nur wenige Minuten entfernt, das Stadtzentrum von Völkermarkt ist in kurzer Zeit erreichbar. Die Umgebung bietet ideale Bedingungen für Familien und alle, die naturnah und dennoch zentral wohnen möchten.

Beschreibung der Immobilie

Ihr neues Zuhause in Völkermarkt – top modern, zentrale Bestlage, schlüsselfertig

Ihr neues Zuhause in Völkermarkt – modernes Wohnen in ruhiger Hanglage



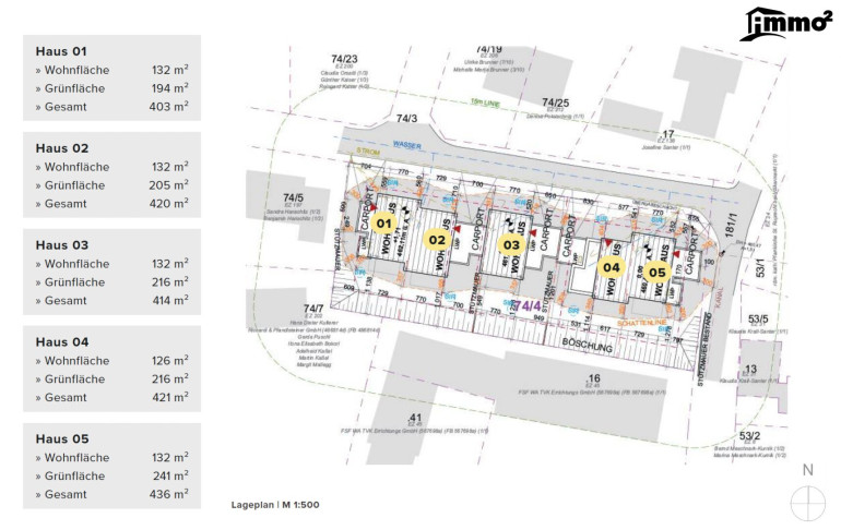
In der begehrten St. Ruprechter Straße in Völkermarkt entstehen fünf hochwertige Wohneinheiten, die modernes Design, durchdachte Grundrisse und naturnahes Wohnen perfekt vereinen. Die stilvollen Doppel- und Reihenhäuser bieten auf zwei Ebenen großzügige Wohnflächen und überzeugen mit privatem Garten, Terrasse und hochwertiger Ausstattung – ideal für Familien oder alle, die komfortabel und sorgenfrei wohnen möchten.




IMMO-HOCH2-HIGHLIGHTS:



  • Adresse: St. Ruprechter Straße, 9100 Völkermarkt
  • Lage: Ruhige Hanglage mit viel Privatsphäre, naturnah und dennoch gut angebunden
  • Wohnfläche: ca. 126–132 m²
  • Zimmer: Großzügige Raumaufteilung auf zwei Ebenen (ideal für Familien)
  • Küche: Offener Wohn-/Essbereich – perfekt für individuelle Küchengestaltung
  • Baujahr: Neubau / Erstbezug
  • Energieeffizienz: Luftwärmepumpe, Fußbodenheizung, 3-fach-Isolierverglasung
  • Besonderheiten: Eigener Garten (ca. 194–241 m²), Terrasse (ca. 18–21 m²), Carport, massive Bauweise, schlüsselfertig



🔥 AKTIONSBONUS – NUR BIS 30.06. SICHERN 🔥



Nutzen Sie jetzt eine einmalige Gelegenheit und profitieren Sie jetzt noch für kurze Zeit:



  •  Gebührenersparnis bei Kauf bis 30.06. bei gesetzlichen Gegebenheiten bei Hauptwohnsitzmeldung:

    • 1,1% Grundbucheintragungsgebühr
    • 1,2% Pfandrechteintragungsgebühr

  • 👉 Gesamtersparnis: mehrere Tausend Euro möglich!



Komfort und Qualität



Diese modernen Neubauten überzeugen durch ihre massive Ziegelbauweise und eine hochwertige, zeitgemäße Ausstattung. Die Kombination aus Luftwärmepumpe und Fußbodenheizung sorgt für ein angenehmes Raumklima und niedrige Betriebskosten. Großzügige Fensterflächen schaffen helle, freundliche Wohnräume, während die privaten Gärten und Terrassen zusätzlichen Wohnkomfort im Freien bieten.



Dank der schlüsselfertigen Ausführung können Sie ohne zusätzlichen Aufwand direkt einziehen und Ihr neues Zuhause genießen.




Beste Lage – ruhig und dennoch gut angebunden



Die St. Ruprechter Straße bietet eine ideale Kombination aus Ruhe und Alltagstauglichkeit:



  • Natur & Erholung: Ruhige Hanglage mit viel Grün und hoher Lebensqualität
  • Einkaufsmöglichkeiten: In wenigen Minuten erreichbar
  • Schulen & Kindergarten: Perfekt für Familien
  • Verkehrsanbindung: Gute Erreichbarkeit des Stadtzentrums von Völkermarkt



Zusammenfassung



Dieses Neubauprojekt in Völkermarkt vereint moderne Architektur, hochwertige Bauweise und durchdachte Grundrisse zu einem perfekten Gesamtpaket. Ob als Familienheim oder wertbeständige Investition – hier profitieren Sie von energieeffizientem Wohnen, großzügigen Außenflächen und einer ruhigen, attraktiven Lage.



Ein besonderes Plus: Für dieses Projekt ist eine Wohnbauförderung des Landes Kärnten möglich, wodurch sich attraktive finanzielle Vorteile ergeben und der Traum vom Eigenheim noch leistbarer wird.



Vereinbaren Sie noch heute einen Besichtigungstermin und sichern Sie sich Ihre Wohneinheit !


Hinweis gemäß Energieausweisvorlagegesetz: Ein Energieausweis wurde vom Eigentümer bzw. Verkäufer, nach unserer Aufklärung über die generell geltende Vorlagepflicht, sowie Aufforderung zu seiner Erstellung noch nicht vorgelegt. Daher gilt zumindest eine dem Alter und der Art des Gebäudes entsprechende Gesamtenergieeffizienz als vereinbart. Wir übernehmen keinerlei Gewähr oder Haftung für die tatsächliche Energieeffizienz der angebotenen Immobilie.


Der Vermittler ist als Doppelmakler tätig.

Infrastruktur / Entfernungen

Gesundheit
Apotheke <1.000m
Arzt <1.000m

Kinder & Schulen
Schule <1.000m
Kindergarten <5.500m

Nahversorgung
Supermarkt <500m
Bäckerei <6.500m

Sonstige
Bank <1.000m
Geldautomat <1.000m
Post <1.000m
Polizei <500m

Verkehr
Bus <500m
Autobahnanschluss <2.000m
Bahnhof <4.500m

Angaben Entfernung Luftlinie / Quelle: OpenStreetMap

Eckdaten Objektnr. 1159

Art: Haus - Doppelhaushälfte
Land: Österreich
Baujahr: 2026
Zustand: Erstbezug
Alter: Neubau
Kaufpreis: 499.000,00
Provision: 3% des Kaufpreises zzgl. 20% USt.
Wohnfläche: 131,93 m²
Stellplätze: 2
Immobilie merken Exposé

Ausstattung

Fliesen, Parkett, Fußbodenheizung, Bad mit Fenster, Badewanne, Dusche, Carport, Parkplatz


Immobilie anfragen


Ihre persönliche Beratung

Immo-Hoch2

Marc M. Mayer

Immo-Hoch2

T +43 650 999 77 33